.
Eladó Lakás 1039 Budapest 3. kerület , 1039 Budapest 3, Királyok útja
M324610
Eladó
Lakás
Prémium
23 625 000 Ft
1039 Budapest 3. kerület , 1039 Budapest 3, Királyok útja
47 m²
Tégla
Törlesztőrészlet Ft/hó
THM %
82 megtekintés az elmúlt 7 napban
Leírás
ELADÓ INGATLAN - CSILLAGHEGY - III. KERÜLET - KÖZEL A DUNÁHOZ!

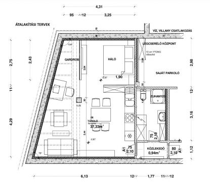
Budapest III. kerület, Csillaghegy részén ajánlom figyelmébe ezt a 2020-ban épült társasház alagsori részén található, 47 nm-es, jelenleg tárolóként funkcionáló ingatlant és a hozzá kapcsolódó (külön hrsz) 17 nm-es gépkocsitárolót. Hasznosítását tekintve, remek választás műteremnek, irodának, masszázsszalonnak, tárolónak. Az ingatlan irányára 23,625M HUF + ÁFA. Igény esetén van lehetőség a teljes műszaki kivitelezésre, amihez a tervek rendelkezésre állnak.

Az ingatlan jelenlegi állapota befejezetlen, felújítandó.
23,625 Millió HUF + ÁFA = BRUTTÓ 30M: 47 nm alagsori ingatlan + 17 nm mélygarázs.

ELŐNYÖK: jó lakóközösség, kiváló közlekedés, a teljes vételár kifizetése után azonnal birtokba vehető, rendezett tulajdoni lap, a Dunától elérhető távolságban helyezkedik el, teremgarázs parkolóhely a vételárban, cég az eladó, céges finanszírozás elérhető.

LOKÁCIÓ: Az ingatlan Budapest III. kerületben, Csillaghegy családi házas részén található, pár száz méterre a Dunától. A társasházban 4 lakás található, illetve mélygarázzsal is rendelkezik. Az ingatlant határoló utcák rendezettek, több játszótér és sportpálya található a közelben. A buszmegállók minimális távolságra vannak, ezután pedig a belváros, illetve a közelben található több bolt, orvosi rendelő, iskola, óvoda, tehát a lakás infrastrukturális adottságai kiválóak.

Amennyiben érdekli az ingatlan és szívesen megnézné, akkor hívjon bizalommal, akár hétvégén is
Mutass többet
Általános adatok
Ingatlan állapota:
2 - Felújítandó
Építés éve:
2021
Emelet:
Nincs megadva
Emeletek száma:
0
Lift:
Nincs Lift
Épület külső állapota:
5 - Nagyon jó
Épület belső állapota:
2 - Felújítandó
Fényviszonyok:
Közepes
Parkolás:
Nincs
Erkély/Terasz:
Nincs
Nézet:
Utca
Tájolás:
NY
Fűtés:
Nincs
Energetikai besorolás:
Nincs megadva
Lakáshitel kalkulátor – Spórolj velünk!
Kalkulálj most, és keresd pénzügyi szakértőinket, akik ingyenes tanácsadással segítenek megtalálni a számodra legjobb megoldást!

Hasonló ingatlanok

1034 Budapest 3. kerület

LK062075 | 1 szoba | 26 m²
26 000 000 Ft

1034 Budapest 3. kerület Szépen felújított, lakásnak kialakított, galériás

LK094011 | 1 szoba | 17 m²
30 900 000 Ft

1038 Budapest 3. kerület

LK075067 | 4 szoba | 84 m²
166 000 000 Ft

1038 Budapest 3. kerület

LK025936 | 2 szoba | 52 m²
117 000 000 Ft

1038 Budapest 3. kerület

LK063866 | 2 szoba | 44 m²
106 500 000 Ft

1038 Budapest 3. kerület

LK035948 | 4 szoba | 89 m²
159 900 000 Ft

1038 Budapest 3. kerület

LK095792 | 2 szoba | 50 m²
110 500 000 Ft

1038 Budapest 3. kerület

LK056772 | 2 szoba | 51 m²
116 500 000 Ft

1033 Budapest 3. kerület Frissen átadott újépítésű WF lakás eladó a Folyamőr utcában

LK045102 | 2 szoba | 50 m²
109 000 000 Ft

1033 Budapest 3. kerület

P4570-00-05-08-806 | 1 szoba | 29 m²
72 400 000 Ft

1039 Budapest 3. kerület

H503159 | 2 szoba | 51 m²
66 900 000 Ft

1039 Budapest 3. kerület Csillaghegyen csendes mellékutcában eladó lakás + 111m2 kert

HZ079861 | 3 szoba | 52 m²
65 000 000 Ft
Tóth Barnabás
Értékesítő
Kapcsolatfelvétel
Hívom
Kapcsolatfelvétel
Kérjen egy személyes megtekintést az ingatlanra a Duna House értékesítőjétől
Válassz egy időpontot