.
Eladó Lakás 1157 Budapest 15. kerület , 1157 Budapest 15, Központi
M319526
Eladó
Lakás
Prémium
51 000 000 Ft
1157 Budapest 15. kerület , 1157 Budapest 15, Központi
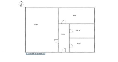
2 szoba
35 m²
Panel
Törlesztőrészlet Ft/hó
THM %
24 megtekintés az elmúlt 7 napban
Leírás
Eladó másfél szobás lakás Budapest XV. kerületében azonnal költözhető!
Budapest XV. kerületében, központi elhelyezkedéssel eladó egy 35 m2-es, másfél szobás, első emeleti panellakás.
Főbb jellemzők:
panelprogramos épület (szigetelés, műanyag nyílászárók). Rendezett, tiszta lépcsőház.
A lakás jó állapotú, azonnal költözhető.
Fürdőszoba felújítva: csempefestékkel korszerűsítve, burkolatok rendben.
Ingyenes parkolás közterületen.
1/1 tulajdon, tehermentes.
3%-os OSP hitelre alkalmas.
Elhelyezkedés: kiváló infrastruktúra, Pólus Center és Ázsia Center a közelben.
Tömegközlekedés, boltok, szolgáltatások pár perc sétára.
Ajánljuk: kezdő lakásnak, befektetésnek (könnyen kiadható).
Ne maradjon le erről a remek lehetőségről azonnal költözhető lakás, kiváló helyen!
Mutass többet
Általános adatok
Ingatlan állapota:
3 - Lakható
Építés éve:
1980
Emelet:
1
Emeletek száma:
0
Lift:
Hívó
Épület külső állapota:
5 - Nagyon jó
Épület belső állapota:
4 - Jó
Fényviszonyok:
Parkolás:
Nincs
Erkély/Terasz:
Nincs
Nézet:
Utca
Tájolás:
NY
Fűtés:
Távfűtés egyedi mérővel
Energetikai besorolás:
Nincs megadva
Lakáshitel kalkulátor – Spórolj velünk!
Kalkulálj most, és keresd pénzügyi szakértőinket, akik ingyenes tanácsadással segítenek megtalálni a számodra legjobb megoldást!

Hasonló ingatlanok

1155 Budapest 15. kerület KERTVÁROSI KÖRNYEZETBEN CSODÁS PANORÁMA

LK081849 | 2 szoba | 45 m²
69 500 000 Ft

1155 Budapest 15. kerület 2 szobás lakás Pestújhelyen a MÁV-telep szomszédságában

LK090181 | 2 szoba | 52 m²
68 900 000 Ft

1153 Budapest 15. kerület

LK059696 | 2 szoba | 50 m²
52 500 000 Ft

1151 Budapest 15. kerület Rákospalotán eladó tégla lakás

LK070294 | 3 szoba | 45 m²
39 900 000 Ft

1152 Budapest 15. kerület SORHÁZI LAKÁS SAJÁT KERTRÉSSZEL!

HZ097087 | 1 szoba | 40 m²
32 900 000 Ft

1157 Budapest 15. kerület Zsókavár utcában, csendes, parkra néző lakás

LK056605 | 2 szoba | 47 m²
68 000 000 Ft

1157 Budapest 15. kerület Páskom park

LK055225 | 3 szoba | 64 m²
72 300 000 Ft

1154 Budapest 15. kerület

LK079417 | 2 szoba | 44 m²
48 000 000 Ft

1152 Budapest 15. kerület

LK046097 | 3 szoba | 59 m²
67 900 000 Ft

1155 Budapest 15. kerület

H507768 | 3 szoba | 64 m²
85 000 000 Ft

1154 Budapest 15. kerület Tetőtéri lakás Rákospalotán

LK050592 | 2 szoba | 77 m²
30 000 000 Ft

1158 Budapest 15. kerület Hermina

LK042947 | 3 szoba | 71 m²
79 900 000 Ft

1157 Budapest 15. kerület

LK062248 | 3 szoba | 71 m²
69 900 000 Ft

1156 Budapest 15. kerület

H505915 | 4 szoba | 78 m²
74 900 000 Ft

1153 Budapest 15. kerület 1153 Budapest 15, kertváros

M313516 | 2 szoba | 89 m²
73 000 000 Ft

1157 Budapest 15. kerület Eladó a 15.kerületben,erkélyes 3 szobás panel lakás!!!

LK057478 | 3 szoba | 71 m²
72 990 000 Ft

1153 Budapest 15. kerület 1153 Budapest 15, kertváros

M313732 | 2 szoba | 72 m²
59 000 000 Ft

1153 Budapest 15. kerület 1153 Budapest 15, kertváros

M313816 | 3 szoba | 149 m²
79 000 000 Ft

1158 Budapest 15. kerület

H508112 | 2 szoba | 36 m²
52 990 000 Ft

1158 Budapest 15. kerület

H508350 | 3 szoba | 57 m²
69 900 000 Ft
Székely György.
Platina fokozatú franchise partner
Kapcsolatfelvétel
Hívom
Kapcsolatfelvétel
Kérjen egy személyes megtekintést az ingatlanra a Duna House értékesítőjétől
Válassz egy időpontot