.
Eladó Ház 2112 Veresegyház , 2112 Veresegyház, Mézesvölgy
M318687
Eladó
Ikerház
Prémium
119 900 000 Ft
2112 Veresegyház , 2112 Veresegyház, Mézesvölgy
3 szoba
102 m²
350 m² telek
Törlesztőrészlet Ft/hó
THM %
18 megtekintés az elmúlt 7 napban
Leírás
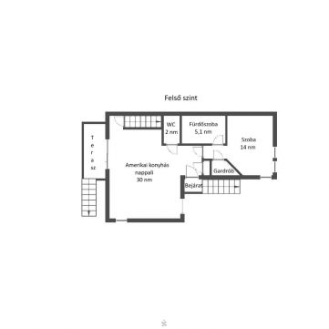
Eladó Veresegyház egyik legszebb részén, a Hegyalja utcában egy 102 nm-es, 3 szobás, kiváló állapotú ikerház, amelyhez egy 350 nm-es, gondozott kert tartozik.
A házba lépve azonnal otthon érezzük magunkat: a felső szinten tágas, napfényben úszó amerikai konyhás nappali fogad, ahonnan a saját fürdővel és gardróbbal rendelkező privát háló külön kis lakrészként szolgál. A nappaliból nyíló terasz a délutáni pihenések tökéletes helyszíne, a mosdó pedig tovább növeli a kényelmet. Innen vezet a lépcső az alsó szintre, ahol egy tágas szoba, külön mosdó (igény esetén zuhanyzó is kialakítható), mosókonyha, valamint a 20 nm-es garázs is megtalálható.
A nyugati tájolású kert rendezett, automata locsolórendszerrel felszerelt. Külön értéket képvisel a 21 m-es, fedett, árammal ellátott nyári konyha, amely kiváló helyszín családi és baráti összejövetelekhez.
A ház műszakilag is megbízható: padlófűtés, cirkó gázkazán, 4,24 kWp napelemrendszer. További extrák: klíma, riasztórendszer, elektromos redőnyök, locsolórendszer.
Ez az ingatlan tökéletes választás mindazoknak, akik modern, energiatakarékos otthont keresnek zöld környezetben, Veresegyház egyik legjobb utcájában. Költözzön ide, ahol a hétköznap is élmény!

ingatlanséta: http://webseta.hu/r2544797
Mutass többet
Általános adatok
Építés éve:
2007
Belső szintek száma:
Nincs megadva
Épület külső állapota:
4 - Jó
Épület belső állapota:
Nincs megadva
Fényviszonyok:
Napfényes
Nézet:
Nincs megadva
Fűtés:
Egyéb
Szerkezet:
Könnyűszerkezetes
Energetikai besorolás:
Nincs megadva
Víz:
Nincs megadva
Gáz:
Nincs megadva
Villany:
Nincs megadva
Csatorna:
Nincs megadva
Lakáshitel kalkulátor – Spórolj velünk!
Kalkulálj most, és keresd pénzügyi szakértőinket, akik ingyenes tanácsadással segítenek megtalálni a számodra legjobb megoldást!

Hasonló ingatlanok

2112 Veresegyház Viczián utca

HZ091919 | 5 szoba | 150 m²
149 000 000 Ft

2112 Veresegyház Természet közeli

HZ080068 | 5 szoba | 136 m²
145 500 000 Ft

2112 Veresegyház Gerbera utca

HZ090909 | 3 szoba | 120 m²
87 990 000 Ft

2112 Veresegyház

HZ099520 | 5 szoba | 170 m²
139 000 000 Ft

2112 Veresegyház Tó Közeli 58 nm-es teraszos,téglaház pincével.

HZ075183 | 2 szoba | 60 m²
59 900 000 Ft

2112 Veresegyház vasútállomás

HZ020653 | 4 szoba | 130 m²
57 000 000 Ft

2112 Veresegyház

H501685 | 3 szoba | 80 m²
76 300 000 Ft

2112 Veresegyház Szurdok utca bal

HZ039848 | 5 szoba | 154 m²
145 800 000 Ft

2112 Veresegyház Szurdok utca jobb

HZ042961 | 5 szoba | 152 m²
145 800 000 Ft

2112 Veresegyház Veresegyházi hegyek

HZ038536 | 5 szoba | 163 m²
209 990 000 Ft

2112 Veresegyház

HZ027152 | 5 szoba | 400 m²
199 900 000 Ft

2112 Veresegyház Fővégi rész

HZ050784 | 6 szoba | 277 m²
220 000 000 Ft

2112 Veresegyház Eresztvény utca

HZ053091 | 2 szoba | 280 m²
149 900 000 Ft

2112 Veresegyház 2112 Veresegyház, Revetek

M295534 | 6 szoba | 246 m²
129 000 000 Ft

2112 Veresegyház

H496720 | 7 szoba | 220 m²
189 000 000 Ft

2112 Veresegyház Veresegyház Mézesvölgy szomszédságában

HZ089301 | 6 szoba | 250 m²
157 000 000 Ft

2112 Veresegyház Szadai út

HZ050142 | 3 szoba | 201 m²
159 000 000 Ft

2112 Veresegyház Csonkás

HZ013002 | 6 szoba | 210 m²
99 700 000 Ft

2112 Veresegyház Hegyek városrész

HZ094769 | 5 szoba | 118 m²
146 800 000 Ft

2112 Veresegyház Ligetek 1.

HZ013365 | 5 szoba | 170 m²
229 000 000 Ft
Dzimba Rita
Ezüst fokozatú csoportvezető
Kapcsolatfelvétel
Hívom
Kapcsolatfelvétel
Kérjen egy személyes megtekintést az ingatlanra a Duna House értékesítőjétől
Válassz egy időpontot