.
Eladó Ház 2193 Galgahévíz , 2193 Galgahévíz, Rákóczi utca
M314376
Eladó
Családi ház
Prémium
42 000 000 Ft
2193 Galgahévíz , 2193 Galgahévíz, Rákóczi utca
3 szoba
101 m²
474 m² telek
Törlesztőrészlet Ft/hó
THM %
4 megtekintés az elmúlt 7 napban
Leírás
Tágas családi ház eladó Galgahévízen kétgenerációs lehetőséggel!

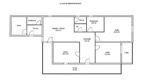
Megvételre kínálok Galgahévízen, egy csendes mellékutcában található, 101 nm-es alapterületű családi házat, 474 nm-es telken. Az ingatlan 1987-ben épült szilikát falazattal, szerkezetileg stabil, belső részek felújítandó állapotúak, így új tulajdonosa saját igényei szerint alakíthatja.

A főépületben 3 kényelmes hálószoba található, a belső terek tágasak és jól kihasználhatók.

A telken külön melléképület is található, amelyben egy önálló, egyszobás lakás került kialakításra. Ez ideális megoldás lehet két generáció együttélésére, vendéglakásként, vagy akár kiadásra is.

Műszaki jellemzők:
- Fűtés: gázkazán radiátoros hőleadással
- Alternatív fűtés: vegyestüzelésű kazán
- Összközműves ingatlan: víz, villany, gáz, csatorna
- Falazat: szilikát
- Állapot: felújítandó
- Tetőtér beépíthető

Főbb előnyök:
- 101 nm-es lakótér + különálló lakrész
- 474 nm-es telek, könnyen gondozható méret
- Kétgenerációs elrendezés lehetősége
- Csendes, nyugodt környezet
- Egyéni igényekre szabható kialakítás

Ne hagyja ki ezt a kiváló adottságú ingatlant, amely remek lehetőséget kínál akár nagyobb családok, akár befektetők számára!

Az ingatlan CSOK Pluszra és Otthon Start hitelre nem alkalmas!

További információért és megtekintésért keressen bizalommal, akár hétvégén is!
Mutass többet
Általános adatok
Építés éve:
1987
Belső szintek száma:
Nincs megadva
Épület külső állapota:
3 - Lakható
Épület belső állapota:
Nincs megadva
Fényviszonyok:
Nézet:
Nincs megadva
Fűtés:
Egyéb
Szerkezet:
Egyéb
Energetikai besorolás:
Nincs megadva
Víz:
Nincs megadva
Gáz:
Nincs megadva
Villany:
Nincs megadva
Csatorna:
Nincs megadva
Lakáshitel kalkulátor – Spórolj velünk!
Kalkulálj most, és keresd pénzügyi szakértőinket, akik ingyenes tanácsadással segítenek megtalálni a számodra legjobb megoldást!

Hasonló ingatlanok

2193 Galgahévíz Dobó István

HZ078946 | 2 szoba | 85 m²
16 980 000 Ft

2193 Galgahévíz

HZ067541 | 4 szoba | 100 m²
45 000 000 Ft

2193 Galgahévíz Galgahévíz

HZ070653 | 4 szoba | 85 m²
31 990 000 Ft

2193 Galgahévíz STABIL NAGY HÁZ, ÖSSZEKÖLTÖZŐKNEK

HZ069153 | 7 szoba | 295 m²
79 000 000 Ft
Pópity Krisztina
Értékesítő
Kapcsolatfelvétel
Hívom
Kapcsolatfelvétel
Kérjen egy személyes megtekintést az ingatlanra a Duna House értékesítőjétől
Válassz egy időpontot