.
Eladó Ház 5052 Újszász , 5052 Újszász, Nap út
M314073
Eladó
Családi ház
Prémium
15 900 000 Ft
5052 Újszász , 5052 Újszász, Nap út
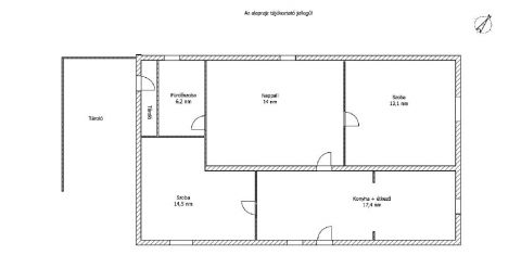
3 szoba
65 m²
1457 m² telek
Törlesztőrészlet Ft/hó
THM %
17 megtekintés az elmúlt 7 napban
Leírás
Újszászon, a Nap úton eladó családi ház nagy telekkel!

Megvételre kínálok Újszászon, csendes utcában egy vályog falazatú, 65 m2-es, 3 szobás családi házat, mely műszakilag felújított állapotban várja új tulajdonosát.

A felújítás során kicserélték a víz- és villanyhálózatot, megújultak a hideg- és melegburkolatok, valamint a nyílászárók egy része is. A födémen 10 cm vastag hőszigetelés található.

A fűtést új, kondenzációs gázkazán és új radiátorok szolgáltatják, így az ingatlan energetikailag is korszerű.

A 1457 m2-es, tágas telek kiváló lehetőségeket rejt: akár kétlakásos lakóingatlan is építhető rá, így befektetésre is ideális.

Csendes, barátságos környék, jó megközelíthetőség, rendezett udvar várja leendő tulajdonosát.

Vasútállomás 10 -15 perces séta távolságra található!

Keressen bizalommal, akár hétvégén is!
Mutass többet
Általános adatok
Építés éve:
1960
Belső szintek száma:
Nincs megadva
Épület külső állapota:
3 - Lakható
Épület belső állapota:
Nincs megadva
Fényviszonyok:
Nézet:
Nincs megadva
Fűtés:
Gáz cirkó
Szerkezet:
Vályog
Energetikai besorolás:
Nincs megadva
Víz:
Nincs megadva
Gáz:
Nincs megadva
Villany:
Nincs megadva
Csatorna:
Nincs megadva
Lakáshitel kalkulátor – Spórolj velünk!
Kalkulálj most, és keresd pénzügyi szakértőinket, akik ingyenes tanácsadással segítenek megtalálni a számodra legjobb megoldást!

Hasonló ingatlanok

5052 Újszász Penny Market közelében

HZ098529 | 4 szoba | 105 m²
23 000 000 Ft

5052 Újszász Erkel Ferenc utca

HZ059428 | 3 szoba | 63 m²
13 900 000 Ft

5052 Újszász Újszászon központ közelében felújított ház eladó

HZ067647 | 2 szoba | 42 m²
18 500 000 Ft

5052 Újszász Újszászon vasútállomás mellett 4 szobás 107 nm-es ház eladó

HZ077919 | 5 szoba | 107 m²
30 000 000 Ft

5052 Újszász Újszász Penny Market közelében 3 szoba+nappalis ház eladó

HZ049119 | 4 szoba | 66 m²
23 000 000 Ft

5052 Újszász Újszász mező út közelében 2 szoba+ nappalis 70 nm-es ház

HZ074508 | 3 szoba | 70 m²
16 900 000 Ft

5052 Újszász Újszász Penny market közelében 2 szobás ház eladó

HZ058789 | 3 szoba | 64 m²
18 000 000 Ft

5052 Újszász 5052 Újszász, Központhoz közeli

M314266 | 4 szoba | 106 m²
23 500 000 Ft

5052 Újszász 5052 Újszász, Belváros

M314936 | 2 szoba | 70 m²
15 000 000 Ft

5052 Újszász Újszász vasútállomás közelében 2 szobás ház eladó

HZ065032 | 3 szoba | 63 m²
25 000 000 Ft

5052 Újszász Újszász központban Szent István téren 920nm-es telek eladó

TK018560 | 920 m²
4 500 000 Ft

5052 Újszász

HZ053611 | 3 szoba | 92 m²
38 900 000 Ft

5052 Újszász 5052 Újszász, Csendes,központi

M314754 | 4 szoba | 89 m²
37 000 000 Ft
Gémesné Anikó
Ezüst fokozatú értékesítő
Kapcsolatfelvétel
Hívom
Kapcsolatfelvétel
Kérjen egy személyes megtekintést az ingatlanra a Duna House értékesítőjétől
Válassz egy időpontot