.
Eladó Lakás 6000 Kecskemét , Belvárosi földszinti, prémium lakás eladó 4 lakásos házban
LK079313
Eladó
Lakás
Új
130 000 000 Ft
6000 Kecskemét , Belvárosi földszinti, prémium lakás eladó 4 lakásos házban
3 szoba
86 m²
Tégla
Törlesztőrészlet Ft/hó
THM %
6 megtekintés az elmúlt 7 napban
Leírás
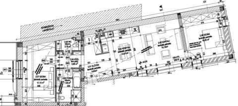
Kecskemét belvárosában eladó egy 87 m²-es, nappali + 2 szobás, földszinti, új építésű prémium minőségű, amely azonnal költözhető.
A régi polgári ház karaktere és eleganciája találkozik a modern műszaki tartalommal: az épület teljes felújítással gyönyörű, 4 lakásos társasházzá alakult.

Főbb jellemzők:
87 m² alapterület
nappali + 2 külön nyíló szoba
2026-os építés
hőszivattyús padlófűtés, H tarifával
mennyezeti hűtés
vízlágyító berendezés
prémium minőségű fa nyílászárók, szúnyoghálóval
elektromos redőnyök
prémium burkolatok és világítótestek
konyhabútor beépített gépekkel

A lakáshoz tartozik egy zárt udvari autóbeálló, elektromos autótöltővel, amely kötelezően megvásárolandó, ára +5 millió Ft.

Az ingatlan azonnal költözhető.
Mutass többet
Általános adatok
Ingatlan állapota:
6 - Új. ép.
Építés éve:
2026
Emelet:
Földszint
Emeletek száma:
1
Lift:
Nincs Lift
Épület külső állapota:
6 - Új. ép.
Épület belső állapota:
6 - Új. ép.
Fényviszonyok:
Napfényes
Parkolás:
Van
Erkély/Terasz:
Nincs
Nézet:
Kert/belső kert
Tájolás:
DNY
Fűtés:
Hőszivattyú
Energetikai besorolás:
Nincs megadva
Lakáshitel kalkulátor – Spórolj velünk!
Kalkulálj most, és keresd pénzügyi szakértőinket, akik ingyenes tanácsadással segítenek megtalálni a számodra legjobb megoldást!

Hasonló ingatlanok

6000 Kecskemét 132nm-es 5 szobás, 1 emeleti lakás / iroda, garázzsal a belvárosban

LK085342 | 5 szoba | 132 m²
110 000 000 Ft

6000 Kecskemét Kecskeméten Hollandfaluban nappali + 4 szobás sorházi lakás eladó

LK079508 | 5 szoba | 129 m²
99 000 000 Ft

6000 Kecskemét Kecskemét belváros főtérén a Lordok ingatlanban eladó ingatlan üzleti, irodai vagy lakás célra

IR084761 | 132 m²
69 000 000 Ft

6000 Kecskemét

HZ024126 | 4 szoba | 131 m²
49 900 000 Ft

6000 Kecskemét Két szintes 88nm belvárosi ház 40nm pincével!

HZ010473 | 5 szoba | 88 m²
69 900 000 Ft

6000 Kecskemét

HZ067950 | 4 szoba | 110 m²
98 000 000 Ft

6000 Kecskemét Kecskemét Piac közeli üzlethelyiség akár lakásnak akár irodának eladó!

LK032285 | 2 szoba | 81 m²
69 990 000 Ft

6000 Kecskemét Belváros csendes utcájában 75 nm-es ház

HZ066575 | 2 szoba | 75 m²
44 900 000 Ft

6000 Kecskemét Új építésű 29-78nm-es lakások, liftes társasházban.

PR031814/LK/23320 | 2 szoba | 62 m²
64 781 600 Ft

6000 Kecskemét Új építésű 29-78nm-es lakások, liftes társasházban.

PR031814/LK/23321 | 3 szoba | 71 m²
74 110 400 Ft

6000 Kecskemét BEFEKTETŐK, MUNKÁSSZÁLLÓ KERESŐK FIGYELEM!

HZ079101 | 8 szoba | 200 m²
85 000 000 Ft

6000 Kecskemét Társasház építési tervdokumentáció, belvárosi telekkel eladó!

TK090270 | 361 m²
110 000 000 Ft

6000 Kecskemét 5 Lakásos polgári társasház, telek áron a belvárosban

HZ099838 | 5 szoba | 420 m²
99 900 000 Ft

6000 Kecskemét Kuriózum! Hatalmas, exkluzív lakás eladó a Főtér közelében!

LK024351 | 4 szoba | 140 m²
125 000 000 Ft

6000 Kecskemét Kecskeméten Rákóczi úton, 2 szobás, ERKÉLYES LAKÁS eladó

LK017041 | 2 szoba | 55 m²
52 800 000 Ft

6000 Kecskemét Kecskemét, belvárosi lakás garázzsal eladó !

LK072626 | 2 szoba | 95 m²
79 000 000 Ft

6000 Kecskemét Első lakás vagy Befektetés Kecskemét belvárosában

HZ097754 | 1 szoba | 26 m²
22 000 000 Ft

6000 Kecskemét Nappali + 4 szobás új ikerház autóbeállóval, 334 nm telekkel

HZ031597 | 5 szoba | 120 m²
108 500 000 Ft

6000 Kecskemét Felújított kétrendbeli ház

HZ039485 | 6 szoba | 210 m²
169 000 000 Ft

6044 Kecskemét VÍZTORONYBÓL LOFT LAKÁS!

HZ098640 | 2 szoba | 110 m²
39 900 000 Ft
Holló-Vörös Ramóna
Briliáns fokozatú értékesítő
Kapcsolatfelvétel
Hívom
Kapcsolatfelvétel
Kérjen egy személyes megtekintést az ingatlanra a Duna House értékesítőjétől
Válassz egy időpontot