.
Eladó Lakás 1076 Budapest 7. kerület , MINIGARZON ELADÓ VÁROSLIGET MELLETT
LK061675
Eladó
Társasház
Új
Prémium
43 800 000 Ft
1076 Budapest 7. kerület , MINIGARZON ELADÓ VÁROSLIGET MELLETT
2 szoba
19 m²
Tégla
Törlesztőrészlet Ft/hó
THM %
9 megtekintés az elmúlt 7 napban
Leírás
MINIGARZON  ELADÓ!

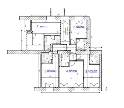
7. kerületben, Szinva utcában, rendezett társasház magasföldszintjén,  89 nm alapterület + 46 nm ingatlan, 5 lakóegységre osztott egyik lakását kínáljuk eladásra.  

A felújítás még zajlik, de már rugalmasan megtekinthetőek. 2026 márciusában költözhetőek. Minden lakás konyhával, nappalival, fürdőszobával és galériás hálószobával rendelkezik.  4.2 m. belmagasságával kényelmes otthont biztosít. Észak keleti fekvésű, külön villany és vízórával felszereltek. Az ár tartalmazza a beépített bútorokat.

A lakások külön, ügyvédi megosztással megvásárolhatóak, de az 5 minigarzon egyben is eladó.
2.    lakás: 12,6 nm + 6,7 nm galéria
További inofrmációkért, megtekintésre hívjon bizalommal!

Mutass többet
Általános adatok
Ingatlan állapota:
5 - Nagyon jó
Építés éve:
1900
Emelet:
Földszint
Emeletek száma:
3
Lift:
Nincs Lift
Épület külső állapota:
4 - Jó
Épület belső állapota:
4 - Jó
Fényviszonyok:
Közepes
Parkolás:
Nincs
Erkély/Terasz:
Nincs
Nézet:
Udvar
Tájolás:
DNY
Fűtés:
Elektromos,Klíma
Energetikai besorolás:
Nincs megadva
Lakáshitel kalkulátor – Spórolj velünk!
Kalkulálj most, és keresd pénzügyi szakértőinket, akik ingyenes tanácsadással segítenek megtalálni a számodra legjobb megoldást!

Hasonló ingatlanok

1074 Budapest 7. kerület

LK052434 | 1 szoba | 31 m²
60 900 000 Ft

1075 Budapest 7. kerület BUDAPEST LEGMENŐBB LEGVÁLTOZATOSABB GASZTROUTCÁJÁBAN NAPPALI+2 HÁLÓS BELSŐ KÉTSZINTES LAKÁS

LK026347 | 3 szoba | 23 m²
58 900 000 Ft

1078 Budapest 7. kerület

LK497554 | 1 szoba | 29 m²
43 900 000 Ft

1072 Budapest 7. kerület Klauzál utcánál, álló galériás, - szuper lakás

LK076017 | 1 szoba | 35 m²
55 900 000 Ft

1073 Budapest 7. kerület belső udvaros, galériás felújított ingatlan

LK088892 | 2 szoba | 18 m²
49 900 000 Ft

1073 Budapest 7. kerület Liszt Ferenc tér közelében 1,5 szobás felújított lakás

LK091568 | 2 szoba | 35 m²
63 500 000 Ft

1071 Budapest 7. kerület Peterdy utca - stúdió lakás- friss felújítás

LK085720 | 1 szoba | 22 m²
29 600 000 Ft

1072 Budapest 7. kerület Kompakt, két szobás butik-lakás a Klauzál térnél!

LK098735 | 2 szoba | 36 m²
74 900 000 Ft

1078 Budapest 7. kerület Városliget szomszédságában - Frissen felújított stúdió lakás

LK068564 | 1 szoba | 15 m²
29 800 000 Ft

1074 Budapest 7. kerület

LK063052 | 1 szoba | 29 m²
57 000 000 Ft

1074 Budapest 7. kerület VALÓDI KINCSESBÁNYA! Pompás, csendes emeleti lakás ELADÓ!

LK061892 | 3 szoba | 57 m²
73 000 000 Ft

1078 Budapest 7. kerület Felújított ingatlan a belváros szívében

UZ016065 | 3 szoba | 50 m²
55 000 000 Ft

1074 Budapest 7. kerület A Rózsák terének (közvetlen) szomszédságában.

LK037613 | 2 szoba | 40 m²
59 500 000 Ft

1078 Budapest 7. kerület Állatorvostudományi Egyetemnél -VÁROSLIGET

LK098601 | 2 szoba | 50 m²
77 000 000 Ft

1073 Budapest 7. kerület Erkélyes lakás, remek befektetés a körút legjobb részén!!

LK043145 | 2 szoba | 40 m²
80 343 900 Ft

1077 Budapest 7. kerület Erzsébetvárosban, 73 m2-es, 2 lakássá bontható

LK097241 | 2 szoba | 73 m²
79 900 000 Ft

1071 Budapest 7. kerület A 7. és a 14. kerület határán

LK095717 | 2 szoba | 62 m²
72 000 000 Ft

1075 Budapest 7. kerület Egyedi stílusú lakás a Rumbach Sebestyén utcában

LK084938 | 2 szoba | 45 m²
75 000 000 Ft

1076 Budapest 7. kerület

H502942 | 3 szoba | 74 m²
79 499 999 Ft

1075 Budapest 7. kerület felújított állógalériás garzon a Deák tér közelében

LK023690 | 1 szoba | 29 m²
52 300 000 Ft
Rónai Krisztina
Briliáns fokozatú értékesítő
Kapcsolatfelvétel
Hívom
Kapcsolatfelvétel
Kérjen egy személyes megtekintést az ingatlanra a Duna House értékesítőjétől
Válassz egy időpontot