.
Eladó Lakás 1021 Budapest 2. kerület
LK032657
Eladó
Társasház
Hamarosan jön
Új
94 990 000 Ft
1021 Budapest 2. kerület
2 szoba
75 m²
Tégla
Törlesztőrészlet Ft/hó
THM %
2 megtekintés az elmúlt 7 napban
Leírás

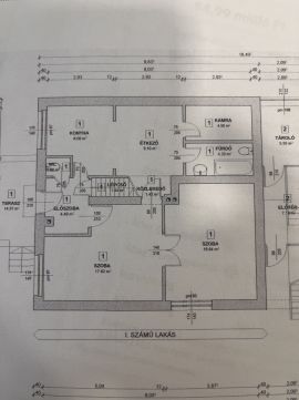
Csendes erdő melletti zsákutcában, csaladi házban felemeleti felújítandó 75 nm-es, kétszobás lakás sürgősen eladó.



A három lakásos ház alsó szintjén található  lakásban a két szobán kívül konyha, étkező. amely egy szobává alakítható, fürdő, külön wc, előszoba és közlekedő van.

A teljes felújítast el kell végezni, nyílászárók,  a burkolatok, teljes gépészet a villamos halózattal együtt.


A ház előtti terasz alatt szén tárolásra hasznalt pince, felette fa szerkezetű fedés van.

A ház eladó része 1200 nm-es,
fákkal és dísznövénnyel beültetett, közös használatú kertben került megépítésre a hatvanas években. Külső hőszigetelése megtörtént.



A tulajdonosok ajánlata a lakáson felül egy három személyautó részére alkalmas fedett beálló, amelynek kompenzációjaként a ház tetőfelújítása
van megajánlva zsindely fedés elvégzésével opcióként.


Amennyiben hosszabb távon budai csendes zöldövezetben, erdővel szemben szeretne élni, akkor ennek a házrésznek, lakásnak a megvételét ajánlom.

Mutass többet
Általános adatok
Ingatlan állapota:
2 - Felújítandó
Építés éve:
1960
Emelet:
Földszint
Emeletek száma:
1
Lift:
Nincs Lift
Épület külső állapota:
3 - Lakható
Épület belső állapota:
2 - Felújítandó
Fényviszonyok:
Parkolás:
Nincs
Erkély/Terasz:
Van
Nézet:
Kert/belső kert
Tájolás:
DNY
Fűtés:
Gáz kazán
Energetikai besorolás:
Nincs megadva
Hamarosan jön
A ”Hamarosan jön” státuszú ingatlanok esetében jelenleg még folyamatban vannak a jogi és egyéb ellenőrzési folyamatok, így azok még nem teljesültek maradéktalanul. A Duna House Franchise Kft. és annak hálózatában tevékenykedők nem vállalnak felelősséget azért, hogy az adott hirdetés mikor kerül ”aktív” státuszba, vagy aktív státuszba kerül-e végül. A részletekről érdeklődjenek az adott hirdetésnél található DH partner értékesítői elérhetőségeken.
Mutass többet
Lakáshitel kalkulátor – Spórolj velünk!
Kalkulálj most, és keresd pénzügyi szakértőinket, akik ingyenes tanácsadással segítenek megtalálni a számodra legjobb megoldást!

Hasonló ingatlanok

1026 Budapest 2. kerület Elegáns, letisztult design lakás Pasaréten!

LK080150 | 2 szoba | 54 m²
129 900 000 Ft

1027 Budapest 2. kerület Erkélyes, luxus design lakás Buda szívében!

LK032007 | 2 szoba | 83 m²
164 000 000 Ft

1021 Budapest 2. kerület XII. KERÜLET FREKVENTÁLT RÉSZÉN FÖLDSZINTI LAKÁS

LK014481 | 4 szoba | 108 m²
162 000 000 Ft

1027 Budapest 2. kerület

LK062824 | 1 szoba | 34 m²
79 900 000 Ft

1025 Budapest 2. kerület Szemlőhegy

LK052153 | 1 szoba | 35 m²
95 000 000 Ft

1027 Budapest 2. kerület Vizivárosban

LK013469 | 2 szoba | 61 m²
74 900 000 Ft

1021 Budapest 2. kerület

H497729 | 3 szoba | 78 m²
135 500 000 Ft

1026 Budapest 2. kerület Rózsakert közelében

LK059543 | 3 szoba | 72 m²
160 000 000 Ft

1026 Budapest 2. kerület Törökvészen design lakás teljes berendezéssel, autóbeállóval

LK075568 | 2 szoba | 57 m²
145 900 000 Ft

1029 Budapest 2. kerület ADYLIGET PANORÁMÁS UTCÁJÁBAN

LK071996 | 4 szoba | 116 m²
158 000 000 Ft

1025 Budapest 2. kerület Felújítandó,2 szobás,erkélyes lakás a Zöldlomb utcában!

LK096256 | 2 szoba | 60 m²
109 900 000 Ft

1023 Budapest 2. kerület

LK060442 | 4 szoba | 77 m²
163 000 000 Ft

1021 Budapest 2. kerület

LK074957 | 2 szoba | 49 m²
99 000 000 Ft

1023 Budapest 2. kerület

LK038446 | 1 szoba | 28 m²
39 000 000 Ft

1025 Budapest 2. kerület Kiváló lokáció-Sétatávolságra a Kolosy tér-Teraszos-Autóbeá

LK098496 | 1 szoba | 43 m²
77 900 000 Ft

1025 Budapest 2. kerület Kis lakóközösség-Autóbeálló-Terasz

LK054616 | 1 szoba | 38 m²
69 900 000 Ft

1025 Budapest 2. kerület KIS lakóközösség/ Autóbeálló/ Terasz

LK051550 | 2 szoba | 76 m²
129 900 000 Ft

1025 Budapest 2. kerület Kiváló lokáció-Sétatávolságra a Kolosy tér-Kertkapcsolat

LK059683 | 2 szoba | 46 m²
109 900 000 Ft

1025 Budapest 2. kerület Kiváló lokáció-Sétatávolságra a Kolosy tér-Terasz-Autóbeáll

LK055586 | 2 szoba | 47 m²
109 900 000 Ft

1025 Budapest 2. kerület

LK022664 | 2 szoba | 64 m²
187 000 000 Ft
Dombai Ferenc
Arany fokozatú értékesítő
Kapcsolatfelvétel
Hívom
Kapcsolatfelvétel
Kérjen egy személyes megtekintést az ingatlanra a Duna House értékesítőjétől
Válassz egy időpontot