.
Eladó Lakás 1042 Budapest 4. kerület
LK030734
Eladó
Lakás
Új
135 000 000 Ft
1042 Budapest 4. kerület
4 szoba
98 m²
Tégla
Törlesztőrészlet Ft/hó
THM %
1 megtekintés az elmúlt 7 napban
Leírás
ÚJ ÉPÍTÉSŰ PRÉMIUM LAKÁS ÚJPEST KÖZPONTJÁBAN METRÓ és ÜZLETEK KÖZELÉBEN!

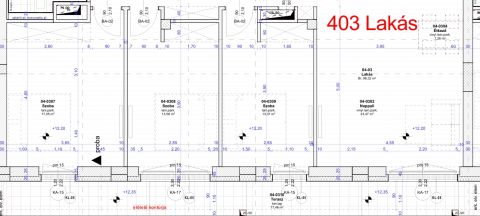
Újpest szívében, kiváló közlekedés mellett, új építésű, modern társasházban kínálunk megvételre egy 4. emeleti, erkélyes, 4 szobás prémium lakást.

Nettó alapterület: 98.32 m² - Erkély: 17.45 m² - Tervezett átadás: 2026. március.

Energiatakarékos, modern műszaki megoldások:
- A+ energetikai besorolás
- Hőszivattyús fűtési rendszer, hőleadás padlófűtéssel
- Fan-coil kiállás minden szobában (beltéri egység nélkül)
- Egyedi hőmennyiségmérő és termosztátos szabályozás
- Fürdőszobában elektromos fűtőpatronos törülközőszárítós radiátor

Minőségi szerkezet és felszereltség:
- Vasbeton pillérvázas szerkezet, monolit vasbeton födém
- Külső falazat: 30 cm NF tégla + 15 cm hőszigetelés
- Lakáselválasztó falak: 30 cm SILKA HML
- Belső válaszfalak: Porotherm 10 NF
- 6 légkamrás, háromrétegű üvegezésű nyílászárók, meleg peremes kivitelben
- Külső nyílászárók: kívül antracit, belül fehér (2024-es hőtechnikai előírások szerint)
- Vakolható redőnytok, elektromos redőny előkészítéssel
- Biztonsági bejárati ajtó, riasztó és mozgásérzékelő előkészítés
- Kaputelefon
- Lakásonként külön elektromos-, hő-, hideg- és melegvíz-mérők

Teremgarázs vásárolható (+ 8 M), elektromos autótöltési lehetőség előkészítve.

Megbízható beruházói háttér:
A projektet több évtizedes budapesti és agglomerációs tapasztalattal rendelkező, megbízható beruházó valósítja meg, garantálva a minőséget és a határidők betartását.
Mutass többet
Általános adatok
Ingatlan állapota:
6 - Új. ép.
Építés éve:
2025
Emelet:
4
Emeletek száma:
4
Lift:
Hívó
Épület külső állapota:
6 - Új. ép.
Épület belső állapota:
6 - Új. ép.
Fényviszonyok:
Napfényes
Parkolás:
Van
Erkély/Terasz:
Van
Nézet:
Utca
Tájolás:
DNY
Fűtés:
Hőszivattyú,Padlófűtés
Energetikai besorolás:
A+
Lakáshitel kalkulátor – Spórolj velünk!
Kalkulálj most, és keresd pénzügyi szakértőinket, akik ingyenes tanácsadással segítenek megtalálni a számodra legjobb megoldást!

Hasonló ingatlanok

1044 Budapest 4. kerület

LK054170 | 1 szoba | 23 m²
21 000 000 Ft

1043 Budapest 4. kerület Újpesten, a Szent István térnél, 23 lakásos társasházban, 2025. decemberi átadással!

PR072083/LK/22749 | 4 szoba | 93 m²
120 354 000 Ft

1043 Budapest 4. kerület

H497730 | 4 szoba | 67 m²
79 900 000 Ft

1047 Budapest 4. kerület Újszerű iroda a Wolfner utcában!

IR037216 | 3 szoba | 73 m²
119 000 000 Ft

1042 Budapest 4. kerület Világos, 3 szobás, klímás panel lakás parkra néző kilátással

LK029593 | 3 szoba | 59 m²
69 900 000 Ft

1046 Budapest 4. kerület Rákospalota-Újpest vasútállomás környéke

LK077122 | 2 szoba | 80 m²
87 100 000 Ft

1047 Budapest 4. kerület Újpest központ közelében - szuper befektetés

LK019428 | 1 szoba | 29 m²
34 900 000 Ft

1046 Budapest 4. kerület

HZ027916 | 3 szoba | 70 m²
106 000 000 Ft

1046 Budapest 4. kerület

HZ087249 | 3 szoba | 92 m²
124 990 000 Ft

1047 Budapest 4. kerület

LK048262 | 2 szoba | 39 m²
53 000 000 Ft

1041 Budapest 4. kerület

HZ093434 | 2 szoba | 31 m²
38 000 000 Ft

1047 Budapest 4. kerület két, szomszédos, kertkapcsolatos lakás - összeköltözőknek!

LK038545 | 3 szoba | 73 m²
69 900 000 Ft

1047 Budapest 4. kerület garzon, rendezett udvarban, kis lakásszámmal, kertvárosban

LK054131 | 1 szoba | 32 m²
38 000 000 Ft

1048 Budapest 4. kerület Bőröndös utca

LK043294 | 3 szoba | 67 m²
82 000 000 Ft

1048 Budapest 4. kerület Káposztásmegyer

LK045945 | 3 szoba | 85 m²
96 900 000 Ft

1048 Budapest 4. kerület Erkélyes, ablakos konyhás 3 szobás lakás eladó

LK092948 | 3 szoba | 70 m²
76 500 000 Ft

1043 Budapest 4. kerület Újpest-Központ közelében

LK058201 | 3 szoba | 52 m²
57 900 000 Ft

1043 Budapest 4. kerület

H507362 | 3 szoba | 125 m²
139 990 000 Ft

1041 Budapest 4. kerület

LK020712 | 3 szoba | 59 m²
75 500 000 Ft

1042 Budapest 4. kerület

LK071870 | 1 szoba | 37 m²
55 500 000 Ft
Tolnai Gábor
Arany fokozatú csoportvezető
Kapcsolatfelvétel
Hívom
Kapcsolatfelvétel
Kérjen egy személyes megtekintést az ingatlanra a Duna House értékesítőjétől
Válassz egy időpontot