.
Eladó Lakás 1044 Budapest 4. kerület , IV. újépítésű háromszobás első emeleti A+ energetika
LK030422
Eladó
Társasház
Hamarosan jön
Új
93 700 000 Ft
1044 Budapest 4. kerület , IV. újépítésű háromszobás első emeleti A+ energetika
3 szoba
63 m²
Tégla
Törlesztőrészlet Ft/hó
THM %
3 megtekintés az elmúlt 7 napban
Leírás
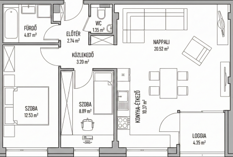
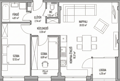
Újépítésű, háromszobás, mennyezeti hűtés-fűtéses lakás Újpesten modern otthon a természetvédelmi terület határán

Eladó egy nappali-konyha + 2 hálószobás, első emeleti, korszerű kialakítású lakás a IV. kerületben a város szélén csendes ősfás környezetben. Letisztult terek, energiatakarékos mennyezeti hűtés-fűtés rendszer, praktikus elrendezés ideális választás saját otthonnak és befektetésnek is.

A lakásról:

Az 1. emeleten található, átgondolt alaprajzú ingatlan kényelmes életteret biztosít akár családok, akár párok számára.

Főbb jellemzők:

Nappali-konyha + 2 külön nyíló hálószoba
1 db fürdőszoba
1 db külön WC
Mennyezeti hűtés-fűtés rendszer
Modern, korszerű műszaki megoldások
Első emeleti elhelyezkedés

A nappali és a konyha egy légtérben kapott helyet, így világos, közösségi tér jött létre, ahol a családi és baráti együttlétek természetes központja alakul ki.
A két külön hálószoba biztosítja az intimitást és a nyugodt pihenést.

A mennyezeti hűtés-fűtés nemcsak energiatakarékos, hanem esztétikus megoldás is nincs radiátor, nincs klímaberendezés a falon, csak tiszta, letisztult enteriőr és kellemes hőérzet egész évben.

Opcionális lehetőségek:

Teremgarázshely vásárolható
Tároló vásárolható

A parkolás és a tárolás kérdése így hosszú távon is megnyugtatóan rendezhető.

A környékről Újpest, Székesdűlő

A IV. kerület folyamatosan fejlődő, egyre keresettebb része. Rendezett lakókörnyezet, jó infrastruktúra és kiváló közlekedés jellemzi.

Közlekedés és infrastruktúra:

M3 metró 10 perc alatt tömegközlekedéssel elérhető

Minden adott a kényelmes, modern városi élethez.

Az életérzés:

Letisztult, modern otthon, ahol a funkcionalitás és a komfort találkozik.
Kényelmes reggelek a világos nappaliban, nyugodt esték a saját hálószobában.
Biztonságos, jól megközelíthető környezet, ahol jó hazaérkezni.

Ez nem csupán egy lakás ez egy tudatos döntés a minőség mellett.

Kinek ideális?

Családoknak
Fiatal pároknak
Befektetőknek kiadási céllal
Azoknak, akik modern gépészetű, fenntartható otthont keresnek

Egy jól megválasztott lakás értékálló döntés.
Ne maradjon le róla.

Várom hívását a megtekintéshez!
Mutass többet
Általános adatok
Ingatlan állapota:
6 - Új. ép.
Építés éve:
2026
Emelet:
1
Emeletek száma:
3
Lift:
Hívó
Épület külső állapota:
6 - Új. ép.
Épület belső állapota:
6 - Új. ép.
Fényviszonyok:
Napfényes
Parkolás:
Nincs
Erkély/Terasz:
Van
Nézet:
Kert/belső kert
Tájolás:
DNY
Fűtés:
Mennyezeti hűtés-fűtés
Energetikai besorolás:
A+
Hamarosan jön
A ”Hamarosan jön” státuszú ingatlanok esetében jelenleg még folyamatban vannak a jogi és egyéb ellenőrzési folyamatok, így azok még nem teljesültek maradéktalanul. A Duna House Franchise Kft. és annak hálózatában tevékenykedők nem vállalnak felelősséget azért, hogy az adott hirdetés mikor kerül ”aktív” státuszba, vagy aktív státuszba kerül-e végül. A részletekről érdeklődjenek az adott hirdetésnél található DH partner értékesítői elérhetőségeken.
Mutass többet
Lakáshitel kalkulátor – Spórolj velünk!
Kalkulálj most, és keresd pénzügyi szakértőinket, akik ingyenes tanácsadással segítenek megtalálni a számodra legjobb megoldást!

Hasonló ingatlanok

1044 Budapest 4. kerület

LK054170 | 1 szoba | 23 m²
21 000 000 Ft

1043 Budapest 4. kerület Újpesten, a Szent István térnél, 23 lakásos társasházban, 2025. decemberi átadással!

PR072083/LK/22749 | 4 szoba | 93 m²
120 354 000 Ft

1047 Budapest 4. kerület Újszerű iroda a Wolfner utcában!

IR037216 | 3 szoba | 73 m²
119 000 000 Ft

1042 Budapest 4. kerület Világos, 3 szobás, klímás panel lakás parkra néző kilátással

LK029593 | 3 szoba | 59 m²
69 900 000 Ft

1046 Budapest 4. kerület Rákospalota-Újpest vasútállomás környéke

LK077122 | 2 szoba | 80 m²
87 100 000 Ft

1046 Budapest 4. kerület

HZ027916 | 3 szoba | 70 m²
106 000 000 Ft

1046 Budapest 4. kerület

HZ087249 | 3 szoba | 92 m²
124 990 000 Ft

1047 Budapest 4. kerület

LK048262 | 2 szoba | 39 m²
53 000 000 Ft

1041 Budapest 4. kerület

HZ093434 | 2 szoba | 31 m²
38 000 000 Ft

1047 Budapest 4. kerület két, szomszédos, kertkapcsolatos lakás - összeköltözőknek!

LK038545 | 3 szoba | 73 m²
69 900 000 Ft

1047 Budapest 4. kerület garzon, rendezett udvarban, kis lakásszámmal, kertvárosban

LK054131 | 1 szoba | 32 m²
38 000 000 Ft

1048 Budapest 4. kerület Bőröndös utca

LK043294 | 3 szoba | 67 m²
82 000 000 Ft

1048 Budapest 4. kerület Káposztásmegyer

LK045945 | 3 szoba | 85 m²
96 900 000 Ft

1048 Budapest 4. kerület Erkélyes, ablakos konyhás 3 szobás lakás eladó

LK092948 | 3 szoba | 70 m²
76 500 000 Ft

1043 Budapest 4. kerület Újpest-Központ közelében

LK058201 | 3 szoba | 52 m²
57 900 000 Ft

1043 Budapest 4. kerület

H507362 | 3 szoba | 125 m²
139 990 000 Ft

1041 Budapest 4. kerület

LK020712 | 3 szoba | 59 m²
75 500 000 Ft

1042 Budapest 4. kerület

LK071870 | 1 szoba | 37 m²
55 500 000 Ft

1041 Budapest 4. kerület Világos, klímás lakás Újpest Városközpontnál

LK099488 | 2 szoba | 50 m²
64 900 000 Ft

1044 Budapest 4. kerület

H501760 | 2 szoba | 45 m²
61 933 608 Ft
Márton Géza
Értékesítő
Kapcsolatfelvétel
Hívom
Kapcsolatfelvétel
Kérjen egy személyes megtekintést az ingatlanra a Duna House értékesítőjétől
Válassz egy időpontot