.
Kiadó Lakás 2367 Újhartyán , Újépítésű lakás, központi részen!!
LK021842
Kiadó
Lakás
Hamarosan jön
Új
230 000 Ft
2367 Újhartyán , Újépítésű lakás, központi részen!!
2 szoba
47 m²
Tégla
0 megtekintés az elmúlt 7 napban
Leírás
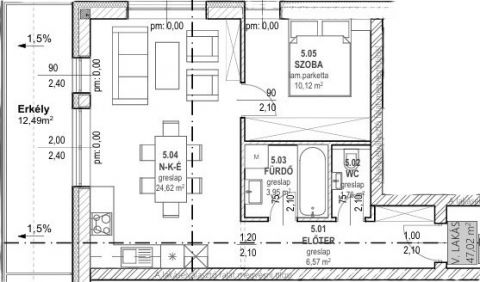
Kiadó 47 nm-es, újépítésű lakás Újhartyán szívében!

A 7 lakásos tégla építésű társasház Újhartyán központjában egy csendes mellékutcában helyezkedik el. A kiadó emeleti lakás 1 hálószobából, egy külön WC-ből, fürdőszobából, és egy közel 25 nm-es amerikai konyhás nappaliból áll. Az ingatlanhoz tartozó saját 12,5 m²-es erkély tökéletes lehetőséget nyújt a kikapcsolódásra.  A lakás modern hőszivattyús rendszerrel, energiatakarékos padló-mennyezet hűtés-fűtéssel rendelkezik. Az ingatlanhoz egy saját parkolóhely tartozik, amely egy autó számára biztosít helyet.

Újhartyán biztonságos, barátságos település, ahol minden megtalálható: bölcsőde, óvoda, iskola, boltok, éttermek, és mind ez pár perc sétára. A közlekedés kiváló az M5-ös autópálya lehajtója mindössze 3 percre található. A Volánbusz közvetlen járatot kínál a Népligetbe, a busz megállója a lakástól 1 perc séta távolságra helyezkedik el.

Az ingatlan részben bútorozott állapotban, a képeken látható beépített, gépesített konyhával, beépített előszobaszekrénnyel, valamint a fürdőszobában található tükrös szekrénnyel kerül bérbeadásra.

A lakás minimum 1 évre bérelhető, 2 havi kaució fizetése szükséges.

További kérdés esetén állok szíves rendelkezésükre hétvégén is, a megadott elérhetőségek bármelyikén.
Mutass többet
Általános adatok
Ingatlan állapota:
6 - Új. ép.
Építés éve:
2025
Emelet:
1
Emeletek száma:
1
Lift:
Nincs Lift
Épület külső állapota:
6 - Új. ép.
Épület belső állapota:
6 - Új. ép.
Fényviszonyok:
Napfényes
Parkolás:
Van
Erkély/Terasz:
Van
Nézet:
Utca
Tájolás:
DNY
Fűtés:
Hőszivattyú
Energetikai besorolás:
Nincs megadva
Hamarosan jön
A ”Hamarosan jön” státuszú ingatlanok esetében jelenleg még folyamatban vannak a jogi és egyéb ellenőrzési folyamatok, így azok még nem teljesültek maradéktalanul. A Duna House Franchise Kft. és annak hálózatában tevékenykedők nem vállalnak felelősséget azért, hogy az adott hirdetés mikor kerül ”aktív” státuszba, vagy aktív státuszba kerül-e végül. A részletekről érdeklődjenek az adott hirdetésnél található DH partner értékesítői elérhetőségeken.
Mutass többet
Keresd szakértőinket a legmegfelelőbb pénzügyi megoldásért!
A kapcsolatfelvétel nem jelent számodra semmilyen kötelezettséget.
Barta-Léka Bettina
Ezüst fokozatú értékesítő
Kapcsolatfelvétel
Hívom
Kapcsolatfelvétel
Kérjen egy személyes megtekintést az ingatlanra a Duna House értékesítőjétől
Válassz egy időpontot