.
IP044917
Eladó
Telephely
Prémium
335 000 000 Ft
2851 Környe , Környe - tóparti telephely, többféle hasznosítási lehetőség
850 m²
8 megtekintés az elmúlt 7 napban
Leírás
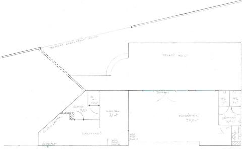
Eladó egy sokrétűen hasznosítható telephely Környén, közvetlenül a tóparton.

Jellemzői:
  • 5630 m² terület
  • 850 m² tégla építésű felépítmény mely több részből, épületből áll: iroda, csarnok, műhely, étterem
  • a felépítmények földhasználati joggal külön helyrajzi számokon önálló ingatlanok
  • az elmúlt pár évben fejlesztéseket, felújításokat végzett el a jelenlegi tulajdonos
  • a felépítmények felújított állapotúak: Terran betoncserép, homlokzati és födémszigetelés, új villanyvezetékek
  • a terület kettő irányból is megközelíthető elektromos kapun keresztül
  • közművek: összesen 5 villanyóra áll rendelkezésre, vezetékes víz szolgáltatás és tűzivíz
  • a szennyvíz elvezetése 3 db emésztő tartályba történik
  • vasúti pálya a közvetlen szomszédban
  • Gksz-1 övezetbe tartozik
  • kiépített kamerarendszer távfelügyelettel
  • híddaru pálya kiépítés
  • Hörmann garázskapu
  • kiépített sűrített levegős rendszer
  • hűtő-fűtő klímaberendezések

Az ingatlan adottságai révén kiváló helyszínt biztosít összetett üzleti tevékenységek számára. További részletekért és egyedi tájékoztatásért keressen bizalommal a megadott elérhetőségeim bármelyikén.

Mutass többet
Általános adatok
Ingatlan állapota:
Nincs megadva
Építés éve:
1990
Fűtés:
Hőszivattyú
Telek:
5630.00 m²
Energetikai besorolás:
Nincs megadva
Keresd szakértőinket a legmegfelelőbb pénzügyi megoldásért!
A kapcsolatfelvétel nem jelent számodra semmilyen kötelezettséget.

Hasonló ingatlanok

2851 Környe

IP028234 | 720 m²
63 000 000 Ft
Verli Zsófia
Briliáns fokozatú értékesítő
Kapcsolatfelvétel
Hívom
Kapcsolatfelvétel
Kérjen egy személyes megtekintést az ingatlanra a Duna House értékesítőjétől
Válassz egy időpontot