.
Eladó Irodaépület 7630 Pécs , Balokánynál 600 nm-es telephely irodákkal és raktárakkal
IH053337
Eladó
Irodaépület
Hamarosan jön
Új
269 000 000 Ft
7630 Pécs , Balokánynál 600 nm-es telephely irodákkal és raktárakkal
600 m²
1 megtekintés az elmúlt 7 napban
Leírás
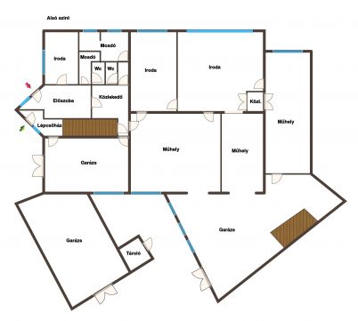
Pécs balokányi részén a Tüskésréti út közelében eladó egy 2018-ban épült, össz. 650 nm-es, 2 szintes, iroda, műhely és garázs helyiségekből álló, felűjított, telephely.

Az ingatlan földszintjén közel 400 nm-en irodák, garázsok, tárolók és műhely,
míg az 1. emeletén pedig 260 nm alapterületű, 10 helyiségből álló, felújított, klímával és kamera rendszerrel felszerelt irodák találhatók.

Parkolás az épület környezetében is megoldott.
Fűtését 2 db gázkazán és klímák biztosítják.

Ár: 269M Ft
Mutass többet
Általános adatok
Ingatlan állapota:
Nincs megadva
Építés éve:
2018
Emeletek száma:
0
Lift:
Nincs megadva
Parkolás:
Nincs
Fűtés:
Gáz kazán,Klíma
Energetikai besorolás:
Nincs megadva
Hamarosan jön
A ”Hamarosan jön” státuszú ingatlanok esetében jelenleg még folyamatban vannak a jogi és egyéb ellenőrzési folyamatok, így azok még nem teljesültek maradéktalanul. A Duna House Franchise Kft. és annak hálózatában tevékenykedők nem vállalnak felelősséget azért, hogy az adott hirdetés mikor kerül ”aktív” státuszba, vagy aktív státuszba kerül-e végül. A részletekről érdeklődjenek az adott hirdetésnél található DH partner értékesítői elérhetőségeken.
Mutass többet
Keresd szakértőinket a legmegfelelőbb pénzügyi megoldásért!
A kapcsolatfelvétel nem jelent számodra semmilyen kötelezettséget.

Hasonló ingatlanok

7621 Pécs ======Király utcai befektetési lehetőség=====

HZ345527 | 4 szoba | 287 m²
110 000 000 Ft

7630 Pécs Gyárvárosban 300 nm-es üzem/iroda eladó

IP027841 | 390 m²
129 900 000 Ft

7623 Pécs 'Belvárosi utcafronti üzlethelyiség parkolókkal'

UZ083617 | 155 m²
89 000 000 Ft

7627 Pécs 'Bővithető üzleti ingatlan PécsBelváros közelében parkolási

IP044690 | 348 m²
139 000 000 Ft

7621 Pécs

LK099059 | 3 szoba | 162 m²
145 000 000 Ft

7630 Pécs Felújított-MEDENCÉS családi ház tágas műhellyel

HZ071955 | 6 szoba | 100 m²
129 900 000 Ft

7622 Pécs Árkád szomszédságában635 nm felújított irodaház és raktárak

IH091132 | 635 m²
290 000 000 Ft

7631 Pécs

IR063635 | 990 m²
595 000 000 Ft
Spiesz Patrik
Örökös tag értékesítő
Kapcsolatfelvétel
Hívom
Kapcsolatfelvétel
Kérjen egy személyes megtekintést az ingatlanra a Duna House értékesítőjétől
Válassz egy időpontot