.
Eladó Ház 9177 Ásványráró
HZ083129
Eladó
Családi ház
Áresés
49 000 000 Ft
9177 Ásványráró
4 szoba
91 m²
639 m² telek
Törlesztőrészlet Ft/hó
THM %
6 megtekintés az elmúlt 7 napban
Leírás
Ásványrárón családi házas övezetben, új építésű családi házak ELADÓK!

„Ásványráró a Szigetköz központi része, a Duna mellett, Győr és Mosonmagyaróvár között fekszik. 1936-ban egyesítették a két községet, Ásványt és Rárót.” Wikipedia

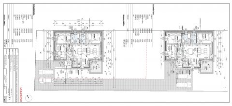
Belterületen, csendes, jól megközelíthető 1057 nm-es telken két ház épül mindkettő 91,3 nm-es.

A házak egyformák, 3 szoba + amerikai konyhás nappali 16 nm-es terasszal, de nem kapcsolódnak egymáshoz, ez a ház 639 nm-es telekrésszel rendelkeznek, mely osztatlan közös tulajdonban vannak.

A szerződéstől számított maximum 10 hónapon belül fűtéskész állapotban kerül átadásra, de kulcsrakész állapot is kérhető.

A telek ára 639 nm-es 9,5 mft.

Néhány műszaki jellemző:

- tégla szerkezetű, főfalak 30 cm-es Leier N+F kézi falazóblokkból készülnek

- válaszfalak 10 cm-es Leier 10/50 N+F válaszfaltéglából kerülnek kialakításra

- három rétegű Kömmerling nyílászárók (redőnyt, szúnyoghálót az ár nem tartalmaz)

- helyileg gyártott fa tetőszerkezet (Terran Synus cserép)

- padlószigetelés, hőszigetelés, talajnedvesség elleni szigetelés...

- fűtésrendszer hőszivattyúval kerül kiépítésre, helyiségenként padlófűtéssel

Irodánkban bankfüggetlen pénzügyi ügyintézéssel és ügyvédi háttérrel állunk rendelkezésére!

Várom érdeklődését akár HÉTVÉGÉN is!

Mutass többet
Általános adatok
Építés éve:
2025
Belső szintek száma:
1
Épület külső állapota:
6 - Új. ép.
Épület belső állapota:
6 - Új. ép.
Fényviszonyok:
Napfényes
Nézet:
Udvar
Fűtés:
Hőszivattyú
Szerkezet:
Tégla
Energetikai besorolás:
Nincs megadva
Víz:
Ingatlanban
Gáz:
Utcában
Villany:
Ingatlanban
Csatorna:
Ingatlanban
Lakáshitel kalkulátor – Spórolj velünk!
Kalkulálj most, és keresd pénzügyi szakértőinket, akik ingyenes tanácsadással segítenek megtalálni a számodra legjobb megoldást!

Hasonló ingatlanok

9177 Ásványráró Duna közeli

HZ016507 | 4 szoba | 138 m²
80 000 000 Ft

9177 Ásványráró

HZ065330 | 4 szoba | 91 m²
49 000 000 Ft

9177 Ásványráró Győri út közelében

HZ073537 | 4 szoba | 100 m²
39 900 000 Ft

9177 Ásványráró 9177 Ásványráró, CSALÁDI HÁZAS ÖVEZET

M317352 | 3 szoba | 75 m²
38 800 000 Ft

9177 Ásványráró Part Camping Ásványráró

HZ066680 | 3 szoba | 104 m²
32 900 000 Ft

9177 Ásványráró

HZ021445 | 2 szoba | 70 m²
35 000 000 Ft

9177 Ásványráró

HZ085004 | 3 szoba | 75 m²
35 000 000 Ft
Faddi Mihály
Platina fokozatú értékesítő
Kapcsolatfelvétel
Hívom
Kapcsolatfelvétel
Kérjen egy személyes megtekintést az ingatlanra a Duna House értékesítőjétől
Válassz egy időpontot