.
Eladó Ház 2721 Pilis , Vasútállomáshoz közel
HZ078804
Eladó
Ikerház
Új
56 640 000 Ft
2721 Pilis , Vasútállomáshoz közel
3 szoba
67 m²
412 m² telek
Törlesztőrészlet Ft/hó
THM %
4 megtekintés az elmúlt 7 napban
Leírás
ELADÓ ÚJ ÉPÍTÉSŰ 3 szobás  67,  m2-es IKERHÁZ Pilisen, VASÚTÁLLOMÁSHOZ KÖZEL KIVÁLÓ UTCÁBAN!

OTTHON START HITEL IGÉNYELHETŐ!

PILIS LEGJOBB KIVITELEZŐJÉTŐL, ÁLMODD MEG TE IS SAJÁT OTTHONOD! 

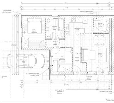
Alapterület 67 m2
Terasz:12,15  m2
Telek területe: 412  m2

Választható hideg és meleg burkolatok 700.000 Ft-ig teljes rétegrendben.  Dekorfóliás ajtók 60.000 Ft-ig választhatók.
Szaniterek: 250.000 Ft-ig

Kialakítása: 2 szoba, tágas amerikai nappali konyha, háztartási helyiség, előtér, közlekedő, fürdő+wc, nyitott terasz.

Több referenciamunka megtekinthető, minőségi munkák, több éves közös együttműködés.
Teljes műszaki tartalom a helyszínen megtekinthető.

EXTRA:
-Barna színű betoncserép fedés, barna színű alumínium ereszcsatorna.
-7x3 as térkő kocsibeálló( füst antracit) az árban
-utcafronti kerítés és az elektromos kapu az árban

Fűtést és a meleg vizet:  8,5 kw-os 1 fázisú hőszivattyú adja, padlófűtés mindenhol. 3,5 kw-os inverteres klíma az árban.

Műszaki paraméterek:
30 cm-es ytong teherhordó fal, 10 cm-es  viablokk válaszfalak, 6 cm Eps homlokzati szigetelés.
3 réteg műanyag fehér nyílászárók, több ponton záródó bejárati ajtó.

Hőszigetelés:
A padlóban 6 cm lépésálló EPS szigetelés készül a csatolt rétegrendek szerint.  A pórusbeton falazat külső oldalán 6 cm EPS hőszigetelés kerül elhelyezésre, a vasbeton koszorúk előtt további 10 cm kiegészítő hőszigetelés elhelyezése szükséges,  30 cm fújt hőszigetelés a mennyezetre.

Homlokzatképzés:
Az épület homlokzati felületképzése törtfehér színű kapart nemesvakolat. A lábazat sötétbarna színű lábazati festék. Az épülettömeg megjelenése illeszkedik az utcaképbe, a színek és megjelenés megválasztásakor figyelembe lettek véve a hatályos helyi településképi rendelet előírásai.

Budapest távolsága M4-es autópályán 25 perc, Vonattal 40 perc.

Várható Átadás: 2026.év vége  

CSOK plusz kedvezményes hitel igénybe vehető.Amennyiben felkeltettem érdeklődését, várom megtisztelő hívását.
Ügyvédi közreműködés és hitelügyintézés egy helyen.
Mutass többet
Általános adatok
Építés éve:
2026
Belső szintek száma:
1
Épület külső állapota:
6 - Új. ép.
Épület belső állapota:
6 - Új. ép.
Fényviszonyok:
Napfényes
Nézet:
Udvar
Fűtés:
Hőszivattyú
Szerkezet:
Tégla
Energetikai besorolás:
Nincs megadva
Víz:
Ingatlanban
Gáz:
Utcában
Villany:
Ingatlanban
Csatorna:
Ingatlanban
Lakáshitel kalkulátor – Spórolj velünk!
Kalkulálj most, és keresd pénzügyi szakértőinket, akik ingyenes tanácsadással segítenek megtalálni a számodra legjobb megoldást!

Hasonló ingatlanok

2721 Pilis Központhoz közeli családi ház

HZ063388 | 6 szoba | 81 m²
48 000 000 Ft

2721 Pilis Vasútállomáshoz közel

HZ099750 | 3 szoba | 103 m²
66 625 000 Ft

2721 Pilis Homokiszőlő dűlő

HZ017069 | 1 szoba | 32 m²
6 990 000 Ft

2721 Pilis Pilisen vasútállomás közelében 3 szobás családi ház eladó

HZ051465 | 4 szoba | 90 m²
41 000 000 Ft

2721 Pilis

HZ018870 | 1 szoba | 40 m²
8 500 000 Ft

2721 Pilis Tágas és világos családi ház, fedett terasszal és egy különálló kisházzal

HZ069784 | 3 szoba | 96 m²
38 000 000 Ft

2721 Pilis

HZ078876 | 4 szoba | 125 m²
24 000 000 Ft

2721 Pilis Családi ház nagy telekkel

HZ069950 | 1 szoba | 50 m²
29 900 000 Ft

2721 Pilis Pilis Hernád köz

HZ036593 | 4 szoba | 110 m²
79 800 000 Ft

2721 Pilis pilis

HZ020283 | 4 szoba | 77 m²
35 390 000 Ft

2721 Pilis Közel a természethez

TK059689 | 1201 m²
7 400 000 Ft

2721 Pilis pilis

HZ089816 | 4 szoba | 133 m²
44 900 000 Ft

2721 Pilis

HZ098458 | 3 szoba | 79 m²
29 900 000 Ft

2721 Pilis Zártkert

HZ026676 | 2 szoba | 50 m²
18 350 000 Ft

2721 Pilis

HZ021896 | 7 szoba | 154 m²
68 000 000 Ft

2721 Pilis Csendes utcában

HZ035604 | 4 szoba | 88 m²
57 900 000 Ft

2721 Pilis

ME027843 | 2 szoba | 50 m²
16 000 000 Ft

2721 Pilis KÉTGENERÁCIÓS CSALÁDI HÁZ!

HZ080573 | 3 szoba | 148 m²
54 900 000 Ft

2721 Pilis Lovasbirtok, lakóházzal, 6131 nm-es területtel!

HZ021650 | 4 szoba | 170 m²
81 900 000 Ft

2721 Pilis

HZ043794 | 1 szoba | 50 m²
22 000 000 Ft
Kollát Renáta
Örökös tag értékesítő
Kapcsolatfelvétel
Hívom
Kapcsolatfelvétel
Kérjen egy személyes megtekintést az ingatlanra a Duna House értékesítőjétől
Válassz egy időpontot