.
Eladó Ház 6000 Kecskemét , Vacsiközben felújitandó családi ház eladó
HZ076421
Eladó
Családi ház
Hamarosan jön
Új
Prémium
39 900 000 Ft
6000 Kecskemét , Vacsiközben felújitandó családi ház eladó
3 szoba
103 m²
553 m² telek
Törlesztőrészlet Ft/hó
THM %
3 megtekintés az elmúlt 7 napban
Leírás
Kecskemét kedvelt városrészében, a Vacsi közben eladó felújítandó családi ház.

Csendes, rendezett környezetben kínálunk megvételre egy jó adottságokkal rendelkező, felújítandó családi házat, amely alkalmas saját célra vagy befektetésnek.

Telek mérete: 533 m²
Lakóterület: 103 m²
Falazat: tégla
Építés becsült ideje: 1980-as évek
Tulajdonjog: 1/1
Birtokba vehető: rövid időn belül
Fizetés: kizárólag készpénz

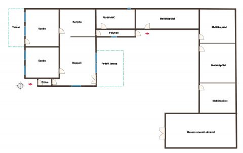
Helyiségek:

Nappali: 33,4 m²

Szoba: 20 m²

Szoba: 18 m²

Konyha: 14 m²

Fürdőszoba: 5 m²

Előtér: 2,56 m²

Fedett terasz: 10 m²

Nyitott terasz: 10 m²

Pince: 30 m²

Műszaki jellemzők:

Közművek: víz, villany, csatorna, gáz

Fűtés: gázkazán, a pincében elhelyezve

Villanyhálózat: régi, korszerűsítésre szorul

Nyílászárók: fa, cserére szorulnak

Tető: kőzetgyapottal szigetelt

Egyéb:

Garázs: 27 m², szerelőaknával és árammal ellátva

Az udvarban a garázs előtt további szerelőakna található

Az ingatlan körbekerített, a kerítés felújításra szorul

Több melléképület található a telken, amelyek teljes körű felújítást igényelnek

A környék csendes és keresett, az ingatlan jó alap lehet felújítás után lakhatásra vagy befektetésre.

Bővebb információért és megtekintésért keressen bizalommal.
Mutass többet
Általános adatok
Építés éve:
1980
Belső szintek száma:
1
Épület külső állapota:
2 - Felújítandó
Épület belső állapota:
3 - Lakható
Fényviszonyok:
Közepes
Nézet:
Udvar
Fűtés:
Gáz kazán,Házközponti
Szerkezet:
Tégla
Energetikai besorolás:
Nincs megadva
Víz:
Ingatlanban
Gáz:
Ingatlanban
Villany:
Ingatlanban
Csatorna:
Ingatlanban
Hamarosan jön
A ”Hamarosan jön” státuszú ingatlanok esetében jelenleg még folyamatban vannak a jogi és egyéb ellenőrzési folyamatok, így azok még nem teljesültek maradéktalanul. A Duna House Franchise Kft. és annak hálózatában tevékenykedők nem vállalnak felelősséget azért, hogy az adott hirdetés mikor kerül ”aktív” státuszba, vagy aktív státuszba kerül-e végül. A részletekről érdeklődjenek az adott hirdetésnél található DH partner értékesítői elérhetőségeken.
Mutass többet
Lakáshitel kalkulátor – Spórolj velünk!
Kalkulálj most, és keresd pénzügyi szakértőinket, akik ingyenes tanácsadással segítenek megtalálni a számodra legjobb megoldást!

Hasonló ingatlanok

6000 Kecskemét

HZ043339 | 5 szoba | 168 m²
54 900 000 Ft

6000 Kecskemét 2 különbejáratú, jóállapotú ház, Szelei faluban

HZ091729 | 6 szoba | 110 m²
45 000 000 Ft

6000 Kecskemét Matkópusztán 140 nm-es felújított tanya, 6647 nm telken

HZ057959 | 4 szoba | 145 m²
69 000 000 Ft

6000 Kecskemét

PR074321/HZ/18546 | 1 szoba | 106 m²
56 400 000 Ft

6000 Kecskemét

PR080394/HZ/18547 | 1 szoba | 95 m²
50 300 000 Ft

6000 Kecskemét

PR068181/HZ/18548 | 1 szoba | 91 m²
48 400 000 Ft

6000 Kecskemét

PR086421/HZ/18550 | 1 szoba | 97 m²
51 600 000 Ft

6000 Kecskemét

PR074195/HZ/18551 | 1 szoba | 71 m²
39 000 000 Ft

6000 Kecskemét

PR047093/HZ/18553 | 1 szoba | 99 m²
52 500 000 Ft

6000 Kecskemét

PR064946/HZ/18554 | 1 szoba | 95 m²
50 400 000 Ft

6000 Kecskemét 1 HEKTÁR 3 %-BAN BEÉPÍTHETŐ ERDŐS TERÜLET ELADÓ

TK013862 | 10309 m²
10 500 000 Ft

6000 Kecskemét Főút mellett - AKÁR VÁLLALKOZÁSRA!

HZ051912 | 5 szoba | 200 m²
24 000 000 Ft

6000 Kecskemét

PR085286/HZ/18555 | 1 szoba | 54 m²
33 000 000 Ft

6000 Kecskemét

PR050447/HZ/18556 | 1 szoba | 71 m²
42 600 000 Ft

6000 Kecskemét

PR027406/HZ/18557 | 1 szoba | 99 m²
52 700 000 Ft

6000 Kecskemét

PR046119/HZ/18558 | 1 szoba | 86 m²
48 000 000 Ft

6000 Kecskemét Kecskeméten Auchanhoz közel telek eladó

TK087499 | 615 m²
5 990 000 Ft

6044 Kecskemét Hétvégi ház eladó Úrihegyben

HZ098844 | 3 szoba | 43 m²
22 500 000 Ft

6000 Kecskemét Kecskemét Úrihegy

HZ040011 | 4 szoba | 180 m²
42 000 000 Ft

6000 Kecskemét

PR059327/HZ/18549 | 1 szoba | 156 m²
85 400 000 Ft
Dömöndi Martin
Ezüst fokozatú értékesítő
Kapcsolatfelvétel
Hívom
Kapcsolatfelvétel
Kérjen egy személyes megtekintést az ingatlanra a Duna House értékesítőjétől
Válassz egy időpontot