.
Eladó Ház 7700 Mohács
HZ075744
Eladó
Családi ház
Új
Prémium
54 990 000 Ft
7700 Mohács
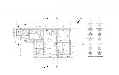
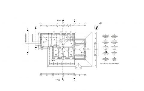
8 szoba
333 m²
880 m² telek
Törlesztőrészlet Ft/hó
THM %
0 megtekintés az elmúlt 7 napban
Leírás
Félkész családi ház eladó Mohács egyik legszebb utcájában alakítsa saját elképzelése szerint! 

Mohács egyik legszebb utcájában a Táltos utcában kínálunk megvételre egy félkész állapotú családi házat, amely kiváló lehetőséget nyújt azok számára, akik saját igényeik szerint szeretnék befejezni és kialakítani jövőbeli otthonukat.

Az ingatlan 880 m²-es telken helyezkedik el, a tervezett 333 m² alapterületű épület pedig tágas, jól alakítható tereket biztosít, így akár egy nagyobb család számára is ideális prémium otthon valósítható meg.

A kivitelezés folytatásában teljes körű segítséget tudunk biztosítani, hiszen minden szükséges szakember rendelkezésre áll az építkezés befejezéséhez.

Az építkezés főbb adatai
38 cm-es Leiertherm tégla falazat
Monolit födém mindkét szinten
Terrán Danubia barna cserépfedés

A telek teljes közműellátottsággal rendelkezik:
villany
gáz
víz
szennyvíz
kábel TV

Az ingatlan jelenlegi állapota nagy szabadságot ad a belső terek kialakításában, így minden részlet a leendő tulajdonos elképzelései szerint valósítható meg.

Ha egy kiváló elhelyezkedésű ingatlant keres, ahol saját elképzelései szerint alakíthatja ki álmai otthonát, akkor ez a lehetőség Önre vár.
Álmodja meg és valósítsa meg otthonát Mohács egyik legjobb utcájában, a Táltos utcában!
Mutass többet
Általános adatok
Építés éve:
2026
Belső szintek száma:
2
Épület külső állapota:
4 - Jó
Épület belső állapota:
4 - Jó
Fényviszonyok:
Napfényes
Nézet:
Utca
Fűtés:
Gáz kazán
Szerkezet:
Tégla
Energetikai besorolás:
Nincs megadva
Víz:
Ingatlanban
Gáz:
Ingatlanban
Villany:
Ingatlanban
Csatorna:
Ingatlanban
Lakáshitel kalkulátor – Spórolj velünk!
Kalkulálj most, és keresd pénzügyi szakértőinket, akik ingyenes tanácsadással segítenek megtalálni a számodra legjobb megoldást!

Hasonló ingatlanok

7700 Mohács

HZ061975 | 2 szoba | 72 m²
32 990 000 Ft

7714 Mohács

HZ015585 | 1 szoba | 69 m²
17 900 000 Ft

7700 Mohács

HZ082725 | 3 szoba | 128 m²
38 500 000 Ft

7714 Mohács

HZ045346 | 3 szoba | 90 m²
20 000 000 Ft

7700 Mohács Mohács szőlőhegy

HZ017361 | 4 szoba | 91 m²
39 000 000 Ft

7700 Mohács Eladó 2 generációs nyaraló a Duna közelében!

HZ088114 | 5 szoba | 136 m²
89 900 000 Ft

7700 Mohács

HZ076281 | 2 szoba | 42 m²
7 900 000 Ft

7700 Mohács

HZ032151 | 2 szoba | 76 m²
21 765 388 Ft

7700 Mohács Kismohács

HZ030399 | 4 szoba | 145 m²
70 000 000 Ft

7700 Mohács

HZ024461 | 6 szoba | 260 m²
89 000 000 Ft

7700 Mohács 7700 Mohács, Belváros

M308662 | 1 szoba | 240 m²
81 900 000 Ft

7700 Mohács

H504799 | 4 szoba | 115 m²
66 900 000 Ft

7700 Mohács Belvárosi ingatlan

HZ057264 | 5 szoba | 165 m²
53 000 000 Ft

7700 Mohács Családi ház Mohácson

HZ035944 | 7 szoba | 214 m²
87 200 000 Ft

7700 Mohács Mohácsi ház

HZ096572 | 4 szoba | 131 m²
99 000 000 Ft

7700 Mohács

H502638 | 3 szoba | 140 m²
34 990 000 Ft

7700 Mohács Mohácsi szőlőhegyen egyedi hangulatú ház

HZ092404 | 3 szoba | 97 m²
17 900 000 Ft

7700 Mohács

HZ027710 | 1 szoba | 53 m²
43 500 000 Ft

7700 Mohács

HZ081007 | 5 szoba | 115 m²
22 000 000 Ft

7700 Mohács

HZ010762 | 3 szoba | 210 m²
124 000 000 Ft
Somfai Tamás
Platina fokozatú értékesítő
Kapcsolatfelvétel
Hívom
Kapcsolatfelvétel
Kérjen egy személyes megtekintést az ingatlanra a Duna House értékesítőjétől
Válassz egy időpontot