.
Eladó Ház 4551 Nyíregyháza , Lengő lakópark közelében
HZ073689
Eladó
Családi ház
Új
154 022 000 Ft
4551 Nyíregyháza , Lengő lakópark közelében
5 szoba
143 m²
1207 m² telek
Törlesztőrészlet Ft/hó
THM %
2 megtekintés az elmúlt 7 napban
Leírás
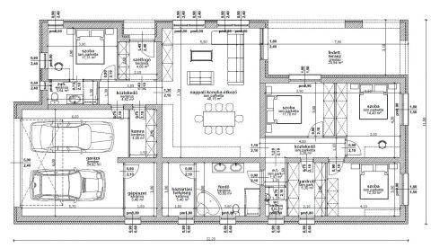
Nyíregyháza, Lengő lakópark közelében, 143,88 nm-es hasznos alapterületű lakótérrel rendelkező, de bruttó 203 nm-es, ÖNÁLLÓ CSALÁDI HÁZ, 1207 nm-es telken eladó!

Jellemzők:
- Porotherm 30-as X-therm rapid téglaépítés, nemes vakolattal,
- 10 cm-es válaszfalak, gipszkartonnal burkolva, pasztell színben
- Homlokzati szigetelés: EPS-80, 15 cm-es vastagságban
- Padlásfödém szigetelés: Rocwool kőzetgyapot 30 cm-es vastagságban
- Padlószigetelés: EPS-100 lépésálló, 10 cm-es vastagságban
- Nyílászárók: 2 légkamrás, 3 rétegű üveggel antracit szinben
- Biztonsági bejárati ajtó
- Tető fedés: sötét színű Leire cserép
- Fűtés: Hőszivattyú, padlófűtéssel, törölköző szárító radiátorok a fürdőszobákban
- 1 db 3,5 kWh Gree klíma
- Hörmann elektromos garázskapu, antracit színben
- Elrendezése: 40,15 nm-es Nappali + amerikai konyha + 4 szoba, 2 fürdőszoba Wc-vel, 1 külön Wc, gardrob, háztartási helyiség, gépészeti helyiség, kamra, közlekedő, 2 állásos 34,92 nm-es garázs
- 24,94 nm-es fedett terasz
- Térburkolat 60 nm-en lerakva
- Utcafronti kerítés: előre gyártott Leier színes zsalukő
- Elektromos autótöltő
- Riasztó-, kamera-, elektromos redőny kiállások előkészítése
- Beltéri ajtók 80.000,- Ft/db-ig választhatóak
- Szabadon választható hidegburkolatok 8.000,- Ft/nm, melegburkolatok 5.500,- Ft/nm
- Szabadon válaszható szaniterek 1.100.000,- Ft-ban
- Víz, Villany, csatorna az ingatlanban
- Várható átadás: 2026 év vége

További kérdés esetén keressen elérhetőségeimen!

Vevőink részére minden szolgáltatásunk díjmentes!
Irodánkban szintén díjmentes hitel-, OSP, CSOK PLUSZ, Babaváró, Biztosítások ügyintézése!

Mutass többet
Általános adatok
Építés éve:
2026
Belső szintek száma:
1
Épület külső állapota:
6 - Új. ép.
Épület belső állapota:
6 - Új. ép.
Fényviszonyok:
Napfényes
Nézet:
Kert/belső kert
Fűtés:
Hőszivattyú
Szerkezet:
Tégla
Energetikai besorolás:
Nincs megadva
Víz:
Ingatlanban
Gáz:
Nincs
Villany:
Ingatlanban
Csatorna:
Ingatlanban
Lakáshitel kalkulátor – Spórolj velünk!
Kalkulálj most, és keresd pénzügyi szakértőinket, akik ingyenes tanácsadással segítenek megtalálni a számodra legjobb megoldást!

Hasonló ingatlanok

Béla Attila
Platina fokozatú értékesítő
Kapcsolatfelvétel
Hívom
Kapcsolatfelvétel
Kérjen egy személyes megtekintést az ingatlanra a Duna House értékesítőjétől
Válassz egy időpontot