.
Eladó Ház 8096 Sukoró , Csendes környék, kitűnő megközelíthetőség!
HZ070231
Eladó
Családi ház
Prémium
269 000 000 Ft
8096 Sukoró , Csendes környék, kitűnő megközelíthetőség!
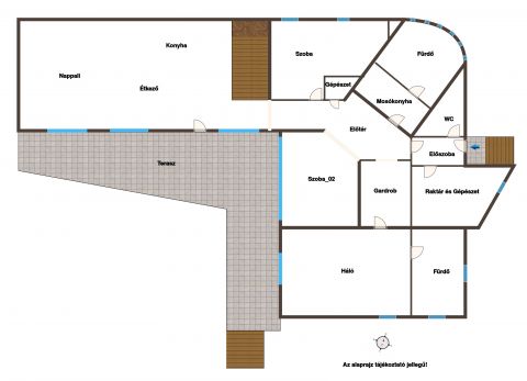
7 szoba
373 m²
2765 m² telek
Törlesztőrészlet Ft/hó
THM %
3 megtekintés az elmúlt 7 napban
Leírás
Eladó új építésű Luxusingatlan Sukorón! 

Kivételes lehetőség a Velencei-tó közelében, befektetők, cégek vagy nagycsaládosok számára!

Eladásra kínálunk Sukoró csendes, mégis remekül, jól megközelíthető részén egy 373 négyzetméteres, új építésű, szerkezetkész ingatlant.

Ingatlan Jellemzői:
Hatalmas tér: A ház összesen 7 szobával rendelkezik. Az alsó szinten egy közel 100 m²-es, 6 méteres belmagasságú tér várja a leendő tulajdonost, hatalmas üvegfelületekkel, lenyűgöző térérzettel igazi reprezentatív központ.
Az emeleten egy második, szintén tágas, világos közösségi tér található, mely akár nyitott irodaként, workshop szobaként vagy VIP lounge-ként is funkcionálhat.

Energiatakarékos megoldások: Az ingatlan modern hőszivattyús fűtésrendszerrel és mennyezet hűtő-fűtő rendszerrel van felszerelve, a napelemes rendszer előkészítése pedig már megtörtént.

Testre szabhatóság: A ház szerkezetkész állapotban van, így a leendő tulajdonos saját ízlése szerint fejezheti be a belső tereket és alakíthatja ki álmai otthonát vagy vállalkozásának központját.

Telek és Környezet: A ház egy hatalmas, 2765 négyzetméteres telken helyezkedik el, mely rengeteg lehetőséget kínál a kikapcsolódásra, kertészkedésre vagy akár további fejlesztésekre.

A Velencei-tó közelsége és a festői környezet garantálja a nyugalmat, miközben a közlekedés is rendkívül egyszerű. Az M7-es autópálya mindössze 5 perc alatt elérhető, így Budapest és Székesfehérvár is könnyen megközelíthető.

Az ingatlan kiváló választás olyan cégek számára, akik egyedülálló megjelenésű, jól felszerelt, prémium helyszínt keresnek, ahol méltó módon képviselhetik vállalkozásukat.

Ne maradjon le erről a páratlan lehetőségről! Ez az ingatlan nem csupán egy ház, hanem egy hosszú távú befektetés is egyben.
Mutass többet
Általános adatok
Építés éve:
2022
Belső szintek száma:
2
Épület külső állapota:
6 - Új. ép.
Épület belső állapota:
6 - Új. ép.
Fényviszonyok:
Napfényes
Nézet:
Kert/belső kert
Fűtés:
Hőszivattyú
Szerkezet:
Tégla
Energetikai besorolás:
Nincs megadva
Víz:
Ingatlanban
Gáz:
Utcában
Villany:
Ingatlanban
Csatorna:
Ingatlanban
Lakáshitel kalkulátor – Spórolj velünk!
Kalkulálj most, és keresd pénzügyi szakértőinket, akik ingyenes tanácsadással segítenek megtalálni a számodra legjobb megoldást!

Hasonló ingatlanok

8096 Sukoró panorámás

HZ052534 | 3 szoba | 81 m²
49 900 000 Ft

8096 Sukoró Velencei tóra panorámás 2 generációs ház, vendég apartmannal

HZ052286 | 6 szoba | 253 m²
155 000 000 Ft

8096 Sukoró

HZ079906 | 2 szoba | 83 m²
69 900 000 Ft

8096 Sukoró Tégla hozzáépítéssel bővített, téliesített faház Velence határán

HZ030232 | 5 szoba | 129 m²
49 000 000 Ft

8096 Sukoró Hangulatos, szép utcában, kültéri medencével, infraszaunával

HZ090534 | 6 szoba | 190 m²
100 000 000 Ft

8096 Sukoró Kényelmes ház, szép telken, napelemekkel és sok más extrával

HZ019860 | 6 szoba | 175 m²
160 000 000 Ft

8096 Sukoró Panorámás

HZ060634 | 5 szoba | 122 m²
100 032 500 Ft

8096 Sukoró a hegytetőn, csodás panorámával

HZ098218 | 5 szoba | 186 m²
195 000 000 Ft

8096 Sukoró Hangulatos parasztház a központ közelében

HZ048486 | 4 szoba | 100 m²
82 000 000 Ft

8096 Sukoró a központ közelében

HZ074215 | 3 szoba | 86 m²
55 000 000 Ft

8096 Sukoró 8096 Sukoró, központ

M317148 | 4 szoba | 98 m²
104 900 000 Ft

8096 Sukoró

HZ046017 | 5 szoba | 85 m²
89 900 000 Ft
Bánáti András
Örökös tag franchise partner
Kapcsolatfelvétel
Hívom
Kapcsolatfelvétel
Kérjen egy személyes megtekintést az ingatlanra a Duna House értékesítőjétől
Válassz egy időpontot