.
Eladó Ház 2252 Tóalmás , Tóalmás, Fő utca
HZ069585
Eladó
Családi ház
Új
34 900 000 Ft
2252 Tóalmás , Tóalmás, Fő utca
4 szoba
120 m²
1247 m² telek
Törlesztőrészlet Ft/hó
THM %
9 megtekintés az elmúlt 7 napban
Leírás
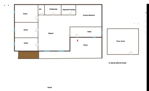
Budapesttől ca 55km távolságra kínálunk eladásra  netto 120 m2 alapterületű családi házat 1247m2-es telken Tóalmás központjában. Az ingatlan tökéletes választás lehet mindazok számára, akik a városi közelséget és a nyugodt lakókörnyezetet egyaránt értékelik.

Az ingatlan beton alapra épült, vegyes falazatú, cserép tetős.  Három hálószoba, nagy méretű nappali, kádas és zuhanyzós fürdőszoba, külön wc, gépház, nagy méretű beépített konyha étkezővel és egy előszoba található benne.  A fűtést vegyes tüzelésű kazán biztosítja, radiátoros hőleadással, fa és műanyag nyílászárók gondoskodnak a jó hőszigetelésről. Külső lejáratú pincéje ca. 20m2 alapterületű, 2m belmagassággal tágas, száraz, jól szigetelt.

Esztétikai frissítést követően kitűnő otthona lehet kis - vagy nagy családosoknak is.

Nyáron a kertben a gyerekek részére betonozott alapra lehet úszómedencét felállítani fák árnyékában.

Az ingatlan OSP hitellel is megvásárolható, Babaváró és CSOK+ is igényelhető.

Ingatlanvásárláshoz kapcsolódóan ügyvédi -, illetve teljeskörű pénzügyi tanácsadással, hitelezéssel állunk rendelkezésére minden kedves ügyfelünknek.



Megtekintéshez hívjon bizalommal!
Mutass többet
Általános adatok
Építés éve:
1970
Belső szintek száma:
1
Épület külső állapota:
4 - Jó
Épület belső állapota:
4 - Jó
Fényviszonyok:
Napfényes
Nézet:
Udvar
Fűtés:
Vegyes tüzelésű kazán
Szerkezet:
Vegyes falazat
Energetikai besorolás:
Nincs megadva
Víz:
Ingatlanban
Gáz:
Telken belül
Villany:
Ingatlanban
Csatorna:
Ingatlanban
Lakáshitel kalkulátor – Spórolj velünk!
Kalkulálj most, és keresd pénzügyi szakértőinket, akik ingyenes tanácsadással segítenek megtalálni a számodra legjobb megoldást!

Hasonló ingatlanok

2252 Tóalmás családi házas, csendes

HZ022422 | 5 szoba | 100 m²
51 900 000 Ft

2252 Tóalmás

HZ093903 | 2 szoba | 50 m²
28 000 000 Ft

2252 Tóalmás

HZ039779 | 1 szoba | 38 m²
21 000 000 Ft

2252 Tóalmás Gyógyfürdő közelében két ház egy telken!

HZ012728 | 3 szoba | 65 m²
19 900 000 Ft

2252 Tóalmás Gyógyfürdőhöz közel

HZ016438 | 2 szoba | 30 m²
9 900 000 Ft

2252 Tóalmás

HZ054553 | 3 szoba | 43 m²
34 000 000 Ft

2252 Tóalmás

H499149 | 3 szoba | 52 m²
19 900 000 Ft

2252 Tóalmás

H502081 | 2 szoba | 30 m²
15 500 000 Ft

2252 Tóalmás saroktelki ingatlan, üzlethelyiségnek is kíváló

HZ041898 | 3 szoba | 148 m²
52 000 000 Ft

2252 Tóalmás Zártkert

HZ030888 | 5 szoba | 77 m²
29 000 000 Ft

2252 Tóalmás

IP082417 | 1200 m²
49 900 000 Ft

2252 Tóalmás Tóalmáson eladó belterületi telek

TK070735 | 1548 m²
17 900 000 Ft

2252 Tóalmás Andrássy-kastély közelében

TK076797 | 4442 m²
27 900 000 Ft

2252 Tóalmás Csendes részen

TK045232 | 709 m²
7 000 000 Ft

2252 Tóalmás Tóalmáson a Strandtól nem messze

HZ085785 | 2 szoba | 23 m²
16 500 000 Ft

2252 Tóalmás Nincs utca

HZ035196 | 4 szoba | 67 m²
25 500 000 Ft

2252 Tóalmás

HZ040711 | 3 szoba | 31 m²
25 500 000 Ft

2252 Tóalmás Páskomszőlő

HZ031793 | 3 szoba | 26 m²
6 500 000 Ft

2252 Tóalmás Csendes központi helyen

HZ010640 | 3 szoba | 61 m²
49 990 000 Ft

2252 Tóalmás Tóalmáson tágas családi ház eladó

HZ065248 | 3 szoba | 210 m²
90 000 000 Ft
Czirják Mária Erzsébet
Arany fokozatú csoportvezető
Kapcsolatfelvétel
Hívom
Kapcsolatfelvétel
Kérjen egy személyes megtekintést az ingatlanra a Duna House értékesítőjétől
Válassz egy időpontot