.
Eladó Ház 4551 Nyíregyháza , Orosi út kedvelt részén
HZ056449
Eladó
Ikerház
Új
92 900 000 Ft
4551 Nyíregyháza , Orosi út kedvelt részén
4 szoba
97 m²
450 m² telek
Törlesztőrészlet Ft/hó
THM %
1 megtekintés az elmúlt 7 napban
Leírás
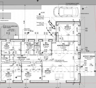
Nyíregyháza Orosi út közelében, Lakóparki környezetben, igényes, szép családi házak szomszédságában, komoly referenciával rendelkező kivitelezőtől eladó egy 450 m² -es telekre épülő, 97,7 m² -es, nappali - amerikai konyha + 3 szobás új építésű IKERHÁZ.

Az ingatlan főbb jellemzői:

- Lakótér 97,7 m² 
- nappali-konyha-étkező, 3 hálószoba, fürdőszoba, WC, mosókonyha, közlekedő, előtér, garázs
- Külső főfalak: Porotherm 30-as téglafal, a külső falak 15 cm-es grafitos hőszigeteléssel
- Belső főfalak: Porotherm 30-as téglafal
- Födém: a földszint feletti födém 15/15 cm-es fagerendákból épül. A födém 30 cm üveggyapot hőszigetelést kap.
- Nyílászárók: kívül fehér színű műanyag szerkezetű ajtók és ablakok kerülnek beépítésre.
- Burkolatok: a helyiségek padlóburkolata kerámia és laminált parketta.
- Fűtése: hőszivattyús, padlófűtéssel
- A lakáshoz közvetlenül kapcsolódó nyitott teraszon beton térkő burkolat lett tervezve
- Korszerű hőszivattyús fűtésrendszer, minden helyiségben padlófűtéssel szerelve
- Hőszigetelések: a földszinti padlóban 15 cm lépésálló Nikecell, illetve a garázsban 12 cm grafitos hőszigetelés, a földszint feletti födémben 30 cm hőszigetelés, a külső falakon 15 cm vtg. hőszigetelés lett tervezve.
- A külső térrel érintkező áthidalások és koszorúk 5+15 cm-es hőszigetelést kapnak.

Amennyiben hirdetésem felkeltette az érdeklődését, kérem keressen bizalommal elérhetőségeim egyikén!

Vevőink részére minden szolgáltatásunk díjmentes!

Irodánkban szintén díjmentes hitel-, CSOK PLUSZ, Babaváró, Biztosítások ügyintézése!
Mutass többet
Általános adatok
Építés éve:
2026
Belső szintek száma:
1
Épület külső állapota:
6 - Új. ép.
Épület belső állapota:
6 - Új. ép.
Fényviszonyok:
Napfényes
Nézet:
Kert/belső kert
Fűtés:
Hőszivattyú,Padlófűtés
Szerkezet:
Tégla
Energetikai besorolás:
Nincs megadva
Víz:
Ingatlanban
Gáz:
Nincs
Villany:
Ingatlanban
Csatorna:
Ingatlanban
Lakáshitel kalkulátor – Spórolj velünk!
Kalkulálj most, és keresd pénzügyi szakértőinket, akik ingyenes tanácsadással segítenek megtalálni a számodra legjobb megoldást!

Hasonló ingatlanok

4405 Nyíregyháza

HZ422546 | 4 szoba | 125 m²
67 000 000 Ft

HZ511106 | 5 szoba | 175 m²
68 499 000 Ft

4400 Nyíregyháza Nyíregyháza

HZ040526 | 3 szoba | 63 m²
28 490 000 Ft

4431 Nyíregyháza Sóstóhegy

HZ069038 | 4 szoba | 83 m²
58 900 000 Ft

4400 Nyíregyháza Sóstói erdő közelében.

HZ069542 | 4 szoba | 140 m²
129 000 000 Ft

4400 Nyíregyháza Rozsrétszőlő kedvelt utcájában

HZ081332 | 4 szoba | 144 m²
103 000 000 Ft

4481 Nyíregyháza

HZ025615 | 4 szoba | 100 m²
80 000 000 Ft

4481 Nyíregyháza Sóstóhegy-Tüskevár

HZ099819 | 5 szoba | 144 m²
92 000 000 Ft

4481 Nyíregyháza Sóstóhegy-Tüskevár

HZ077943 | 5 szoba | 144 m²
92 000 000 Ft

4481 Nyíregyháza Sóstóhegy kedvelt utcája

HZ045042 | 5 szoba | 165 m²
77 000 000 Ft

4400 Nyíregyháza Földhivatalhoz közel

HZ462863 | 8 szoba | 212 m²
59 000 000 Ft

4400 Nyíregyháza

HZ525142 | 4 szoba | 210 m²
73 500 000 Ft

4432 Nyíregyháza

HZ470113 | 7 szoba | 608 m²
120 000 000 Ft

4400 Nyíregyháza

HZ476616 | 8 szoba | 617 m²
149 900 000 Ft

4432 Nyíregyháza Nyírszőlős

HZ079045 | 4 szoba | 270 m²
139 000 000 Ft

4400 Nyíregyháza Sóstói erdő közelében!

HZ072899 | 6 szoba | 240 m²
169 000 000 Ft

4405 Nyíregyháza Malom kert

HZ041589 | 5 szoba | 190 m²
119 900 000 Ft

4400 Nyíregyháza

HZ080146 | 4 szoba | 232 m²
115 000 000 Ft

4405 Nyíregyháza Oros

HZ081423 | 2 szoba | 51 m²
23 000 000 Ft

4400 Nyíregyháza MÖMAX mögötti lakó pihenő övezetben

HZ030342 | 4 szoba | 122 m²
83 000 000 Ft
Havacs-Kormányos Tímea
Ezüst fokozatú csoportvezető
Kapcsolatfelvétel
Hívom
Kapcsolatfelvétel
Kérjen egy személyes megtekintést az ingatlanra a Duna House értékesítőjétől
Válassz egy időpontot