.
Eladó Ház 2721 Pilis
HZ052945
Eladó
Családi ház
Hamarosan jön
Új
75 000 000 Ft
2721 Pilis
5 szoba
227 m²
1101 m² telek
Törlesztőrészlet Ft/hó
THM %
4 megtekintés az elmúlt 7 napban
Leírás
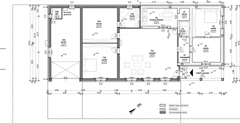
Szerkezetkész, új építésű családi ház eladó Pilisen 1101 m² telekkel

Pilis nyugodt, családi házas övezetében eladó egy szerkezetkész állapotú, új építésű családi ház, amely 1101 m²-es telken helyezkedik el.
Az ingatlan jelenlegi állapotában kerül értékesítésre: falazatok és tetőszerkezet elkészült, a további munkálatok már az új tulajdonos elképzelései szerint folytathatók.
Az épület tervezett hasznos alapterülete: 227 m².

Szerkezeti és műszaki jellemzők
Az épület földszintes kialakítású, korszerű műszaki megoldásokkal tervezve.

Tartószerkezet
* 30 cm-es teherhordó falazat
* 10 cm-es belső válaszfalak
* monolit vasbeton koszorú
* fa gerendás födém és hagyományos fa fedélszék

A tervek szerint:
* új kondenzációs gázkazán radiátoros hőleadással (gázcirkó rendszer)
* kiépített közműcsatlakozások (víz, gáz, szennyvíz)

A 1101 m²-es telek** kiváló lehetőséget biztosít:
* nagy kert kialakítására
* medence, kerti épület, garázs építésére
* több generációs használatra

Az ingatlan mérete és szerkezeti kialakítása miatt akár reprezentatív, nagy alapterületű családi otthon is kialakítható.

Pilis egy folyamatosan fejlődő, kertvárosias jellegű település Pest vármegyében.
Budapest autóval kb. 3540 perc alatt elérhető, a település vasúti kapcsolattal is rendelkezik (Nyugati pályaudvar irányába).

A közelben megtalálható:
* óvoda, iskola
* bevásárlási lehetőségek
* egészségügyi ellátás
* tömegközlekedési kapcsolatok

A környék csendes, rendezett, családbarát.

Ez az ingatlan ideális választás azok számára, akik:
* nagy alapterületű családi házat szeretnének
* saját elképzelésük szerint fejeznék be az építkezést
* értéket látnak egy masszív, dokumentált szerkezeti alapokkal rendelkező épületben
* nagy telket keresnek nyugodt környezetben

Az ingatlan jelenlegi, szerkezetkész állapotában kerül értékesítésre.
Amennyiben hirdetésem felkeltette érdeklődését, keressen bizalommal, szívesen küldök további dokumentációt, alaprajzot és egyeztetek megtekintési időpontot.
Mutass többet
Általános adatok
Építés éve:
2023
Belső szintek száma:
1
Épület külső állapota:
6 - Új. ép.
Épület belső állapota:
6 - Új. ép.
Fényviszonyok:
Napfényes
Nézet:
Kert/belső kert
Fűtés:
Gáz cirkó
Szerkezet:
Tégla
Energetikai besorolás:
Nincs megadva
Víz:
Ingatlanban
Gáz:
Ingatlanban
Villany:
Ingatlanban
Csatorna:
Ingatlanban
Hamarosan jön
A ”Hamarosan jön” státuszú ingatlanok esetében jelenleg még folyamatban vannak a jogi és egyéb ellenőrzési folyamatok, így azok még nem teljesültek maradéktalanul. A Duna House Franchise Kft. és annak hálózatában tevékenykedők nem vállalnak felelősséget azért, hogy az adott hirdetés mikor kerül ”aktív” státuszba, vagy aktív státuszba kerül-e végül. A részletekről érdeklődjenek az adott hirdetésnél található DH partner értékesítői elérhetőségeken.
Mutass többet
Lakáshitel kalkulátor – Spórolj velünk!
Kalkulálj most, és keresd pénzügyi szakértőinket, akik ingyenes tanácsadással segítenek megtalálni a számodra legjobb megoldást!

Hasonló ingatlanok

2721 Pilis Központhoz közeli családi ház

HZ063388 | 6 szoba | 81 m²
48 000 000 Ft

2721 Pilis Vasútállomáshoz közel

HZ099750 | 3 szoba | 103 m²
66 625 000 Ft

2721 Pilis Pilisen vasútállomás közelében 3 szobás családi ház eladó

HZ051465 | 4 szoba | 90 m²
41 000 000 Ft

2721 Pilis

HZ018870 | 1 szoba | 40 m²
8 500 000 Ft

2721 Pilis Tágas és világos családi ház, fedett terasszal és egy különálló kisházzal

HZ069784 | 3 szoba | 96 m²
38 000 000 Ft

2721 Pilis

HZ078876 | 4 szoba | 125 m²
24 000 000 Ft

2721 Pilis Családi ház nagy telekkel

HZ069950 | 1 szoba | 50 m²
29 900 000 Ft

2721 Pilis Pilis Hernád köz

HZ036593 | 4 szoba | 110 m²
79 800 000 Ft

2721 Pilis pilis

HZ020283 | 4 szoba | 77 m²
35 390 000 Ft

2721 Pilis

HZ098458 | 3 szoba | 79 m²
29 900 000 Ft

2721 Pilis Zártkert

HZ026676 | 2 szoba | 50 m²
18 350 000 Ft

2721 Pilis

HZ021896 | 7 szoba | 154 m²
68 000 000 Ft

2721 Pilis Csendes utcában

HZ035604 | 4 szoba | 88 m²
57 900 000 Ft

2721 Pilis

ME027843 | 2 szoba | 50 m²
16 000 000 Ft

2721 Pilis KÉTGENERÁCIÓS CSALÁDI HÁZ!

HZ080573 | 3 szoba | 148 m²
78 000 000 Ft

2721 Pilis Lovasbirtok, lakóházzal, 6131 nm-es területtel!

HZ021650 | 4 szoba | 170 m²
81 900 000 Ft

2721 Pilis Pilis Penny

HZ026315 | 4 szoba | 109 m²
54 900 000 Ft

2721 Pilis

HZ046370 | 2 szoba | 57 m²
22 900 000 Ft

2721 Pilis

HZ092463 | 5 szoba | 112 m²
76 000 000 Ft

2721 Pilis Gazdálkodásra alkalmas ipari terület 3 különálló házzal.

HZ096394 | 11 szoba | 240 m²
149 900 000 Ft
Ignát Arnold
Értékesítő
Kapcsolatfelvétel
Hívom
Kapcsolatfelvétel
Kérjen egy személyes megtekintést az ingatlanra a Duna House értékesítőjétől
Válassz egy időpontot