.
Eladó Ház 6034 Helvécia , Újépítésű 92nm-es nappali+3szobás ház, 340nm telken
HZ050455
Eladó
Ikerház
Hamarosan jön
Új
78 000 000 Ft
6034 Helvécia , Újépítésű 92nm-es nappali+3szobás ház, 340nm telken
4 szoba
110 m²
340 m² telek
Törlesztőrészlet Ft/hó
THM %
6 megtekintés az elmúlt 7 napban
Leírás
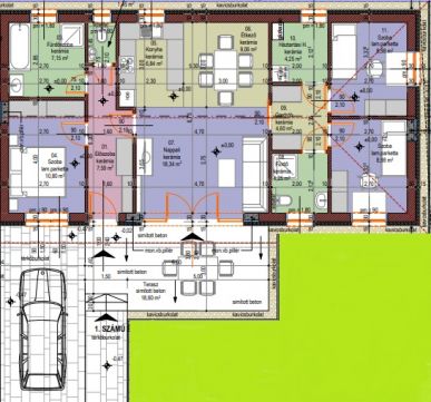
Eladó Kecskemét agglomerációban Helvécián nettó 92,3 nm lakóterű, amerikai konyhás nappali + 3 szobás, 18,6nm terasz, autóbeállóval rendelkező, PRÉMIUM műszaki tartalommal megépülő ÚJ ikerház projektet 340 nm-es telken.
Műszaki tartalom:
- közművek (villany, víz, csatorna, gáz)
- kedvelt családi házas lakóövezet
- beton sávalap
- Wienerberger Porotherm 30 N+F síkra csiszolt tégla+ 15 cm EPS 80 hőszigetelés
- tégla válaszfalazat
- szeglemezes tető, födém gerendák között 30 cm vastag, fújt cellulóz, tűzgátló gipszkarton
- a műanyag nyílászárók 3 rétegű üvegezésük, Argon gáz töltettel
- 24 KW-os kondenzációs BOSCH kazán vagy vele azonos tudású kazán, padlófűtés
- a fűtés manuálisan hordozható termosztáttal szabályozható
- 2 db fűthető cseptálcás, hőszivattyús Midea 3,5 KW-os WIFI-s klíma
- Inim SmartLiving riasztórendszer
- hidegburkolatok bruttó 6.000Ft/nm
- melegburkolatok  bruttó 3.500 Ft/nm
- beltéri ajtók bruttó 80.000 Ft/db választható kilinccsel együtt
- szaniterek és a csaptelepek bruttó 550.000 Ft értékig
Az ár kulcsrakész átadással értendő, konyhabútor és lámpatestek nélkül, a TELEK ÁRAT TARTALMAZZA!


Mutass többet
Általános adatok
Építés éve:
2026
Belső szintek száma:
1
Épület külső állapota:
6 - Új. ép.
Épület belső állapota:
6 - Új. ép.
Fényviszonyok:
Napfényes
Nézet:
Kert/belső kert
Fűtés:
Gáz cirkó,Klíma
Szerkezet:
Tégla
Energetikai besorolás:
Nincs megadva
Víz:
Ingatlanban
Gáz:
Ingatlanban
Villany:
Ingatlanban
Csatorna:
Ingatlanban
Hamarosan jön
A ”Hamarosan jön” státuszú ingatlanok esetében jelenleg még folyamatban vannak a jogi és egyéb ellenőrzési folyamatok, így azok még nem teljesültek maradéktalanul. A Duna House Franchise Kft. és annak hálózatában tevékenykedők nem vállalnak felelősséget azért, hogy az adott hirdetés mikor kerül ”aktív” státuszba, vagy aktív státuszba kerül-e végül. A részletekről érdeklődjenek az adott hirdetésnél található DH partner értékesítői elérhetőségeken.
Mutass többet
Lakáshitel kalkulátor – Spórolj velünk!
Kalkulálj most, és keresd pénzügyi szakértőinket, akik ingyenes tanácsadással segítenek megtalálni a számodra legjobb megoldást!

Hasonló ingatlanok

6034 Helvécia Új építésű 90 nm-es családi ház önálló telken

HZ082728 | 4 szoba | 90 m²
72 000 000 Ft

6034 Helvécia MESÉS KÖRNYEZETBEN ÉPÍTKEZNE?

HZ056825 | 1 szoba | 150 m²
24 900 000 Ft

6034 Helvécia KERTKAPCSOLATOS NAPPALI +1 SZOBÁS LAKÁS GARÁZZSAL AZ ÁRBAN!

LK061980 | 2 szoba | 65 m²
54 000 000 Ft

6034 Helvécia KERTKAPCSOLATOS NAPPALI+1 SZOBÁS ÚJ LAKÁS GARÁZZSAL AZ ÁRBAN!

LK068261 | 2 szoba | 65 m²
54 000 000 Ft

6034 Helvécia Helvécián 80 m2-es tanya, melléképülettek cirka 3.000 m2 -es területen eladó

HZ044017 | 3 szoba | 80 m²
16 900 000 Ft

6034 Helvécia FELÚJÍTANDÓ TANYA HELVÉCIA KÖZELÉBEN!

HZ029789 | 2 szoba | 60 m²
16 900 000 Ft

6034 Helvécia

HZ092035 | 2 szoba | 80 m²
34 800 000 Ft

6034 Helvécia

HZ050318 | 5 szoba | 160 m²
64 750 000 Ft

6034 Helvécia Eladó Kecskemét közvetlen közelében 2 rendbeli ház

HZ024237 | 3 szoba | 170 m²
99 950 000 Ft

6034 Helvécia Kiváló minőségben megépített nappali + 3 szobás családi ház

HZ094626 | 4 szoba | 100 m²
89 900 000 Ft

6034 Helvécia 15174 m2-es 5 %-ban BEÉPÍTHETŐ 3 RÉSZRE OSZTHATÓ TELEK

TK036649 | 15174 m²
13 400 000 Ft

6034 Helvécia Működő Gazdabolt, Söröző+ Családi ház egy helyen!

HZ063476 | 3 szoba | 584 m²
139 900 000 Ft

6034 Helvécia

HZ020388 | 2 szoba | 35 m²
28 900 000 Ft

6034 Helvécia Új építésű nappali + 3 szobás családi ház önálló telken

HZ071897 | 4 szoba | 90 m²
72 000 000 Ft

6034 Helvécia Rendezett kert, barátságos házikó

HZ056228 | 2 szoba | 40 m²
15 900 000 Ft

6034 Helvécia 175 nm-es 4 szoba+nappalis családi ház 1440 nm telken

HZ071094 | 5 szoba | 175 m²
89 900 000 Ft

6034 Helvécia Gyorsan költözhető családi ház Helvécián

HZ064339 | 4 szoba | 135 m²
89 900 000 Ft

6034 Helvécia Helvécián nappali+5 szobás családi ház eladó

HZ074865 | 6 szoba | 140 m²
89 900 000 Ft

6034 Helvécia Csodálatos Családi Ház Eladó

HZ049947 | 4 szoba | 148 m²
120 000 000 Ft

6034 Helvécia

HZ054845 | 3 szoba | 102 m²
45 000 000 Ft
Baski Attila
Örökös tag franchise partner
Kapcsolatfelvétel
Hívom
Kapcsolatfelvétel
Kérjen egy személyes megtekintést az ingatlanra a Duna House értékesítőjétől
Válassz egy időpontot