.
Eladó Ház 4400 Nyíregyháza , Kertváros
HZ044179
Eladó
Ikerház
Új
Áresés
86 990 000 Ft
4400 Nyíregyháza , Kertváros
4 szoba
113 m²
650 m² telek
Törlesztőrészlet Ft/hó
THM %
2 megtekintés az elmúlt 7 napban
Leírás
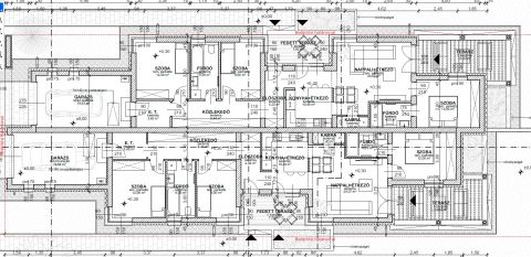
Nyíregyháza-Kertvárosban, lakóparki környezetben, 133 nm-es, nappali +3 szobás, szigetelt, műanyag nyílászárós, új építésű ikerház, 650 nm-es telken eladó.

- a lakótér 93, nm + 19,63 garázs + 13,83 és 7,02 nm-es fedett terasz
- nappali-konyha-étkező, 3 hálószoba, 2 fürdőszoba-wc, kamra, előszoba, közlekedő tagolja
- a telek 650 nm
- Porotherm N+F 30-as téglából épül, 15 cm-es homlokzati szigeteléssel
- a külső és belső burkolatok a vevő igényeinek megfelelő minőségben, illetve színvilágban kerülhetnek beépítésre, amennyiben a kivitelezés alatt lefoglalja az ingatlant
- gázcirkó fűtésrendszer, minden helyiségben padlófűtéssel szerelve
- a nappaliban hűtő-fűtő klíma
- szekcionált garázskapu, redőny
- a vételár 100 %-os, kulcsrakész állapotot jelent
- kellemes környezetben, csupa új építésű házak szomszédságában
- az átadás szerződéskötést követően 10 hónap
Mutass többet
Általános adatok
Építés éve:
2027
Belső szintek száma:
1
Épület külső állapota:
6 - Új. ép.
Épület belső állapota:
6 - Új. ép.
Fényviszonyok:
Napfényes
Nézet:
Kert/belső kert
Fűtés:
Gáz cirkó
Szerkezet:
Tégla
Energetikai besorolás:
Nincs megadva
Víz:
Ingatlanban
Gáz:
Ingatlanban
Villany:
Ingatlanban
Csatorna:
Ingatlanban
Lakáshitel kalkulátor – Spórolj velünk!
Kalkulálj most, és keresd pénzügyi szakértőinket, akik ingyenes tanácsadással segítenek megtalálni a számodra legjobb megoldást!

Hasonló ingatlanok

Vass István
Örökös tag értékesítő
Kapcsolatfelvétel
Hívom
Kapcsolatfelvétel
Kérjen egy személyes megtekintést az ingatlanra a Duna House értékesítőjétől
Válassz egy időpontot