.
Eladó Ház 1224 Budapest 22. kerület , Óhegy
HZ043980
Eladó
Ikerház
Prémium
199 900 000 Ft
1224 Budapest 22. kerület , Óhegy
4 szoba
175 m²
553 m² telek
Törlesztőrészlet Ft/hó
THM %
15 megtekintés az elmúlt 7 napban
Leírás
PRÉMIUM MINIMAL IKERHÁZ ELADÓ A 22.KERÜLETBEN! PANORÁMÁS TERASSZAL !

Budapest 22.kerületének Óhegy keresett részen prémium minőségű ikerház épül. Az épületek dupla fallal és légréssel elválasztva, így semmilyen hang nem zavarhatja a nyugalmát. Szolgalmi úttal 

Az ingatlant a 2025-ös év kedvezményes feltételeivel tudja megvásárolni, az építkezés céges.
CSOK Plusz igényelhető és Illeték kedvezmény egyaránt.

Foglalja le már most leendő otthonát 10%-al. Az építkezés hamarosan kezdetét veszi. A környéken rengeteg referencia ház, amit közösen megtekinthetünk, ami segíti a döntést.

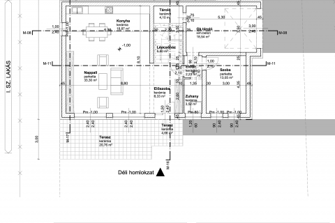
Az ingatlan nettó hasznos területe 130,58 m2 + 18,54 m2 garázs, 3 db terasz  553 m2 kertkapcsolattal.  A helyiségek napfényesek, köszönhetően a jó tájolásnak és a jó méretű egyedi nyílászáróknak.
Elosztását tekintve:
Földszint: 
- Előszoba
- 1 jó méretű hálószoba
-  Tágas , 52 m2-es amerikai konyhás nappali
-  Fürdőszoba
- Tároló
- 1 állásos garázs /kérhető szobának is /
- 20,76 m2-es terasz
- 553 m2-es saját kert

Emelet:
- 2 szoba. mindegyik szoba hangulatos terasszal / 49,81 m2 és egy 16,75 m2-es/, ahonnan hangulatos panoráma tárul elénk 
- Fürdőszoba 

EXTRÁK:

- Mennyezet hűtés-fűtés
- Hővisszanyerős szellőztető berendezés
- Elektromos alumínium redőnyök

Műszaki adatok:

- 30-as Porotherm tégla, 10 cm Ytong válaszfalak

- 15 cm grafitos homlokzati szigetelés

- Panasonic hőszivattyú 300 literes használati meleg víz tartállyal, minden lakásnak külön hőszivattyú berendezés

- H- tarifás mérőszekrény kialakítás

- Minden helyiségben padlófűtés

- Betoncserép

- 3 rétegű 6 légkamrás nyílászárók, kívül antracit kivitelben

- 2 db autónak  kocsibeálló

- Riasztó előkészítése

- Szaniterek

- Hideg/meleg burkolatok ( 10 000 Ft/m2 meleg: 10 000 Ft/ m2 )

- Beltéri ajtók ( 100 000 Ft/ db )

- Bejárati ajtó


Ezek mind kiemelkedő minőségben és az átlagnál magasabb áron választhatóak. Árlista tőlem kérhető.Az építkezés megtekintése után minden a házzal kapcsolatos dokumentáció rendelkezésre áll.

Vállalkozó garantáltan megbízható, rugalmas, rengeteg referencia munkával, amit közösen megtudunk tekinteni a nagy döntés előtt.

Környék rendezett, minden perceken belül elérhető. Iskola, óvoda, bevásárlási lehetőségek, MO.

Várható átadás: 2026 Tavasz 

További információkért hívjon bizalommal.
Mutass többet
Általános adatok
Építés éve:
2025
Belső szintek száma:
2
Épület külső állapota:
6 - Új. ép.
Épület belső állapota:
6 - Új. ép.
Fényviszonyok:
Nézet:
Kert/belső kert
Fűtés:
Hőszivattyú
Szerkezet:
Tégla
Energetikai besorolás:
Nincs megadva
Víz:
Ingatlanban
Gáz:
Nincs
Villany:
Ingatlanban
Csatorna:
Ingatlanban
Lakáshitel kalkulátor – Spórolj velünk!
Kalkulálj most, és keresd pénzügyi szakértőinket, akik ingyenes tanácsadással segítenek megtalálni a számodra legjobb megoldást!

Hasonló ingatlanok

1221 Budapest 22. kerület

HZ028359 | 6 szoba | 216 m²
210 000 000 Ft

1221 Budapest 22. kerület Budafok legnívósabb részén

HZ049206 | 4 szoba | 191 m²
266 750 000 Ft

1225 Budapest 22. kerület

HZ041747 | 3 szoba | 75 m²
60 000 000 Ft

1224 Budapest 22. kerület

HZ028835 | 2 szoba | 35 m²
45 000 000 Ft

1223 Budapest 22. kerület BUDATÉTÉNYBEN panorámás 4 szobás, ÚJÉPÍTÉSŰ ikerfél DUPLA GARÁZZSAL, extra műszaki tartalommal

HZ089368 | 4 szoba | 184 m²
232 700 000 Ft

1223 Budapest 22. kerület BUDATÉTÉNYBEN panorámás 4 szobás, ÚJÉPÍTÉSŰ ikerfél DUPLA GARÁZZSAL, extra műszaki tartalommal

HZ062577 | 4 szoba | 173 m²
223 600 000 Ft

1222 Budapest 22. kerület AZONNAL KÖLTÖZHETŐ, CSENDES UTCA, MEDENCÉS HÁZ

HZ067069 | 6 szoba | 260 m²
204 900 000 Ft

1224 Budapest 22. kerület

HZ067556 | 4 szoba | 104 m²
119 000 000 Ft

1222 Budapest 22. kerület

IP018352 | 106 m²
199 999 000 Ft

1222 Budapest 22. kerület Nagytétény

HZ073999 | 6 szoba | 306 m²
229 000 000 Ft

1224 Budapest 22. kerület

TK067946 | 5365 m²
74 000 000 Ft

1221 Budapest 22. kerület Ady Endre útról nyíló zsákutca

HZ085296 | 9 szoba | 355 m²
295 000 000 Ft

1221 Budapest 22. kerület

H494370 | 8 szoba | 380 m²
249 900 000 Ft

1221 Budapest 22. kerület

HZ093472 | 10 szoba | 370 m²
220 000 000 Ft

1221 Budapest 22. kerület

HZ073781 | 1 szoba | 44 m²
46 300 000 Ft

1222 Budapest 22. kerület

HZ041438 | 4 szoba | 168 m²
135 000 000 Ft

1221 Budapest 22. kerület Kálváriahegy utcában csendes 2 generációs ház

HZ092699 | 8 szoba | 327 m²
230 000 000 Ft

1222 Budapest 22. kerület Budafok déli részén ÚJ ÉPÍTÉSŰ, nappali+3 háló, dupla garázs

HZ021522 | 4 szoba | 137 m²
172 900 000 Ft

1222 Budapest 22. kerület Háros utca közelében 5 szobás újépítésű ingatlan Budafokon

HZ028118 | 5 szoba | 150 m²
184 900 000 Ft

1221 Budapest 22. kerület

HZ040254 | 5 szoba | 310 m²
380 000 000 Ft
Bucalics Roxána
Örökös tag csoportvezető
Kapcsolatfelvétel
Hívom
Kapcsolatfelvétel
Kérjen egy személyes megtekintést az ingatlanra a Duna House értékesítőjétől
Válassz egy időpontot