.
HZ043718
Eladó
Családi ház
195 000 000 Ft
8154 Polgárdi , COOP ABC közelében
5 szoba
335 m²
9219 m² telek
Törlesztőrészlet Ft/hó
THM %
9 megtekintés az elmúlt 7 napban
Leírás
Prémium minőségű családi ház eladó Polgárdiban

Kérem, hogy tekintse meg az ingatlanról készült video sétát is!

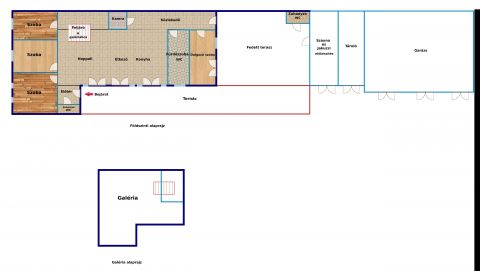
A ház 2018-ban épült téglából, 284 négyzetméter lakótérrel rendelkezik.
Három szoba a földszinten, a negyedik a galériában található.
Az 51 négyzetméteres nappali és a 32 négyzetméter nagyságú amerikai stílusú konyha-étkező minden igénynek megfelel.
A dolgozószobának használt helyiségből akár még egy szoba is kialakítható.
A gardrob és a három fürdőszoba-WC teszi teljes mértékben komfortossá a mindennapi életet az itt élők számára.
A belső helyiség légkörét meghatározza az erőt, stabilitást és nyugodtságot sugárzó, több mint kétszáz éves vörös fenyő gerendák látványa.
A vastag falak, a szigetelés és a műanyag bukó-nyíló ablakok teljes mértékben kizárják a külvilág zaját.
.A körbe ölelő szigetelés miatt nagyon alacsony a rezsi költség. Szigetelt az aljzatbeton, a homlokzat és a tető is.
A gépészeti berendezések külön helyiségben kaptak helyet, ezáltal a működésük nem zavarja a pihenést.
A ház hűtését / fűtését a padlóban elhelyezett hőcserélő csövekkel oldják meg, így a radiátorok nem rontják a belső látványt!.
A levegő hőmérsékletét gázcirkóval, klímával és a központi fűtésrendszerre ráköthető kandallóval is lehet szabályozni.

A fedett terasz ideális hely a családi rendezvények számára, a mellette elkészült harmadik fürdőszoba-WC helyiség praktikus lehetőség a teraszon tartózkodóknak.

Az ingatlanon nem okoz problémát négy jármű garázsban történő tárolása sem. A terasz melletti helyiségben a jakuzzi és a szauna beépítéséhez szükséges előkészítések megtörténtek.

Az ingatlanban 3 x 32 A villanyáram van. Az alacsony energetikai költségekhez a LED világítás és a klíma berendezés éjszakai árammal történő működtetése nagyban hozzá járul.

Az elektromos kapu nemcsak kényelmes, de vagyonvédelmi szempontból hasznos is.

Az ingatlan árában 1219 négyzetméter telek került figyelembevételre, melynek a folyamatos öntözésére a két gyűrűs kút kínál megoldást.

Amennyiben a hirdetésem felkeltette az érdeklődését és szeretne egy kényelmes, minden igénynek megfelelő ingatlant, kérem, hogy vegye fel velem a kapcsolatot!
Köszönöm, hogy elolvasta a hirdetésemet.

Mutass többet
Általános adatok
Építés éve:
2018
Belső szintek száma:
2
Épület külső állapota:
5 - Nagyon jó
Épület belső állapota:
5 - Nagyon jó
Fényviszonyok:
Napfényes
Nézet:
Utca
Fűtés:
Gáz cirkó,Elektromos
Szerkezet:
Tégla
Energetikai besorolás:
Nincs megadva
Víz:
Ingatlanban
Gáz:
Ingatlanban
Villany:
Ingatlanban
Csatorna:
Ingatlanban
Lakáshitel kalkulátor – Spórolj velünk!
Kalkulálj most, és keresd pénzügyi szakértőinket, akik ingyenes tanácsadással segítenek megtalálni a számodra legjobb megoldást!

Hasonló ingatlanok

8154 Polgárdi Polgárdi COOP ABC-től nem mesze

HZ028403 | 5 szoba | 307 m²
195 000 000 Ft

8154 Polgárdi BUSZMEGÁLLÓTÓL 300M-RE 99 M2-ES 2 FÜRDŐSZOBÁS HÁZ

HZ078104 | 3 szoba | 99 m²
38 500 000 Ft

8154 Polgárdi Polgárdi központjában 142 m2- es , 5 szobás felújítandó családi ház telekáron

HZ076221 | 5 szoba | 142 m²
20 900 000 Ft

8154 Polgárdi Buszmegálló közelében

HZ093601 | 7 szoba | 120 m²
59 999 990 Ft

8154 Polgárdi

H495570 | 4 szoba | 90 m²
49 500 000 Ft

8154 Polgárdi Polgárdi ipari területén telephely eladó

IP043535 | 600 m²
92 000 000 Ft

8154 Polgárdi Felújítandó, 125 nm-es, 2 szintes lakás + garázs

LK086547 | 4 szoba | 125 m²
45 000 000 Ft

8154 Polgárdi központ közelében

HZ012691 | 4 szoba | 88 m²
27 000 000 Ft

8154 Polgárdi kétgenerációs családi ház

HZ085737 | 5 szoba | 109 m²
49 000 000 Ft

8154 Polgárdi

HZ062096 | 5 szoba | 160 m²
89 500 000 Ft

8154 Polgárdi Polgárdi Óvoda közelében

HZ095483 | 3 szoba | 84 m²
40 000 000 Ft

8154 Polgárdi

NY012869 | 3 szoba | 78 m²
26 600 000 Ft

8154 Polgárdi Balatoni út

HZ038093 | 5 szoba | 140 m²
129 000 000 Ft

8154 Polgárdi

H504058 | 2 szoba | 35 m²
19 700 000 Ft

8154 Polgárdi

H505814 | 4 szoba | 101 m²
79 700 000 Ft

8154 Polgárdi

H506946 | 2 szoba | 51 m²
23 000 000 Ft

8154 Polgárdi

H501710 | 2 szoba | 56 m²
18 000 000 Ft
Lócskai István Árpád
Értékesítő
Kapcsolatfelvétel
Hívom
Kapcsolatfelvétel
Kérjen egy személyes megtekintést az ingatlanra a Duna House értékesítőjétől
Válassz egy időpontot