.
Eladó Ház 6000 Kecskemét , Kiskertekben újép.72nm N+2szoba, 17nm terasz, 22nm gk.beálló
HZ041511
Eladó
Ikerház
Hamarosan jön
Új
69 900 000 Ft
6000 Kecskemét , Kiskertekben újép.72nm N+2szoba, 17nm terasz, 22nm gk.beálló
3 szoba
111 m²
450 m² telek
Törlesztőrészlet Ft/hó
THM %
3 megtekintés az elmúlt 7 napban
Leírás
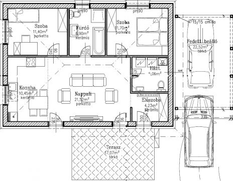
Eladó Kecskemét Kiskertek városrészben nettó 71,26 nm lakóterű, amerikai konyhás nappali + 2 szobás, 17 nm terasz, 22,52nm fedett autóbeállóval rendelkező, PRÉMIUM műszaki tartalommal megépülő ÚJ ikerház projektet 450 nm-es telken.
Műszaki tartalom:
- közművek (villany, víz, csatorna, gáz)
- kedvelt családi házas lakóövezet
- beton sávalap
- Wienerberger Porotherm 30 N+F síkra csiszolt tégla+ 15 cm EPS 80 hőszigetelés
- tégla válaszfalazat
- szeglemezes tető, födém gerendák között 30 cm vastag, fújt cellulóz, tűzgátló gipszkarton
- a műanyag nyílászárók 3 rétegű üvegezésük, Argon gáz töltettel
- 24 KW-os kondenzációs BOSCH kazán vagy vele azonos tudású kazán, padlófűtés
- a fűtés manuálisan hordozható termosztáttal szabályozható
- 3 db fűthető cseptálcás, hőszivattyús Midea 3,5 KW-os WIFI-s klíma
- Inim SmartLiving riasztórendszer
- hidegburkolatok bruttó 6.000Ft/nm
- melegburkolatok  bruttó 3.500 Ft/nm
- beltéri ajtók bruttó 80.000 Ft/db választható kilinccsel együtt
- szaniterek és a csaptelepek bruttó 550.000 Ft értékig
Az ár kulcsrakész átadással értendő, konyhabútor és lámpatestek nélkül, a TELEK ÁRAT TARTALMAZZA!

Mutass többet
Általános adatok
Építés éve:
2026
Belső szintek száma:
1
Épület külső állapota:
6 - Új. ép.
Épület belső állapota:
6 - Új. ép.
Fényviszonyok:
Napfényes
Nézet:
Kert/belső kert
Fűtés:
Gáz cirkó,Klíma
Szerkezet:
Tégla
Energetikai besorolás:
Nincs megadva
Víz:
Ingatlanban
Gáz:
Ingatlanban
Villany:
Ingatlanban
Csatorna:
Ingatlanban
Hamarosan jön
A ”Hamarosan jön” státuszú ingatlanok esetében jelenleg még folyamatban vannak a jogi és egyéb ellenőrzési folyamatok, így azok még nem teljesültek maradéktalanul. A Duna House Franchise Kft. és annak hálózatában tevékenykedők nem vállalnak felelősséget azért, hogy az adott hirdetés mikor kerül ”aktív” státuszba, vagy aktív státuszba kerül-e végül. A részletekről érdeklődjenek az adott hirdetésnél található DH partner értékesítői elérhetőségeken.
Mutass többet
Lakáshitel kalkulátor – Spórolj velünk!
Kalkulálj most, és keresd pénzügyi szakértőinket, akik ingyenes tanácsadással segítenek megtalálni a számodra legjobb megoldást!

Hasonló ingatlanok

6000 Kecskemét

HZ043339 | 5 szoba | 168 m²
54 900 000 Ft

6000 Kecskemét Főút mellett - AKÁR VÁLLALKOZÁSRA!

HZ051912 | 5 szoba | 200 m²
24 000 000 Ft

6000 Kecskemét 2 különbejáratú, jóállapotú ház, Szelei faluban

HZ091729 | 6 szoba | 110 m²
45 000 000 Ft

6000 Kecskemét Matkópusztán 140 nm-es felújított tanya, 6647 nm telken

HZ057959 | 4 szoba | 145 m²
69 000 000 Ft

6044 Kecskemét Hétvégi ház eladó Úrihegyben

HZ098844 | 3 szoba | 43 m²
22 500 000 Ft

6000 Kecskemét Kecskemét Úrihegy

HZ040011 | 4 szoba | 180 m²
42 000 000 Ft

6000 Kecskemét Ipoly utca

HZ038465 | 2 szoba | 78 m²
69 900 000 Ft

6000 Kecskemét ÚJ ÉPÍTÉSŰ INGATLAN A SZÉLESKÖZ MELLETT

HZ063986 | 5 szoba | 109 m²
52 200 000 Ft

6000 Kecskemét Janus Pannonius

HZ077259 | 3 szoba | 140 m²
93 000 000 Ft

6000 Kecskemét Arborétumos környezetben épülő ház

HZ031303 | 4 szoba | 136 m²
99 000 000 Ft

6000 Kecskemét 1 HEKTÁR 3 %-BAN BEÉPÍTHETŐ ERDŐS TERÜLET ELADÓ

TK013862 | 10309 m²
10 500 000 Ft

6000 Kecskemét HALASI ÚTI KISKERTEK, 2942 m2-es TELEK

TK051848 | 2942 m²
46 900 000 Ft

6000 Kecskemét Hamarosan megkezdődő építkezés a PETŐFIVÁROS mellett Felsőszéktón!

HZ057607 | 5 szoba | 225 m²
109 000 000 Ft

6044 Kecskemét Hetényi elkerülő közelében...

HZ014416 | 9 szoba | 848 m²
109 900 000 Ft

6000 Kecskemét AZ 52-ES FŐÚTHOZ KÖZVETLEN KAPCSOLATTAL RENDELKEZŐ 15 HEKTÁROS TERÜLET 450 M2-ES TÉGLA ÉPÍTÉSŰ ÉPÜLETTEL ÉS CSALÁDI HÁZZAL

ME078096 | 2 szoba | 450 m²
79 000 000 Ft

6000 Kecskemét NAPPALI + 4 SZOBÁS CSALÁDI HÁZ

HZ085383 | 5 szoba | 138 m²
119 800 000 Ft

6000 Kecskemét BEFEKTETŐK, MUNKÁSSZÁLLÓ KERESŐK FIGYELEM!

HZ079101 | 8 szoba | 200 m²
85 000 000 Ft

6000 Kecskemét Gyönyörű kerttel, felújított több hálószobás családi ház a Petőfivárosban!

HZ076833 | 6 szoba | 220 m²
119 000 000 Ft

6000 Kecskemét

HZ024126 | 4 szoba | 131 m²
49 900 000 Ft

6000 Kecskemét Belvárosi exkluzív vendéglátó hely

HZ049341 | 200 m²
165 000 000 Ft
Baski Attila
Örökös tag franchise partner
Kapcsolatfelvétel
Hívom
Kapcsolatfelvétel
Kérjen egy személyes megtekintést az ingatlanra a Duna House értékesítőjétől
Válassz egy időpontot