.
Eladó Ház 4551 Nyíregyháza , Lengő lakópark közelében
HZ041111
Eladó
Ikerház
Hamarosan jön
Új
87 000 000 Ft
4551 Nyíregyháza , Lengő lakópark közelében
4 szoba
100 m²
405 m² telek
Törlesztőrészlet Ft/hó
THM %
2 megtekintés az elmúlt 7 napban
Leírás
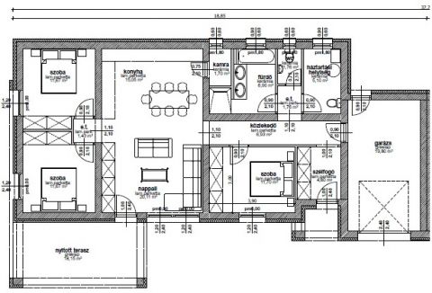
Nyíregyháza, Lengő lakópark közelében, 100,58 nm-es hasznos alapterületű lakótérrel rendelkező, de bruttó 120,38 nm-es, IKERHÁZ, 405 nm-es telken eladó!

Jellemzők:
- Porotherm 30-as X-therm rapid téglaépítés, nemes vakolattal,
- 10 cm-es válaszfalak, gipszkartonnal burkolva, pasztell színben
- Homlokzati szigetelés: EPS-80, 15 cm-es vastagságban
- Padlásfödém szigetelés: Rocwool kőzetgyapot 30 cm-es vastagságban
- Padlószigetelés: EPS-100 lépésálló, 10 cm-es vastagságban
- Nyílászárók: 2 légkamrás, 3 rétegű üveggel antracit szinben
- Biztonsági bejárati ajtó
- Tető fedés: sötét színű Leire cserép
- Fűtés: Hőszivattyú, padlófűtéssel, törölköző szárító radiátorok a fürdőszobákban
- 1 db 3,5 kWh Gree klíma
- Hörmann elektromos garázskapu, antracit színben
- Elrendezése: 36,16 nm-es Nappali + amerikai konyha + 3 szoba, fürdőszoba, külön Wc, háztartási helyiség, kamra, közlekedő, 1 állásos 19,8 nm-es garázs
- 18,15 nm-es nyitott terasz
- Térburkolat 60 nm-en lerakása 6.000,- Ft/nm-ig
- Utcafronti kerítés: előre gyártott Leier színes zsalukő
- Elektromos autótöltő
- Riasztó-, kamera-, elektromos redőny kiállások előkészítése
- Beltéri ajtók 80.000,- Ft/db-ig választhatóak
- Szabadon választható hidegburkolatok 8.000,- Ft/nm, melegburkolatok 5.500,- Ft/nm
- Szabadon válaszható szaniterek 800.000,- Ft-ban
- Víz, Villany, csatorna az ingatlanban
- Várható átadás: 2026 év vége

További kérdés esetén keressen elérhetőségeimen!

Vevőink részére minden szolgáltatásunk díjmentes!
Irodánkban szintén díjmentes hitel-, OSP, CSOK PLUSZ, Babaváró, Biztosítások ügyintézése!
Mutass többet
Általános adatok
Építés éve:
2026
Belső szintek száma:
1
Épület külső állapota:
6 - Új. ép.
Épület belső állapota:
6 - Új. ép.
Fényviszonyok:
Napfényes
Nézet:
Kert/belső kert
Fűtés:
Hőszivattyú
Szerkezet:
Tégla
Energetikai besorolás:
Nincs megadva
Víz:
Ingatlanban
Gáz:
Utcában
Villany:
Ingatlanban
Csatorna:
Ingatlanban
Hamarosan jön
A ”Hamarosan jön” státuszú ingatlanok esetében jelenleg még folyamatban vannak a jogi és egyéb ellenőrzési folyamatok, így azok még nem teljesültek maradéktalanul. A Duna House Franchise Kft. és annak hálózatában tevékenykedők nem vállalnak felelősséget azért, hogy az adott hirdetés mikor kerül ”aktív” státuszba, vagy aktív státuszba kerül-e végül. A részletekről érdeklődjenek az adott hirdetésnél található DH partner értékesítői elérhetőségeken.
Mutass többet
Lakáshitel kalkulátor – Spórolj velünk!
Kalkulálj most, és keresd pénzügyi szakértőinket, akik ingyenes tanácsadással segítenek megtalálni a számodra legjobb megoldást!

Hasonló ingatlanok

Béla Attila
Platina fokozatú értékesítő
Kapcsolatfelvétel
Hívom
Kapcsolatfelvétel
Kérjen egy személyes megtekintést az ingatlanra a Duna House értékesítőjétől
Válassz egy időpontot