.
Eladó Ház 9136 Mérges , Fő utca környéke
HZ032028
Eladó
Családi ház
Új
63 300 000 Ft
9136 Mérges , Fő utca környéke
4 szoba
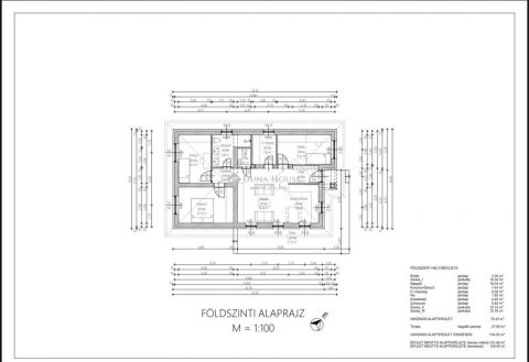
80 m²
600 m² telek
Törlesztőrészlet Ft/hó
THM %
1 megtekintés az elmúlt 7 napban
Leírás
Új építésű családi ház Mérges csendes, nyugodt utcájában modern otthon, biztos érték!
Mérges egyik rendezett, csendes utcájában kínálok megvételre egy új építésű, 80 m²-es, földszintes családi házat, amely ideális választás mindazok számára, akik a vidéki nyugalmat korszerű élettérrel szeretnék ötvözni.
Az ingatlan kivitelezése 2026 nyarán indul, így a leendő tulajdonos már a kezdetektől bekapcsolódhat a folyamatba, és saját elképzelései szerint formálhatja jövőbeli otthonát legyen szó burkolatokról, színekről vagy műszaki megoldásokról.
A földszintes kialakítás praktikus, időtálló megoldást kínál, amely minden korosztály számára kényelmes életteret biztosít. Az átgondolt elrendezés élhető, harmonikus tereket eredményez, ahol a mindennapok valódi otthonérzéssel telnek meg.
Főbb jellemzők:


80 m² hasznos alapterület


korszerű, új építésű kivitelezés


földszintes, jól átgondolt elrendezés


csendes, családias környezet


kiváló választás saját részre vagy befektetésnek


Műszaki tartalom és fűtés:
Az ingatlan szerkezetkész állapotban kerül értékesítésre, kialakított fűtési rendszerrel. Ez lehetőséget biztosít arra, hogy az új tulajdonos saját igényei szerint válassza ki a végleges megoldásokat, így az otthon minden részlete személyre szabható.
Ez az ingatlan nem csupán egy ház, hanem egy lehetőség: egy olyan otthon megteremtésére, amely teljes mértékben az Ön elképzeléseit tükrözi.
Ha fontos Önnek a nyugalom, a minőség és az értékállóság, ezt az ajánlatot érdemes személyesen is megismerni.
További információért keressen bizalommal!
Mutass többet
Általános adatok
Építés éve:
2026
Belső szintek száma:
1
Épület külső állapota:
6 - Új. ép.
Épület belső állapota:
6 - Új. ép.
Fényviszonyok:
Napfényes
Nézet:
Kert/belső kert
Fűtés:
Gáz cirkó,Klíma
Szerkezet:
Könnyűszerkezetes
Energetikai besorolás:
Nincs megadva
Víz:
Telken belül
Gáz:
Telken belül
Villany:
Telken belül
Csatorna:
Telken belül
Lakáshitel kalkulátor – Spórolj velünk!
Kalkulálj most, és keresd pénzügyi szakértőinket, akik ingyenes tanácsadással segítenek megtalálni a számodra legjobb megoldást!

Hasonló ingatlanok

Szép Tibor
Ezüst fokozatú értékesítő
Kapcsolatfelvétel
Hívom
Kapcsolatfelvétel
Kérjen egy személyes megtekintést az ingatlanra a Duna House értékesítőjétől
Válassz egy időpontot