.
Eladó Ház 2490 Pusztaszabolcs , Csendes mellékutca
HZ031634
Eladó
Családi ház
Új
86 900 000 Ft
2490 Pusztaszabolcs , Csendes mellékutca
4 szoba
105 m²
547 m² telek
Törlesztőrészlet Ft/hó
THM %
7 megtekintés az elmúlt 7 napban
Leírás
ÖNÁLLÓ CSALÁDI HÁZ IKERHÁZ ÁRÁÉRT PUSZTASZABOLCSON !

Pusztaszabolcs keresett részen, családias környéken, család barát elosztású önálló családi ház eladó. A telek terület összesen 1095 m2-es melyre 2 db önálló családi ház épül. Még mindkettő eladó. Ez az ingatlan a hátsó épület, mely szolgalmi úton közelíthető meg.

Az ingatlant a 2025-ös év kedvezményes feltételeivel tudja megvásárolni.
Otthon start típusú 3 %-os hitel és CSOK Plusz igényelhető,Illeték kedvezmény egyaránt.

Foglalja le már most leendő otthonát 10%-al. Az építkezés hamarosan kezdetét veszi.
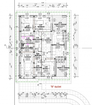
Az ingatlan nettó hasznos területe 88,75 m2 + 15,53 m2 garázs, 2 db fedett  terasz,  547 m2 kertkapcsolattal.  A helyiségek napfényesek, köszönhetően a jó tájolásnak és a jó méretű egyedi nyílászáróknak.
Elosztását tekintve:
Földszint:
- Előszoba
- 3 jó méretű hálószoba
-  Tágas amerikai konyhás nappali fedett teraszkapcsolattal
-  Fürdőszoba
- Háztartási helyiség
- 1 állásos garázs /kérhető szobának is /

- 547 m2-es saját kert



Műszaki adatok:


- 30-as Porotherm tégla, 10 cm Ytong válaszfalak

- 15 cm  homlokzati szigetelés

- Hőszivattyú 300 literes használati meleg víz tartállyal

- H- tarifás mérőszekrény kialakítás

- Minden helyiségben padlófűtés

- Betoncserép

- 3 rétegű 6 légkamrás nyílászárók, kívül antracit kivitelben

- 1 db autónak  kocsibeálló

- Riasztó előkészítése

- Szaniterek

- Hideg/meleg burkolatok ( 6 000 Ft/m2 meleg: 6 000 Ft/ m2 )

- Beltéri ajtók ( 60 000 Ft/ db )

- Bejárati ajtó


Ezek mind kiemelkedő minőségben és az átlagnál magasabb áron választhatóak. Árlista tőlem kérhető.Az építkezés megtekintése után minden a házzal kapcsolatos dokumentáció rendelkezésre áll.

Vállalkozó garantáltan megbízható, rugalmas, rengeteg referencia munkával, amit közösen megtudunk tekinteni a nagy döntés előtt.

Környék rendezett, minden perceken belül elérhető. Iskola, óvoda, bevásárlási lehetőségek, MO.

Várható átadás: 2026 Tavasz

További információkért hívjon bizalommal.
Mutass többet
Általános adatok
Építés éve:
2025
Belső szintek száma:
1
Épület külső állapota:
6 - Új. ép.
Épület belső állapota:
6 - Új. ép.
Fényviszonyok:
Nézet:
Kert/belső kert
Fűtés:
Hőszivattyú
Szerkezet:
Tégla
Energetikai besorolás:
Nincs megadva
Víz:
Ingatlanban
Gáz:
Nincs
Villany:
Ingatlanban
Csatorna:
Ingatlanban
Lakáshitel kalkulátor – Spórolj velünk!
Kalkulálj most, és keresd pénzügyi szakértőinket, akik ingyenes tanácsadással segítenek megtalálni a számodra legjobb megoldást!

Hasonló ingatlanok

2490 Pusztaszabolcs Központtól nem távol.

HZ523695 | 4 szoba | 60 m²
14 990 000 Ft

2490 Pusztaszabolcs Falu szélén

HZ047362 | 3 szoba | 105 m²
24 449 000 Ft

2490 Pusztaszabolcs Falu szélén

HZ019423 | 3 szoba | 134 m²
29 490 000 Ft

2490 Pusztaszabolcs Falu szélén

HZ037135 | 3 szoba | 86 m²
21 500 000 Ft

2490 Pusztaszabolcs Pusztaszabolcs Gazdabolt Széchenyi István utca 51.

HZ062685 | 4 szoba | 92 m²
69 990 000 Ft

2490 Pusztaszabolcs 2490 Pusztaszabolcs, Gazdabolt Széchenyi István 51.

HZ048401 | 4 szoba | 92 m²
69 990 000 Ft

2490 Pusztaszabolcs 2490 Pusztaszabolcs Széchenyi I. utca 51.

HZ069959 | 9 szoba | 160 m²
139 900 000 Ft

2490 Pusztaszabolcs Nyugodt környezetben

HZ079454 | 1 szoba | 70 m²
32 000 000 Ft

2490 Pusztaszabolcs

H504457 | 5 szoba | 100 m²
58 000 000 Ft

2490 Pusztaszabolcs Pusztaszabolcs csendes környéken.

HZ078294 | 2 szoba | 78 m²
44 900 000 Ft

2490 Pusztaszabolcs Buszmegállóhoz közel

HZ026582 | 11 szoba | 312 m²
74 900 000 Ft

2490 Pusztaszabolcs Csendes, mégis mindenhez közel!

HZ027138 | 3 szoba | 39 m²
32 000 000 Ft

2490 Pusztaszabolcs 2490 Pusztaszabolcs, Csendes

M312324 | 3 szoba | 95 m²
35 900 000 Ft

2490 Pusztaszabolcs Csendes környéken.

HZ090013 | 2 szoba | 63 m²
45 000 000 Ft

2490 Pusztaszabolcs Csendes utcában

HZ036118 | 2 szoba | 75 m²
65 500 000 Ft

2490 Pusztaszabolcs Jó helyen

HZ097356 | 4 szoba | 106 m²
84 900 000 Ft

2490 Pusztaszabolcs Falu szélén

HZ050343 | 1 szoba | 48 m²
7 800 000 Ft
Bucalics Roxána
Örökös tag csoportvezető
Kapcsolatfelvétel
Hívom
Kapcsolatfelvétel
Kérjen egy személyes megtekintést az ingatlanra a Duna House értékesítőjétől
Válassz egy időpontot