.
Eladó Ház 9400 Sopron , Kertvárosi csendes utca, kétgenerációs/lakásos önálló ház
HZ026997
Eladó
Családi ház
Hamarosan jön
Új
Áresés
108 000 000 Ft
9400 Sopron , Kertvárosi csendes utca, kétgenerációs/lakásos önálló ház
7 szoba
155 m²
431 m² telek
Törlesztőrészlet Ft/hó
THM %
0 megtekintés az elmúlt 7 napban
Leírás
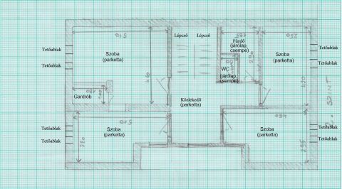
Kertváros/Bánfalva kisforgalmú utcájában épült önálló családi ház a telek adottságait kihasználva egyedi megoldásaival eredetileg a '90-es években jött létre, az azóta folyamatosan megújuló megoldásaival ideálisan nagycsalád és/vagy kétgenerációs otthonként is ideális megoldást kínál. A szintenként kb 70 m2-es élettér optimálisan akár kétlakásos társasházzá is alakítható, a körbejárhatóság külön további bejárat(ok) kialakíthatóságát kínálja. A fürdőszobák modernizálása/korszerűsítése, a lakótereké részben már megtörtént, az épület külső/energetikai korszerűsítésére a frissen (2026. okt. 16.) megújult jelenlegi, ill. jövőre is futó otthonfelújítási pályázat kínál lehetőséget.
A lakószinteken 2+3 szoba és azok kiszolgálóhelyiségei kaptak helyet, az alsó lakószint nagyméretű valóban tágas (20+15 m2) nappali/étkezője a nyugati tájolású fedett terasszal egészül ki, a felső lakótér Ny-i fekvésű nagyméretű erkéllyel nyújt rátekintést a közel 500 m2-es füvesített udvarra.
Az udvaron épített kerti grillező és melléképületek teszik teljessé az önállóságot.
Az alagsorban a garázsból nyíló kazánház és egyéb tárolóhelyiségek adnak lehetőséget akár vállalkozás és/vagy bármilyen hobbytevékenységre.
Adottságain kívül kedvező ára teszi vonzóvá a kategóriában szűkös választékú családi házak közt a valóban kedvezű árfekvésű ingatlant. A megtekintés a délutáni órákban, ill. a hétvégén lehetséges. 
Mutass többet
Általános adatok
Építés éve:
1995
Belső szintek száma:
3
Épület külső állapota:
4 - Jó
Épület belső állapota:
4 - Jó
Fényviszonyok:
Nézet:
Kert/belső kert
Fűtés:
Vegyes tüzelésű kazán
Szerkezet:
Tégla
Energetikai besorolás:
Nincs megadva
Víz:
Ingatlanban
Gáz:
Ingatlanban
Villany:
Ingatlanban
Csatorna:
Ingatlanban
Hamarosan jön
A ”Hamarosan jön” státuszú ingatlanok esetében jelenleg még folyamatban vannak a jogi és egyéb ellenőrzési folyamatok, így azok még nem teljesültek maradéktalanul. A Duna House Franchise Kft. és annak hálózatában tevékenykedők nem vállalnak felelősséget azért, hogy az adott hirdetés mikor kerül ”aktív” státuszba, vagy aktív státuszba kerül-e végül. A részletekről érdeklődjenek az adott hirdetésnél található DH partner értékesítői elérhetőségeken.
Mutass többet
Lakáshitel kalkulátor – Spórolj velünk!
Kalkulálj most, és keresd pénzügyi szakértőinket, akik ingyenes tanácsadással segítenek megtalálni a számodra legjobb megoldást!

Hasonló ingatlanok

9400 Sopron Alsólőverek

HZ467649 | 3 szoba | 80 m²
82 400 000 Ft

9400 Sopron Étterem vagy borozó és 2 lakás tárolókkal, pincékkel együtt eladó

HZ084732 | 3 szoba | 186 m²
135 000 000 Ft

9400 Sopron Fertő tóra néző panoráma

HZ055929 | 4 szoba | 170 m²
130 000 000 Ft

9400 Sopron A Belvárosában, közkedvelt utcában

LK049566 | 5 szoba | 127 m²
87 000 000 Ft

9407 Sopron Tómalmon, 3 szobás, teraszos, kertes ikerház eladó!

HZ039343 | 4 szoba | 95 m²
135 000 000 Ft

9400 Sopron Lővérekben eladó 3 szintes, többgenerációs, vállalkozásra is alkalmas családi ház

HZ059011 | 6 szoba | 236 m²
125 000 000 Ft

9400 Sopron kétszintes/négylakásos társasház kialakítására alkalmas épület....

UZ014888 | 199 m²
29 990 000 Ft

9400 Sopron

HZ079564 | 4 szoba | 160 m²
135 000 000 Ft

9400 Sopron

LK026567 | 4 szoba | 94 m²
69 600 000 Ft

9400 Sopron Aranyhegy

HZ058849 | 2 szoba | 67 m²
44 000 000 Ft

9400 Sopron Felső Lőverek

HZ038917 | 9 szoba | 426 m²
144 900 000 Ft

9400 Sopron Alsólőverek

HZ073180 | 7 szoba | 300 m²
130 000 000 Ft

9400 Sopron Ravazd lakópark

HZ017685 | 5 szoba | 300 m²
119 000 000 Ft

9400 Sopron Erzsébet kert közeli

HZ019512 | 8 szoba | 300 m²
129 000 000 Ft

9400 Sopron

HZ088026 | 4 szoba | 240 m²
100 000 000 Ft

9400 Sopron

HZ059481 | 6 szoba | 180 m²
169 000 000 Ft

9400 Sopron Kertváros

HZ077629 | 8 szoba | 385 m²
198 000 000 Ft

9407 Sopron Sopronkőhidán eladó földszinti 64m2-es lakás nagy kerttel.

LK025002 | 2 szoba | 64 m²
49 900 000 Ft

9400 Sopron Barka utca

HZ076668 | 2 szoba | 84 m²
69 000 000 Ft

9400 Sopron

HZ084884 | 3 szoba | 90 m²
69 900 000 Ft
Kiss Zoltán
Örökös tag értékesítő
Kapcsolatfelvétel
Hívom
Kapcsolatfelvétel
Kérjen egy személyes megtekintést az ingatlanra a Duna House értékesítőjétől
Válassz egy időpontot