.
Eladó Ház 2364 Ócsa , Önálló, új építésű családi ház Ócsa központjában
HZ022932
Eladó
Családi ház
102 500 000 Ft
2364 Ócsa , Önálló, új építésű családi ház Ócsa központjában
5 szoba
91 m²
633 m² telek
Törlesztőrészlet Ft/hó
THM %
16 megtekintés az elmúlt 7 napban
Leírás
Új építésű ingatlanok Ócsa központi részén!

A kiváló lokációban sorra kerülő beruházás  1 ikerházat (2 lakás) és 1 különálló házat foglal magában.

A telek teljeskörűen közművesített, csatornarendszerre rákötött.

Az önállócsaládi házhoz tartozik  fedett terasz,  kocsibeálló.

Az ingatlanok 30% önerővel leköthetők.

Várható átadás: 2026

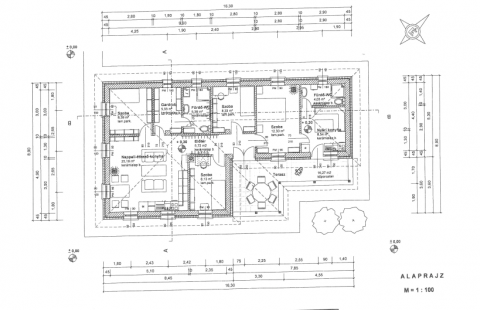
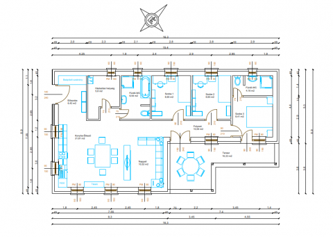
A ház fűtött hasznos lapterülete 91,37 m2, melyhez 16,27m2 fedett terasz tartozik. A belső elrendezés, válaszfalak még változtathatók az egyedi igényekhez igazodva. Jelenleg 4 hálószoba ,1 nappali-étkező, 2 fürdőszoba, 1 háztartási helység és egy nyári konyha tartozik. A belső elrendezés változtatható. Aki a tágasabb tereket kedveli, annak készült egy 3 szoba+ nappaliból álló terv is. A tetőszerkezetet úgy készítették, hogy ez a terv is megvalósulhasson. 

Az önálló családi ház belső útról közelíthető meg!



ÁLTALÁNOS MŰSZAKI LEÍRÁS :

A magánút hat méter szélességben murvázva lesz, olyan terepszint magassággal, mely lehetővé teszi a későbbi térkövezési munkákat.

A magánút és az eladásra kínált telkek közé 3D kerítés kerül, 1 gépkocsi kapuval és 1 gyalogos kapuval.

Az épület önálló közmű méréseket fog kapni (víz, csatorna, villamos megtáplálás)

AZ ÉPÜLET ÁLTALÁNOS MŰSZAKI LEÍRÁSA:

Lakás tervezett helyiségkiosztása:

1. nappali-étkező-konyha 25,19 m2 kerámia

2. hálószoba 12,30 m2 laminált parketta

3. hálószoba 8,39 m2 laminált parketta

4. hálószoba 8,33 m2 laminált parketta

5. hálószoba 8,13 m2 laminált parketta

6. fürdő-WC 5,39 m2 kerámia

7. fürdő-WC 4,05 m2 kerámia

8. előtér 5,72 m2 kerámia

9. nyárikonyha 8,54 m2 kerámia

10. gardrób 5,33 m2 kerámia                                       összesen: 91,37 m2

11. fedett terasz                                                           16,27 m2 kőporcelán

Az épület vasbeton sávalapra épített Porotherm 30 N+F tégla falazattal készült, kerámia áthidalókkal és adott pontokon a statikai terv szerint vasbeton gerendák kialakításával.

A főfalakat vasbeton koszorú fogja össze.

A válaszfalak 10-es ytong téglából készülnek.

A tetőszerkezet úgynevezett szeglemezes szerkezet lesz, mely lehetővé teszi a válaszfalak tervtől eltérő építését.

A tetőszerkezetre fólia, impregnált tetőléc, léc és végül betoncserép kerül.

A bádogos szerkezetek strukturált alumíniumból készültek.

Az épület 15 cm-es hőszigetelő rendszerrel lesz hőszigetelve.

A nyílászárók kívül belül fehér színben gyártott 3 rétegű üvegezéssel készült szerkezetek lesznek.

A 90×150-es ablakok műanyag redőnnyel (falsík alatti) és rovarhálóval lesznek szerelve.

Belső ajtók Eurowood Dekor Extra kivitelből kerülnek beépítésre a Jafholz kínálatából.

Az lakás mennyezete gipszkarton

A mennyezet terv szerinti 25 cm hőszigetelést kap a padlástér felől.

A padlástérre az épületben elhelyezett lenyitható lépcsőn keresztül lehet feljutni, a padlástér átadáskor csak részben lesz alkalmas tárolásra.

Külön kérésre a padlásteret járhatóvá teszik.

VILLAMOS HÁLÓZAT:

Az épület a magánút elején jobb oldalon elhelyezett mérőhelyekről kapnak betáplálást.

Az épület 1×32 A-es megtáplálást kap, valamint 3x20A H tarifás mérést a hőszivattyú és az oldalfali fűtő-hűtő klímaberendezések megtáplálásához.

Az energia elosztását a lakáson belül egy-egy a bejáratnál elhelyezett kismegszakító tábla biztosítja.

A gyalogos bejárókhoz csengőt és kaputelefon előkészítést biztosítunk (kábelezés, védőcsövezés), de magukat a készülékeket nem.

Az erősáramú villamos hálózat kiépítését az alábbi berendezések részere biztosítjuk:

    világítási hálózat (5 áramkör, legrand Valena kapcsolókkal, oldalfali és mennyezeti lámpa kiállásokkal)

    dugaszoló aljzatok (5 áramkör, 35 szerelvény, általános aljzatok, mosógép aljzat, mosogatógép aljzat, TV aljzat stb.)

    gépészeti berendezések megtáplálása (fűtést vezérlő elektronika, 5 db oldalfali split klíma).

A gyengeáramú hálózat kiépítését az alábbi rendszerek részére biztosítjuk:

    4 db informatikai RJ45-ös aljzat

    1 db TV kiállás koax kábellel

Az internet elérését biztosító külső kábel részére védőcsövet fektettünk le a villamos fogyasztásmérők szekrényeitől az előtérben elhelyezésre kerülő kismegszakító tábláig, illetve a fogyasztásmérőktől a közterületen található első villanyoszlopig.

ÉPÜLETGÉPÉSZET:

A lakás ívóvízzel, szennyvízcsatornával, lesz ellátva.

A csapadékvíz a föld alatti védőcsöveken a kertbe lesz elvezetve.

Ívóvízhálózat:

A lakás vízórája az utcafronton elhelyezett vízóra aknában lesz elhelyezve.

Az aknától a lakásokig 25-ös műanyag (kpe) vezetékkel álltunk el.

A hálózatba az alábbi elemek kerülnek elhelyezésre:

    szűrővel ellátott nyomáscsökkentő

    ötrétegű csövek préselt idomokkal

    fittingek

Fűtés:

A lakás alapfűtését helyiségenként vezérlehető padlófűtés biztosítja, mely rendszereket levegő-víz hőszivattyú látja el fűtővízzel.

Melegvíz készítés:

A lakások melegvíz ellátását a hőszivattyú biztosítja

Szaniter berendezések:

    csapok maximálisan nettó 12.000 Ft/db-ig a MOFÉM kínálatából, a konyhai csap kivételével, a konyhai csap a konyhabútor tartozéka.

    kád kompletten lábakkal, lefolyóval maximum nettó 100.000 Ft/db-ig.

    w.c.-ék kompletten (2 csésze, 2 tartály, 2 ülőket) maximum nettó 80.000 Ft/db-ig az Alföldi kínálatából.

    kézmosók (lakásonként 2 db) maximum nettó 45.000 Ft/db-ig, az Alföldi kínálatából.

FELÜLETKÉPZÉS:

A falakat 2 réteg glettel és 2 réteg fehér HÉRA festékkel festik

A burkoló anyagokat maximálisan nettó 5000 Ft/m2 áron a Zalakerámia kínálatából, a melegburkolást illetően és maximum nettó 5000 Ft/m2 áron a Jafholz kínálatából.

Ócsa Budapesttől mindössze autóval 30 perc távolságra van. A helyiség infrastruktúrája fejlett, tömegközlekedése alkalmas a napi szintű Budapestre való munkába járásra. Spar, bank, posta, a közelben.

Teljeskörű hitelügyintézéssel és akár ügyvédi szolgáltatással állunk rendelkezésére!

Várom megtisztelő hívását!

Mutass többet
Általános adatok
Építés éve:
2026
Belső szintek száma:
1
Épület külső állapota:
6 - Új. ép.
Épület belső állapota:
6 - Új. ép.
Fényviszonyok:
Napfényes
Nézet:
Kert/belső kert
Fűtés:
Hőszivattyú
Szerkezet:
Tégla
Energetikai besorolás:
Nincs megadva
Víz:
Ingatlanban
Gáz:
Utcában
Villany:
Ingatlanban
Csatorna:
Ingatlanban
Lakáshitel kalkulátor – Spórolj velünk!
Kalkulálj most, és keresd pénzügyi szakértőinket, akik ingyenes tanácsadással segítenek megtalálni a számodra legjobb megoldást!

Hasonló ingatlanok

2364 Ócsa

HZ040006 | 2 szoba | 70 m²
63 500 000 Ft

2364 Ócsa 4 szobás családi ház, akár kétgenerációnak

HZ042640 | 6 szoba | 105 m²
72 000 000 Ft

2364 Ócsa Remek elosztású sorházi lakás nagy kerttel, alacsony áron, Ócsa Alsópakony-pusztán!

HZ078214 | 3 szoba | 43 m²
42 900 000 Ft

2364 Ócsa Többgeneráció részére - külön bejárattal

HZ049684 | 6 szoba | 157 m²
88 000 000 Ft

2364 Ócsa Ócsán felújított ház önellátásra alkalmas telekkel

HZ087570 | 6 szoba | 150 m²
93 900 000 Ft

2364 Ócsa Modern, felújitott lakás hatalmas, medencés kerttel Ócsán

LK076389 | 3 szoba | 78 m²
104 900 000 Ft

2364 Ócsa

H502300 | 3 szoba | 84 m²
98 000 000 Ft

2364 Ócsa Önálló, újépítésű családi ház Ócsán

HZ045815 | 4 szoba | 100 m²
94 900 000 Ft

2364 Ócsa Ócsa

HZ049467 | 3 szoba | 156 m²
74 900 001 Ft

2364 Ócsa Ócsai ( Csűrkert) eladó ház

HZ096337 | 4 szoba | 80 m²
67 000 000 Ft

2364 Ócsa

HZ076062 | 4 szoba | 180 m²
49 900 000 Ft

2364 Ócsa

HZ091164 | 4 szoba | 330 m²
147 000 000 Ft

2364 Ócsa

HZ019675 | 4 szoba | 230 m²
101 000 000 Ft

2364 Ócsa

H497749 | 7 szoba | 236 m²
89 000 000 Ft

2364 Ócsa Központ közelében

HZ021374 | 4 szoba | 197 m²
75 000 000 Ft

2364 Ócsa

H503481 | 6 szoba | 240 m²
89 000 000 Ft

2364 Ócsa Kifinomult luxus, egy tökéletes házban

HZ050049 | 5 szoba | 205 m²
187 000 000 Ft

2364 Ócsa Ócsán befejezésre váró ház

TK098515 | 615 m²
60 000 000 Ft

2364 Ócsa Csendes környék, befejezésre váró ház

HZ083130 | 5 szoba | 134 m²
24 900 000 Ft

2364 Ócsa Mindenhez közel!

HZ058041 | 4 szoba | 85 m²
97 900 000 Ft
Balassa Anita
Ezüst fokozatú értékesítő
Kapcsolatfelvétel
Hívom
Kapcsolatfelvétel
Kérjen egy személyes megtekintést az ingatlanra a Duna House értékesítőjétől
Válassz egy időpontot