.
Eladó Ház 4060 Balmazújváros , Központ, kertváros
HZ021098
Eladó
Sorház
Hamarosan jön
Új
91 500 000 Ft
4060 Balmazújváros , Központ, kertváros
3 szoba
90 m²
1001 m² telek
Törlesztőrészlet Ft/hó
THM %
0 megtekintés az elmúlt 7 napban
Leírás
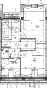
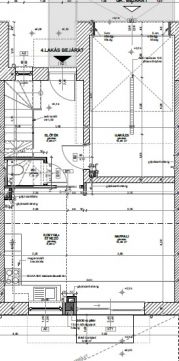
Eladó egy 2025-2026-ban épülő, prémium minőségű tégla szerkezetű ingatlan Balmazújváros központjában, a centrumtól mindössze 500 méterre. Ez a különleges otthon nem csupán az elhelyezkedése és a kiemelkedően magas minőségű alapanyagok miatt különleges, hanem mert modern hőszivattyús mennyezeti hűtési és padlófűtés rendszerrel is fel van szerelve, így garantálja a lakók kényelmét minden évszakban.
Az ingatlan sorházi lakásként épül, összesen 6 db tetőtér beépítéses lakás lett kialakítva. A földszinten külön utcai kapcsolattal lett kialakítva a garázs , mely az előtérből is megközelíthető. Itt lett kialakítva az amerikai konyhás nappali és egy vendég wc. A nappaliból közvetlen kert kapcsolat van. A tetőtérbe az előtérből lépcsőn lehet feljutni a tetőtérbe. A beruházó rugalmasan lehetőséget biztosít arra, hogy 2 vagy 3 külön bejáratú szoba legyen.  A belső burkolatokat a szanitereket és az ajtókat a leendő vevő választja ki.
Az ingatlant azoknak ajánljuk, akik értékelik a minőséget, szeretik a csendet, a privát környezetet, ugyanakkor szeretnének közel lenni Balmazújváros pezsgő központjához. Ne hagyja ki ezt a ritkán adódó lehetőséget, hogy egy ilyen különleges, modern otthon tulajdonosa lehessen egy igazán előkelő helyen.

A tágas, világos terek és a jól átgondolt elrendezés egyedülálló otthoni élményt kínálnak. A nappaliból nyíló, nagyméretű ablakok tökéletesen összekötik a belső teret a külsővel, így a kétségkívül lenyűgöző kertkapcsolatos teraszra lépve egy privát oázisban találja magát az ember, ahol a család kényelmesen kiülhet kávézni, napozni vagy akár egy baráti grillpartit rendezni. Az intim környezet kialakítására is nagy hangsúlyt fektettek, hogy mindenki megtalálhassa a saját kis nyugalmi szigetét a saját otthonában.
Bővebb felvilágosításért, az ingatlan megmutatásáért forduljon hozzám bizalommal.
Mutass többet
Általános adatok
Építés éve:
2026
Belső szintek száma:
2
Épület külső állapota:
6 - Új. ép.
Épület belső állapota:
6 - Új. ép.
Fényviszonyok:
Napfényes
Nézet:
Kert/belső kert
Fűtés:
Hőszivattyú
Szerkezet:
Tégla
Energetikai besorolás:
Nincs megadva
Víz:
Ingatlanban
Gáz:
Nincs
Villany:
Ingatlanban
Csatorna:
Ingatlanban
Hamarosan jön
A ”Hamarosan jön” státuszú ingatlanok esetében jelenleg még folyamatban vannak a jogi és egyéb ellenőrzési folyamatok, így azok még nem teljesültek maradéktalanul. A Duna House Franchise Kft. és annak hálózatában tevékenykedők nem vállalnak felelősséget azért, hogy az adott hirdetés mikor kerül ”aktív” státuszba, vagy aktív státuszba kerül-e végül. A részletekről érdeklődjenek az adott hirdetésnél található DH partner értékesítői elérhetőségeken.
Mutass többet
Lakáshitel kalkulátor – Spórolj velünk!
Kalkulálj most, és keresd pénzügyi szakértőinket, akik ingyenes tanácsadással segítenek megtalálni a számodra legjobb megoldást!

Hasonló ingatlanok

4060 Balmazújváros Németfalu frekventált részén

HZ046725 | 3 szoba | 172 m²
104 900 000 Ft

4060 Balmazújváros

H506183 | 4 szoba | 113 m²
109 000 000 Ft

4060 Balmazújváros

H506828 | 3 szoba | 70 m²
46 000 000 Ft

4060 Balmazújváros

U0048672 | 4 szoba | 129 m²
129 900 000 Ft

4060 Balmazújváros Központhoz közel

HZ072561 | 3 szoba | 93 m²
85 000 000 Ft

4060 Balmazújváros

H508185 | 6 szoba | 134 m²
112 151 356 Ft

4060 Balmazújváros

HZ039917 | 3 szoba | 75 m²
42 000 000 Ft

4060 Balmazújváros Központ, kertváros

HZ096006 | 3 szoba | 91 m²
91 500 000 Ft
Lovász Lajos László
Platina fokozatú értékesítő
Kapcsolatfelvétel
Hívom
Kapcsolatfelvétel
Kérjen egy személyes megtekintést az ingatlanra a Duna House értékesítőjétől
Válassz egy időpontot