.
Eladó Ház 1139 Budapest 13. kerület , 2 szintes irodaépület
HZ021003
Eladó
Családi ház
420 000 000 Ft
1139 Budapest 13. kerület , 2 szintes irodaépület
572 m²
656 m² telek
Törlesztőrészlet Ft/hó
THM %
13 megtekintés az elmúlt 7 napban
Leírás
Eladó 572 m²-es, 2 szintes önálló IRODAÉPÜLET Budapest XIII. kerületében, Angyalföld központjában

Budapest XIII. kerületében, Angyalföld egyik legfrekventáltabb részén kínálunk eladásra egy önálló irodaházként, cégközpontként működő, bruttó 674 m², nettó 572 m² alapterületű, 2 szintes épületet.

Az ingatlan egy 656 m²-es telken helyezkedik el, ahol a belső udvarban több gépkocsibeálló került kialakításra.

Az épület egyik része az 1930-as években épült, majd a 90-es években megtörtént a másik épületszárny és a tetőtér beépítése. A belső terek 2011-ben felújításra kerültek, míg 2015-ben külső felújítás, hőszigetelés és teljes nyílászárócsere valósult meg.

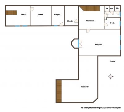
Jelenlegi kialakítás

    Földszint: recepció, 7 irodahelyiség, közlekedők, mosdók, irattár, kazánház

    Emelet: teakonyha, 2 irodahelyiség, mosdók, valamint jelenleg tárolásra használt padlásterek

Műszaki jellemzők

    gázkazános fűtés, padlófűtés és radiátorok

    szigetelt homlokzat, korszerű nyílászárók

    jó műszaki állapot

    udvari parkolóhelyek

    riasztórendszer és kamerák

    automata kerti locsolórendszer

Felhasználási lehetőségek

Az ingatlan sokoldalúan hasznosítható:

    cégközpont, irodaház

    orvosi rendelő, egészségügyi központ

    oktatási vagy képzési központ

    raktár, szolgáltató egység

    befektetési célú hasznosítás

    a hatályos építési szabályozás függvényében további fejlesztési lehetőségek

A beépített bútorok a vételár részét képezik.

Ez az ingatlan ideális választás mindazok számára, akik jól megközelíthető, rugalmasan alakítható, értékálló befektetést keresnek Budapest egyik legdinamikusabban fejlődő városrészében.

Angyalföld Budapest XIII. kerületének egyik legkeresettebb üzleti és befektetési lokációja, amely kiváló közlekedési adottságokkal, fejlett infrastruktúrával és folyamatosan növekvő irodapiaci kereslettel rendelkezik. A környék könnyen elérhető tömegközlekedéssel és autóval egyaránt, miközben a Váci úti irodafolyosó, a szolgáltatások, éttermek és lakóövezetek közelsége vonzóvá teszi mind a bérlők, mind a vállalkozások számára. Az itt található irodaházak hosszú távon stabil értéket és jó kiadhatóságot képviselnek, így Angyalföld ideális választás saját használatra és befektetésre egyaránt.

Ha az ingatlan felkeltette érdeklődését, kérem, keressen bizalommal!

Mutass többet
Általános adatok
Építés éve:
1930
Belső szintek száma:
2
Épület külső állapota:
4 - Jó
Épület belső állapota:
4 - Jó
Fényviszonyok:
Nézet:
Utca
Fűtés:
Gáz kazán,Gáz kazán,Padlófűtés
Szerkezet:
Tégla
Energetikai besorolás:
Nincs megadva
Víz:
Ingatlanban
Gáz:
Ingatlanban
Villany:
Ingatlanban
Csatorna:
Ingatlanban
Lakáshitel kalkulátor – Spórolj velünk!
Kalkulálj most, és keresd pénzügyi szakértőinket, akik ingyenes tanácsadással segítenek megtalálni a számodra legjobb megoldást!

Hasonló ingatlanok

1135 Budapest 13. kerület

AL046179 | 1 szoba | 653 m²
186 000 000 Ft

1131 Budapest 13. kerület Felújított, medencés családi ház a Duna Plaza közelében!

HZ045309 | 5 szoba | 160 m²
199 500 000 Ft

1131 Budapest 13. kerület Béke út Aldi parkoló

HZ013883 | 7 szoba | 181 m²
499 000 000 Ft

1131 Budapest 13. kerület

HZ086865 | 3 szoba | 110 m²
149 900 000 Ft

1131 Budapest 13. kerület

TK058116 | 691 m²
585 000 000 Ft

1131 Budapest 13. kerület

H511259 | 4 szoba | 57 m²
129 900 000 Ft
Dr. Nagy Gabriella
Franchise partner
Kapcsolatfelvétel
Hívom
Kapcsolatfelvétel
Kérjen egy személyes megtekintést az ingatlanra a Duna House értékesítőjétől
Válassz egy időpontot