.
Eladó Ház 2243 Kóka
HZ017644
Eladó
Családi ház
69 900 000 Ft
2243 Kóka
4 szoba
97 m²
700 m² telek
Törlesztőrészlet Ft/hó
THM %
5 megtekintés az elmúlt 7 napban
Leírás
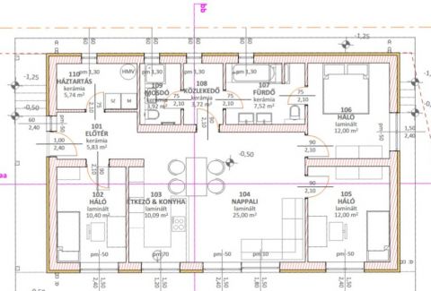
Kókán eladó egy 2026- ban épülő 3 szoba, nappalis ház 700m2-es telken.

A ház terve, és minden dokumentációja megtekinthető, ezen kívül referencia munkát is tudunk mutatni.

A házat a cég megrendelés esetén 20% befizetés esetén azonnal elkezdi építeni és maximum 10 hónap alatt kulcsrakészen átadásra kerül.


Vasalt beton alappal , porotherm 30-ból kerül megépítésre.

Koszorú monolit vasbeton, a födém fagerendás, gipszkarton álmennyezettel.

3 rétegű fehér műanyag nyílászárók kerülnek beépítésre, a belső ajtók MDF szerkezetűek .


A ház elrendezése kiváló, 3 szoba-amerikai konyhás nappalis kialakítású.

2 fürdőszoba, egyik tusolós másik kádas.

A cég a burkolatokat 4000ft/m2-ig állja, afelett  a vevő terhe.

Szaniterek közép kategóriáig az ár részét képezik, prémium vagy egyedi igény esetén megbeszélés szerint a vevőt terheli. Ez összegben azt jelenti hogy 300.000 ft -ig a kivitelező állja a szanitereket, afeletti rész a vevő terhe.

A fűtést hőszivattyú biztosítja padlófűtéssel, puffertartályos rendszerleválasztással.

Amennyiben új építésű ingatlanban gondolkodik Budapest közelében ne habozzon, beszéljük át a részleteket!

Ügyvédi hátteret és a hitel teljes lebonyolítását végző szakértőt is biztosítunk!


Mutass többet
Általános adatok
Építés éve:
2026
Belső szintek száma:
1
Épület külső állapota:
6 - Új. ép.
Épület belső állapota:
6 - Új. ép.
Fényviszonyok:
Napfényes
Nézet:
Udvar
Fűtés:
Hőszivattyú
Szerkezet:
Tégla
Energetikai besorolás:
Nincs megadva
Víz:
Ingatlanban
Gáz:
Utcában
Villany:
Ingatlanban
Csatorna:
Ingatlanban
Lakáshitel kalkulátor – Spórolj velünk!
Kalkulálj most, és keresd pénzügyi szakértőinket, akik ingyenes tanácsadással segítenek megtalálni a számodra legjobb megoldást!

Hasonló ingatlanok

2243 Kóka

HZ026950 | 1 szoba | 22 m²
7 500 000 Ft

2243 Kóka Kóka Fő út mellett

HZ026636 | 4 szoba | 74 m²
44 900 000 Ft

2243 Kóka

HZ031772 | 5 szoba | 165 m²
38 400 000 Ft

2243 Kóka Kóka Isaszegi utca

HZ028347 | 2 szoba | 52 m²
41 900 000 Ft

2243 Kóka Eladó ikerházfél közös falak nélkül, saját kerttel!

HZ077079 | 4 szoba | 102 m²
63 900 000 Ft

2243 Kóka

HZ054266 | 4 szoba | 112 m²
20 700 000 Ft

2243 Kóka Kókán a Jókai Park közelében

HZ022307 | 5 szoba | 132 m²
67 000 000 Ft

2243 Kóka

HZ010758 | 4 szoba | 92 m²
69 990 000 Ft

2243 Kóka

ME046736 | 2 szoba | 50 m²
16 900 000 Ft

2243 Kóka Kókán Csendes Nyugodt Utcában

HZ034030 | 4 szoba | 108 m²
59 900 000 Ft

2243 Kóka Kétgenerációs

HZ097412 | 5 szoba | 200 m²
64 000 000 Ft

2243 Kóka

H507974 | 3 szoba | 64 m²
29 500 000 Ft

2243 Kóka KÓKÁN A jÓKAI PARKTÓL NEM MESSZE

HZ049012 | 4 szoba | 113 m²
59 900 000 Ft

2243 Kóka Kóka csendes, aszfaltozott kis utcájában

HZ074936 | 4 szoba | 146 m²
32 900 000 Ft

2243 Kóka Új építésű ingatlanok között,nem messze a Buszmegállótól.

HZ082272 | 4 szoba | 109 m²
58 000 000 Ft

2243 Kóka Kókán Új építésű ingatlanok között.

HZ052212 | 4 szoba | 113 m²
63 000 000 Ft

2243 Kóka Kókán újápítésű ingatlanok között

HZ077816 | 4 szoba | 113 m²
63 000 000 Ft

2243 Kóka Kókán Modern környezetben

HZ096085 | 4 szoba | 109 m²
58 000 000 Ft

2243 Kóka

HZ091353 | 4 szoba | 92 m²
69 900 000 Ft

2243 Kóka Felújítandó ház nagy telken központban

HZ073865 | 2 szoba | 60 m²
20 000 000 Ft
Megyeriné Mikus Melinda
Briliáns fokozatú értékesítő
Kapcsolatfelvétel
Hívom
Kapcsolatfelvétel
Kérjen egy személyes megtekintést az ingatlanra a Duna House értékesítőjétől
Válassz egy időpontot