.
Eladó Ház 2483 Gárdony
HZ012625
Eladó
Ikerház
Hamarosan jön
Új
Prémium
168 000 000 Ft
2483 Gárdony
5 szoba
161 m²
353 m² telek
Törlesztőrészlet Ft/hó
THM %
0 megtekintés az elmúlt 7 napban
Leírás
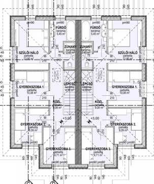
Eladó Gárdony frekventált, mégis nyugodt részén egy épülőfélben lévő, minden igényt kielégítő ikerházfél, amely nem csupán egy ingatlan, hanem egy életre szóló befektetés a minőségbe.

-    Tágas terek nagycsaládosoknak is.

-    Ritka kincs a piacon: a földszinti tágas amerikai konyhás nappali mellett további 4 teljes értékű hálószoba és 3 fürdőszoba biztosítja, hogy a reggeli készülődés torlódásmentes legyen, és mindenkinek jusson privát szféra.

A teljesség igénye nélkül a lakások műszaki tartalmáról:

-    Viablokk falazat, 10 cm Dryvit szigetelés

-    Hofstadter 3 rétegű nyílászárók, motoros redőnyökkel

-    Egyedi kő burkolat a homlokzaton, párkányokon,

-    Monolit vasbetonfödém

-    Hőszivattyús padló hűtés-fűtés

-    A szobákban és a nappaliban hűtő-fűtő és páramentesítő klíma

-    Térkövezett járda, terasz és kocsibeálló

További műszaki tartalmakkal is szívesen állunk rendelkezésre!

-    Zöldenergia és A++ besorolás Felejtse el a magas rezsit! A ház hőszivattyús fűtésrendszerrel és kiváló szigeteléssel épül, így energetikai besorolása A++. Amit ma megspórol a vételáron egy gyengébb háznál, azt itt a havi számlákon nyerheti vissza hosszú távon.

-    Miért különleges ez az ajánlat? Az ingatlan kivitelezője évtizedes tapasztalattal rendelkezik a prémium kőburkolatok világában. Mit jelent ez Önnek? Azt, hogy itt nem "standard" burkolatok közül válogathat: leendő tulajdonosként kiemelt lehetőséget kap prémium márvány, gránit és felső kategóriás burkolatok kiválasztására, hogy otthona valóban az Ön ízlését és a luxust tükrözze.

Lokáció Gárdony a Velencei-tó fővárosa. A ház elhelyezkedése kiváló: közel a parthoz és a központi infrastruktúrához, mégis csendes környezetben.

Befektetés a jövőbe Bár az ingatlan paramétereiből adódóan állami támogatások (CSOK, stb.) nem vehetők igénybe, ez a ház azoknak szól, akik nem kompromisszumokat keresnek, hanem értéket. Ideális készpénzes vásárlóknak vagy piaci hitellel rendelkezőknek, akik tudják: a minőségi anyaghasználat és a megbízható kivitelező a legjobb garancia.

Várható átadás: 2026 Irányár: 168.000.000 Ft 30%-os előleggel leköthető

Hívjon bizalommal, és tekintse meg a helyszínt, valamint a választható prémium burkolatok mintáit!

Mutass többet
Általános adatok
Építés éve:
2025
Belső szintek száma:
2
Épület külső állapota:
6 - Új. ép.
Épület belső állapota:
6 - Új. ép.
Fényviszonyok:
Napfényes
Nézet:
Kert/belső kert
Fűtés:
Hőszivattyú,Klíma
Szerkezet:
Ytong
Energetikai besorolás:
A++
Víz:
Ingatlanban
Gáz:
Nincs
Villany:
Ingatlanban
Csatorna:
Ingatlanban
Hamarosan jön
A ”Hamarosan jön” státuszú ingatlanok esetében jelenleg még folyamatban vannak a jogi és egyéb ellenőrzési folyamatok, így azok még nem teljesültek maradéktalanul. A Duna House Franchise Kft. és annak hálózatában tevékenykedők nem vállalnak felelősséget azért, hogy az adott hirdetés mikor kerül ”aktív” státuszba, vagy aktív státuszba kerül-e végül. A részletekről érdeklődjenek az adott hirdetésnél található DH partner értékesítői elérhetőségeken.
Mutass többet
Lakáshitel kalkulátor – Spórolj velünk!
Kalkulálj most, és keresd pénzügyi szakértőinket, akik ingyenes tanácsadással segítenek megtalálni a számodra legjobb megoldást!

Hasonló ingatlanok

2484 Gárdony Gárdony - Agárd, Csutora étterem közelében

HZ069422 | 2 szoba | 30 m²
38 900 000 Ft

2483 Gárdony Kellemes zöldövezeti környezet

HZ073385 | 4 szoba | 116 m²
125 000 000 Ft

2485 Gárdony

HZ089925 | 3 szoba | 100 m²
59 000 000 Ft

2483 Gárdony A Velencei tó partján146 m2-es, napelemes családi ház, működő üzlethelyiséggel

UZ056226 | 4 szoba | 146 m²
115 000 000 Ft

2483 Gárdony

HZ066375 | 4 szoba | 50 m²
34 900 000 Ft

2483 Gárdony Gárdonyban kiváló lokáció!

HZ088085 | 2 szoba | 56 m²
47 500 000 Ft

2483 Gárdony Családias környezetben, a termálfürdő közelében

HZ033662 | 8 szoba | 170 m²
99 000 000 Ft

2483 Gárdony A termálfürdő közelében!

HZ077182 | 6 szoba | 182 m²
148 900 000 Ft

2483 Gárdony Gárdony

HZ085638 | 6 szoba | 140 m²
89 500 000 Ft

2484 Gárdony nagy saroktelken

HZ066626 | 7 szoba | 290 m²
159 000 000 Ft

2483 Gárdony

HZ047639 | 2 szoba | 48 m²
49 900 000 Ft

2483 Gárdony Gárdonyi kisház szép telken

HZ083514 | 2 szoba | 30 m²
34 900 000 Ft

2484 Gárdony a központ közelében

HZ086394 | 5 szoba | 194 m²
179 000 000 Ft

2483 Gárdony Számozott utcákban

HZ052658 | 2 szoba | 30 m²
43 700 000 Ft

2484 Gárdony Széchenyi utca közelében.

HZ097161 | 5 szoba | 180 m²
119 990 000 Ft

2484 Gárdony A termálfürdő mellett!

HZ023477 | 4 szoba | 207 m²
154 900 000 Ft

2484 Gárdony a termálfürdő közelében

HZ082481 | 2 szoba | 49 m²
45 000 000 Ft

2484 Gárdony Agárd

HZ099810 | 4 szoba | 110 m²
89 500 000 Ft

2484 Gárdony főútvonal mentén

HZ059580 | 2 szoba | 38 m²
29 900 000 Ft

2484 Gárdony

HZ069927 | 5 szoba | 100 m²
89 999 000 Ft
Magyar Veronika
Platina fokozatú értékesítő
Kapcsolatfelvétel
Hívom
Kapcsolatfelvétel
Kérjen egy személyes megtekintést az ingatlanra a Duna House értékesítőjétől
Válassz egy időpontot