.
Eladó Lakás 4024 Debrecen
H516408
Eladó
Lakás
Prémium
79 900 000 Ft
4024 Debrecen
3 szoba
54 m²
Tégla
Törlesztőrészlet Ft/hó
THM %
10 megtekintés az elmúlt 7 napban
Leírás
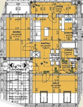
Debrecen belvárosi részén kínálunk megvételre egy 2015-ben épült, kiváló állapotú, 54 nm-es (bruttó 60 nm) lakást, amely egy rendezett, zárt udvaros, mindössze 6 lakásos lépcsőház 2. emeletén helyezkedik el. Az ingatlan praktikus elosztású: nappali–étkező–konyha + 2 külön nyíló szoba biztosít kényelmes életteret. A nyugati fekvésnek köszönhetően a lakás világos és napfényes, amelyet egy 6,6 nm-es loggia tesz még élhetőbbé.

A lakás igényes kialakítású, modern stílus jellemzi:
-egyedi tervezésű, gépesített konyhabútor (sütő, főzőlap, mikró, hűtő, elszívó)
-minőségi burkolatok
-zuhanyzós fürdőszoba
-külön WC
-beépített szekrények
-klíma

Elhelyezkedése kiváló: a villamos- és buszmegállók, valamint bevásárlóközpontok néhány perc sétával elérhetők.
A lakáshoz teremgarázs beálló vásárlása kötelező, melynek ára 10 millió Ft.
Az energetikai tanúsítvány elkészítése folyamatban van.

Ideális választás saját otthonnak vagy befektetésnek is!
Mutass többet
Általános adatok
Ingatlan állapota:
5 - Nagyon jó
Építés éve:
2015
Emelet:
2
Emeletek száma:
0
Lift:
Nincs Lift
Épület külső állapota:
5 - Nagyon jó
Épület belső állapota:
5 - Nagyon jó
Fényviszonyok:
Nincs megadva
Parkolás:
Nincs
Erkély/Terasz:
Nincs
Nézet:
Panoráma
Tájolás:
NY
Fűtés:
Távfűtés egyedi mérővel
Energetikai besorolás:
Nincs megadva
Lakáshitel kalkulátor – Spórolj velünk!
Kalkulálj most, és keresd pénzügyi szakértőinket, akik ingyenes tanácsadással segítenek megtalálni a számodra legjobb megoldást!

Hasonló ingatlanok

Dr. Kocsár Janka Ildikó
Ezüst fokozatú értékesítő
Kapcsolatfelvétel
Hívom
Kapcsolatfelvétel
Kérjen egy személyes megtekintést az ingatlanra a Duna House értékesítőjétől
Válassz egy időpontot