.
Eladó Ház 8300 Tapolca
H514543
Eladó
Családi ház
Prémium
167 640 000 Ft
8300 Tapolca
5 szoba
434 m²
1 m² telek
Törlesztőrészlet Ft/hó
THM %
4 megtekintés az elmúlt 7 napban
Leírás
Tapolca frekventált részén, közvetlenül az egyik főutca mellett,
eladó egy korábban kiválóan működő étterem és panzió, a sokak által ismert Vadrózsa Apartman és Étterem.
Az ingatlan évek óta nem üzemel, így szabadon újragondolható panzió, apartmanház, étterem vagy akár többfunkciós befektetés céljára.

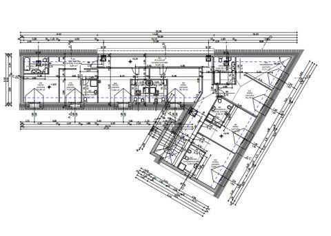
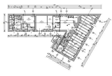
Főbb adatok:

- 434 m² összterületű ingatlan
- 573 m² telek
- 7 apartman, mindegyik saját fürdőszobával (zuhanyzós és kádas kialakítás vegyesen)
- Ét­terem, konyha, bárpúlt
- Térkövezett udvar
- Külön iroda, mosókonyha, kazánház
- Gázkazános fűtés
- Összközműves.
- Parkolás az utcán és az udvarban is megoldott
/ Alaprajzok és pontos helyiséglista, a képek között elérhetőek/


Elhelyezkedés: Tapolca egyik legjobb, jól látható pontján ideális vendégek, turisták és helyiek számára egyaránt.

Tapolca a Balaton-felvidék nyugati szélén, a Tapolcai-medence közepén helyezkedik el. Tapolca egyértelműen leghangulatosabb, országos összevetésben is páratlan látványossága a tóparti főtér: a Malom-tó és a mellette épült középkori eredetű házsor hangulata nehezen engedi el a látogatót. Tapolca szláv jelentése meleg víz - a forrásvíz 18 fokon tör elő a város alatti karsztos barlangrendszerből. Hőmérsékleténél fogva a tó vize nem fagy be télen. A várost körülölelik a Tapolcai-medence bazalthegyei.

A város saját stranddal rendelkezik.
Az ingatlan a Balaton második vonalában, a Magyar Tengertől mindössze 14 km távolságra helyezkedik el.

Ha olyan ingatlant keres, amely múltjára építve újra sikerre vihető, és komoly üzleti potenciált rejt magában, ez a lehetőség Önre vár.
Amennyiben felkeltettem érdeklődését vagy kérdése van, forduljon hozzám bizalommal!
Mutass többet
Általános adatok
Építés éve:
1980
Belső szintek száma:
Nincs megadva
Épület külső állapota:
4 - Jó
Épület belső állapota:
4 - Jó
Fényviszonyok:
Nincs megadva
Nézet:
Nincs megadva
Fűtés:
Szerkezet:
Tégla
Energetikai besorolás:
Nincs megadva
Víz:
Telken belül
Gáz:
Telken belül
Villany:
Telken belül
Csatorna:
Telken belül
Lakáshitel kalkulátor – Spórolj velünk!
Kalkulálj most, és keresd pénzügyi szakértőinket, akik ingyenes tanácsadással segítenek megtalálni a számodra legjobb megoldást!

Hasonló ingatlanok

8297 Tapolca Tapolca, Fő út

HZ045048 | 4 szoba | 125 m²
49 000 000 Ft

8300 Tapolca

H502126 | 4 szoba | 212 m²
94 900 000 Ft

8300 Tapolca

H506850 | 4 szoba | 120 m²
139 000 000 Ft

8300 Tapolca kertvárosban

HZ082856 | 4 szoba | 92 m²
116 000 000 Ft

8300 Tapolca kétszintes családiház

HZ017927 | 5 szoba | 140 m²
93 000 000 Ft

8300 Tapolca

H510526 | 210 m²
59 900 000 Ft

8297 Tapolca

H513021 | 3 szoba | 80 m²
49 900 000 Ft

8297 Tapolca

H513485 | 2 szoba | 150 m²
229 000 000 Ft

8300 Tapolca

H514604 | 3 szoba | 90 m²
79 900 000 Ft

8300 Tapolca

H514572 | 3 szoba | 90 m²
42 900 000 Ft

8297 Tapolca

NY013056 | 30 m²
16 900 000 Ft

8300 Tapolca

H512847 | 4 szoba | 109 m²
64 900 000 Ft

8300 Tapolca

H515655 | 2 szoba | 85 m²
33 900 000 Ft
Orbán-Timár Kata
Értékesítő
Kapcsolatfelvétel
Hívom
Kapcsolatfelvétel
Kérjen egy személyes megtekintést az ingatlanra a Duna House értékesítőjétől
Válassz egy időpontot