.
Eladó Lakás 1188 Budapest 18. kerület
H514421
Eladó
Lakás
Prémium
135 000 000 Ft
1188 Budapest 18. kerület
3 szoba
127 m²
Tégla
Törlesztőrészlet Ft/hó
THM %
5 megtekintés az elmúlt 7 napban
Leírás
Egyedi lehetőség a 18.kerületben.

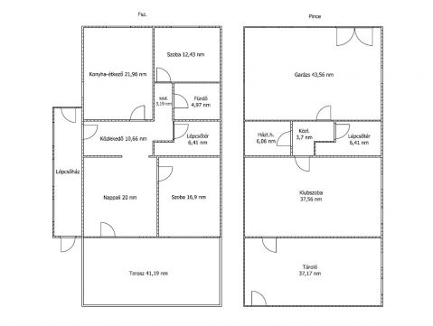
Eladó a 18.kerületben, Erdőskert városrészben egy 117 nm-es fsz-i lakás, 500 nm-es kertrésszel, garázzsal, tárolóval, klupszobával. A lakás egy eredetileg 2000-ben stabil alapokra épült, és 2018-ban teljesen felújított családi ház földszintjén helyezkedik el, melyhez pinceszint is tartozik. A ház, engedéyezési eljárás alapján, egy zárt lépcsőház megépítésével 2 lakásos lakóépületté alakul, külön bejáratokkal, külön gépkocsi beállókkal, külön mérőórákkal, kizárólagos használatú kertrésszel, melyek használatát ügyvédi használati megállapodás biztosítja. A jelen hirdetésben szereplő "A" lakás 97 nm-es lakószintje nappalival, étkező-konyhával, előszobával, fürdővel és 2 hálószobával rendelkezik, valamint egy 41 nm-es terasszal. Pincéjében egy 43 nm-es garázs, háztartási helyiség, és egy 37,5 nm-es klubszoba is helyet kapott. Az 500 nm-es saját kert előkertet és nagy kiterjedésű intim hátsó kertet is biztosít. Az épület szigetelt, a nyílászárók műanyagok, a fűtést gáz cirkó biztosítja. A konyha gépesített, a hűvösért klíma, a biztonságért riasztó felel.
Ne hagyja ki, szép környezet, lakás, kert, terasz, pince, garázs...
Az átalakítás befejezése és a közművek szétválasztása miatt, birtokba adása 2026-07. hótól lehetséges.
Az energetikai tanúsítvány készítése folyamatban van, amint rendelkezésre áll, úgy azzal a hirdetés frissítésre kerül.

Ha felkeltettem érdeklődését, várom hívását!
Mutass többet
Általános adatok
Ingatlan állapota:
5 - Nagyon jó
Építés éve:
2000
Emelet:
Földszint
Emeletek száma:
2
Lift:
Nincs Lift
Épület külső állapota:
5 - Nagyon jó
Épület belső állapota:
5 - Nagyon jó
Fényviszonyok:
Nincs megadva
Parkolás:
Nincs
Erkély/Terasz:
Van
Nézet:
Nincs megadva
Tájolás:
DNY
Fűtés:
Gáz cirkó
Energetikai besorolás:
Nincs megadva
Lakáshitel kalkulátor – Spórolj velünk!
Kalkulálj most, és keresd pénzügyi szakértőinket, akik ingyenes tanácsadással segítenek megtalálni a számodra legjobb megoldást!

Hasonló ingatlanok

1181 Budapest 18. kerület

LK073727 | 3 szoba | 72 m²
98 000 000 Ft

1182 Budapest 18. kerület Budapest Brassó u

LK033742 | 4 szoba | 78 m²
69 900 000 Ft

1184 Budapest 18. kerület Lakatostelep szívében, 8. emeleti napfényes lakás

LK012371 | 2 szoba | 56 m²
57 500 000 Ft

1185 Budapest 18. kerület SZEMERETELEPEN – 3 lakásos modern sorház lakásai

HZ045831 | 4 szoba | 126 m²
139 900 000 Ft

1181 Budapest 18. kerület Újépítésű erkélyes lakás, tárolóval és saját kocsi beállóval

LK040299 | 3 szoba | 86 m²
89 900 000 Ft

1181 Budapest 18. kerület Újépítésű erkélyes lakás, tárolóval és saját kocsi beállóval

LK054457 | 2 szoba | 86 m²
86 900 000 Ft

1181 Budapest 18. kerület Újépítésű erkélyes lakás, tárolóval és saját kocsi beállóval

LK012200 | 3 szoba | 77 m²
93 900 000 Ft

1181 Budapest 18. kerület Újépítésű erkélyes lakás, tárolóval és saját kocsi beállóval

LK040622 | 3 szoba | 77 m²
93 900 000 Ft

1181 Budapest 18. kerület Újépítésű erkélyes lakás, tárolóval és saját kocsi beállóval

LK037940 | 3 szoba | 70 m²
86 900 000 Ft

1182 Budapest 18. kerület

LK011761 | 4 szoba | 90 m²
94 990 000 Ft

1183 Budapest 18. kerület

H507600 | 3 szoba | 75 m²
84 900 000 Ft

1183 Budapest 18. kerület Kertvárosi környezet, azonnal költözhető családi otthon!

HZ046022 | 5 szoba | 235 m²
169 900 000 Ft

1183 Budapest 18. kerület

H507301 | 3 szoba | 60 m²
62 900 000 Ft

1182 Budapest 18. kerület Bókay-Kert Szívében

LK026935 | 6 szoba | 336 m²
190 000 000 Ft

1182 Budapest 18. kerület Bókay-Kert szívében

LK025747 | 3 szoba | 135 m²
100 000 000 Ft

1188 Budapest 18. kerület TERVEZD MEG SAJÁT OTTHONOD – TELJES FELÚJÍTÁS ALATT ÁLLÓ HÁZ

HZ066383 | 4 szoba | 90 m²
99 900 000 Ft

1188 Budapest 18. kerület Lakóparki környezetben!

HZ014989 | 4 szoba | 81 m²
125 000 000 Ft

1188 Budapest 18. kerület Társasház, Saját kerttel

LK054760 | 4 szoba | 140 m²
159 000 000 Ft

1183 Budapest 18. kerület Lónyaytelep, lakóparki környezet!

LK083006 | 2 szoba | 44 m²
71 200 000 Ft

1184 Budapest 18. kerület PARKOLÓVAL Panorámás, 3 szobás lakás Lónyaitelepen

LK063879 | 3 szoba | 63 m²
67 000 000 Ft
Mosonyi Judit
Értékesítő
Kapcsolatfelvétel
Hívom
Kapcsolatfelvétel
Kérjen egy személyes megtekintést az ingatlanra a Duna House értékesítőjétől
Válassz egy időpontot