.
Eladó Lakás 2120 Dunakeszi
H512769
Eladó
Lakás
Prémium
84 800 000 Ft
2120 Dunakeszi
3 szoba
66 m²
Tégla
Törlesztőrészlet Ft/hó
THM %
27 megtekintés az elmúlt 7 napban
Leírás
Igényesen kialakított, azonnal költözhető erkélyes lakás eladó Dunakeszin!
Dunakeszi kedvelt, frekventált részén, a Tábor utcában kínálunk 66 m² nettó (74 m² bruttó) alapterületű, 2 szoba + nappalis, kiváló állapotú lakást kis erkéllyel és saját, 4 m²-es tárolóval.
A lakás műszakilag és esztétikailag is kifogástalan:
•3 fázisú áram (1×16 A + 2×20 A)
•Saját Baxi turbós gázkazán, egyedi mérővel, alacsony fenntartási költség (kb. 70 m³/hó)
•Napfényes szobákban új, 3 rétegű Velux ablakok, belső és külső árnyékolókkal
•Energiatakarékos klíma
•Beépített szekrények
•igényes minőségi burkolatok
•Új, gépesített IKEA konyhabútor (mosogatógép, hűtő – minden marad)

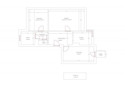
•Helyiségek:
• konyha 6,53
•étkező 8,69
•szoba1 13
•szoba 2 7,7
•nappali 17,15
•fürdő 4,58

A társasház rendezett, zárt, gondozott belső kerttel rendelkezik, 1 autó számára beállási lehetőséggel. A saját tároló villannyal ellátott, praktikus megoldás a mindennapokra.
Környék és infrastruktúra:
A környék biztonságos és élhető, parkokkal, játszóterekkel, sportolási lehetőségekkel. Óvoda, iskola, orvosi rendelő, gyógyszertár, üzletek pár percen belül elérhetők, a vasútállomás kb. 10 perc sétára, így a budapesti közlekedés gyors és kényelmes. Továbbá autóval az M2-es 5-8 percre van a lakástól, ami megkönnyíti a bejárást a belváros irányába.
CSOK, Babaváró és Otthon Start igényelhető.
Tehermentes, akár 1 hónapon belül birtokba vehető a lakás.
A sürgős eladás miatt ne habozzon keressen telefonon a mielőbbi megtekintés kapcsán. –
Ne hagyja ki ezt a kiváló lehetőséget saját részre vagy befektetésnek!
Mutass többet
Általános adatok
Ingatlan állapota:
4 - Jó
Építés éve:
2002
Emelet:
2
Emeletek száma:
1
Lift:
Nincs Lift
Épület külső állapota:
4 - Jó
Épület belső állapota:
4 - Jó
Fényviszonyok:
Nincs megadva
Parkolás:
Nincs
Erkély/Terasz:
Van
Nézet:
Utca
Tájolás:
D
Fűtés:
Gáz cirkó
Energetikai besorolás:
BB
Lakáshitel kalkulátor – Spórolj velünk!
Kalkulálj most, és keresd pénzügyi szakértőinket, akik ingyenes tanácsadással segítenek megtalálni a számodra legjobb megoldást!

Hasonló ingatlanok

2120 Dunakeszi 3 szobás felújított házrész

LK031288 | 3 szoba | 63 m²
32 900 000 Ft

2120 Dunakeszi

LK029692 | 2 szoba | 51 m²
57 900 000 Ft

2120 Dunakeszi

HZ040609 | 3 szoba | 72 m²
59 900 000 Ft

2120 Dunakeszi

H508784 | 2 szoba | 56 m²
64 900 000 Ft

2120 Dunakeszi FELÚJÍTOTT 1 emeleti 53nm lakás, tárolóval

LK078259 | 2 szoba | 53 m²
76 000 000 Ft

2120 Dunakeszi

H510225 | 3 szoba | 63 m²
73 000 000 Ft

2120 Dunakeszi

H510390 | 2 szoba | 48 m²
73 990 000 Ft

2120 Dunakeszi

H510651 | 4 szoba | 74 m²
99 950 000 Ft

2120 Dunakeszi

H510667 | 3 szoba | 66 m²
62 990 000 Ft

2120 Dunakeszi Állomás sétány

LK034881 | 3 szoba | 82 m²
100 000 000 Ft

2120 Dunakeszi

H511768 | 3 szoba | 71 m²
73 900 000 Ft

2120 Dunakeszi

LK068728 | 1 szoba | 30 m²
38 000 000 Ft

2120 Dunakeszi

LK099538 | 3 szoba | 95 m²
93 900 000 Ft

2120 Dunakeszi 2120 Dunakeszi, Toldi lakópark

M321249 | 4 szoba | 69 m²
85 000 000 Ft

2120 Dunakeszi

LK055470 | 3 szoba | 63 m²
85 000 000 Ft

2120 Dunakeszi

LK089261 | 3 szoba | 71 m²
73 500 000 Ft

2120 Dunakeszi Alag Liget lakópark

LK080796 | 4 szoba | 75 m²
94 900 000 Ft

2120 Dunakeszi

H513561 | 4 szoba | 95 m²
107 000 000 Ft
Tisza Levente
Platina fokozatú értékesítő
Kapcsolatfelvétel
Hívom
Kapcsolatfelvétel
Kérjen egy személyes megtekintést az ingatlanra a Duna House értékesítőjétől
Válassz egy időpontot