.
Eladó Lakás 8623 Balatonföldvár
54 900 000 Ft
8623 Balatonföldvár
2 szoba
49 m²
Tégla
Törlesztőrészlet Ft/hó
THM %
7 megtekintés az elmúlt 7 napban
Leírás
Eladó lakás saját udvarral BALATONFÖLDVÁRON 1 km-re a strandtól

Balatonföldváron, a Keleti strandtól mindössze 1 km-re, csendes, átmenő forgalomtól mentes utcában kínálunk megvételre egy 2 lakásos családi házban kialakított,
teljesen szeparált lakást saját udvarrésszel és külön nyári lakrésszel.

Az ingatlan ideális választás állandó lakhatásra, nyaralónak vagy befektetésnek is.

FŐBB ADATOK:
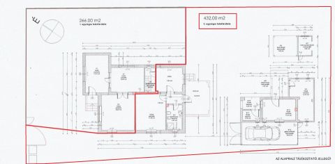
*Lakás: 49 m²
*Nyári lakrész: 26 m²
*Fedett terasz
*Garázs: 20 m²
*Fedett szaletli
*Kerti tároló
*Telek: 432 m² (leválasztott, kizárólagos használatú)

AZ ÉPÜLET JELLEMZŐI:
*2 lakásos családi ház, társasházzá alakítva
*Teljesen elkülönített udvar, külön kertbejárattal
*A közös fal hangszigeteléssel ellátott
*Kétrétegű műanyag nyílászárók, szúnyoghálóval és redőnnyel
*Födém kőzetgyapot szigeteléssel
*Teljes közműellátottság
*Külön mérőórák
*Melegvíz: villanybojler
*Fűtés: gázkonvektor, hűtő-fűtő klíma, elektromos fűtőpanel
*Ügyvéd által ellenjegyzett társasházi alapító okirat, használati megosztással

LAKÁS ELOSZTÁSA:
*2 szoba
*Konyha étkezővel
*Közlekedő
*Fürdőszoba WC-vel

NYÁRI LAKRÉSZ:
*2 szoba
*Fürdőszoba WC-vel
*Fedett terasz + terasz
*A nyári lakrészt korábban nyaraltatásra hasznosították, bejáratott vendégkörrel kiváló befektetési lehetőség!

GARÁZS
*Egy autó és akár plusz egy motor is kényelmesen elfér

ELHELYEZKEDÉS:
*Keleti strand: 1 km
*Bevásárlóközpont: 600 m
*Vasútállomás: 1,7 km

ÖSSZEGZÉS:
*Saját udvar
*Külön nyári lakrész extra bevételi lehetőség
*Csendes utca
*Strand közelsége
*Rendezett jogi háttér

Érdeklődjön bizalommal, és tekintse meg ezt a sokoldalúan hasznosítható balatonföldvári ingatlant!
Mutass többet
Általános adatok
Ingatlan állapota:
3 - Lakható
Építés éve:
1961
Emelet:
Földszint
Emeletek száma:
0
Lift:
Nincs Lift
Épület külső állapota:
3 - Lakható
Épület belső állapota:
3 - Lakható
Fényviszonyok:
Nincs megadva
Parkolás:
Nincs
Erkély/Terasz:
Nincs
Nézet:
Nincs megadva
Tájolás:
DNY
Fűtés:
Gázkonvektor
Energetikai besorolás:
Nincs megadva
Lakáshitel kalkulátor – Spórolj velünk!
Kalkulálj most, és keresd pénzügyi szakértőinket, akik ingyenes tanácsadással segítenek megtalálni a számodra legjobb megoldást!

Hasonló ingatlanok

8623 Balatonföldvár A Völgyhíd vonzáskörzetében

PR019750/LK/20625 | 3 szoba | 55 m²
58 000 000 Ft

8623 Balatonföldvár A Völgyhíd vonzáskörzetében

PR019750/LK/20628 | 4 szoba | 89 m²
89 000 000 Ft

8623 Balatonföldvár Új parcellázású lakóövezetben, luxus lakás saját kertrésszel

LK086929 | 4 szoba | 88 m²
98 900 000 Ft

8623 Balatonföldvár

NY012817 | 2 szoba | 40 m²
79 000 000 Ft

8623 Balatonföldvár

LK017032 | 2 szoba | 47 m²
54 900 000 Ft

8623 Balatonföldvár Balatonföldváron felújított, első emeleti, tégla lakás eladó

LK057979 | 3 szoba | 63 m²
69 900 000 Ft

8623 Balatonföldvár

NY013159 | 2 szoba | 29 m²
29 900 000 Ft

8623 Balatonföldvár A Völgyhíd vonzáskörzetében

PR019750/LK/20626 | 4 szoba | 99 m²
83 000 000 Ft

8623 Balatonföldvár A Völgyhíd vonzáskörzetében

PR019750/LK/20627 | 4 szoba | 99 m²
85 000 000 Ft

8623 Balatonföldvár új parcellázású lakóövezetben, luxus lakás saját kertrésszel

LK048453 | 4 szoba | 86 m²
118 900 000 Ft

8623 Balatonföldvár új parcellázású lakóövezet, prémium lakás saját kertrésszel

LK037682 | 4 szoba | 86 m²
118 900 000 Ft

8623 Balatonföldvár

LK014548 | 3 szoba | 82 m²
199 000 000 Ft

8623 Balatonföldvár Medencés Luxus Nagy Lakás

LK094828 | 4 szoba | 86 m²
169 000 000 Ft

8623 Balatonföldvár

H513496 | 3 szoba | 77 m²
129 900 000 Ft
Bánáti András
Örökös tag franchise partner
Kapcsolatfelvétel
Hívom
Kapcsolatfelvétel
Kérjen egy személyes megtekintést az ingatlanra a Duna House értékesítőjétől
Válassz egy időpontot