.
Eladó Ház 2230 Gyömrő
H511696
Eladó
Családi ház
Prémium
99 000 000 Ft
2230 Gyömrő
4 szoba
125 m²
1173 m² telek
Törlesztőrészlet Ft/hó
THM %
17 megtekintés az elmúlt 7 napban
Leírás
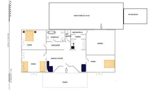
Gyömrő egyik legjobb helyén eladó egy földszintes, nappali plusz 3 szobás, dupla garázsos családi ház nagy telekkel.
Az ingatlan: egy csaknem 1200 nm-es, összközműves, parkosított telek és a rajta álló 142 nm -es, cseréptetős ház.(és még sokminden más is)
A telken álló, többségében örökzöld fákat és bokrokat, még az első, kertészmérnök tulajdonos ültette.. -fúrt kút is rendelkezésre áll!
A főépületen kívül, van egy nettó 15 nm -es kis téglaház is amely jelenleg tárolóként működik, ezenkívül egy kerti grillsütőhely szaletli is.
A falazat 40 cm-es ytong tégla plusz 5 cm dryvit szigetelés, a fűtés és a melegvíz előállítása Vailant gáz-cirkó kazánról történik, mindenhol van padlófűtés, sőt a szobákban még radiátor is, a nyílászárók közül az ablakok hőszigetelt üvegezésűek és a ház jellegéhez megfelelően fából készültek, a hűtéshez minden helyiségben légkondcionáló került felszerelésre.
Az utcáról egy távirányítású kapun juthatunk be egy térburkolattal ellátott 50 nm-es!!, polkarbonát tetővel fedett részre, innen megközelíthető egy 10 nm-es pince és
ugyancsak itt tudunk behajtani a kétállásos, fűtött, 26 nm-es garázsba is.(amelyből pedig bevásárlást követően praktikusan megközelíthető a ház kamrája, illetve konyhája)
A lakás jó tájolású, kompakt, világos, energetikailag is jó, 3 nagy méretű szoba (16,18 és 19 nm)konyha, fürdőszoba-wc, külön wc és mosdó, közlekedő, kamra, háztartási helyiségekből áll.
Az ingatlan az autópályák és Budapest közelségében, jó megközelíthető helyen fekszik, a városon belüli megközelíthetősége akár gyalogosan is kiváló.
A környék kertvárosi, csendes és zöld, a kert hatalmas, az ingatlan biztonságát speciális risztók és érzékelők is fokozzák.
Gyalogosan is gyorsan, 10-12 percen belül elérhető: Óvoda, Iskola, Gimnázium, Művelődési ház, Vasút állomás, Orvosi rendelő, Tófürdő, Városháza, Szabadság-Tér.
Mutass többet
Általános adatok
Építés éve:
2003
Belső szintek száma:
Nincs megadva
Épület külső állapota:
4 - Jó
Épület belső állapota:
4 - Jó
Fényviszonyok:
Nincs megadva
Nézet:
Nincs megadva
Fűtés:
Gáz cirkó
Szerkezet:
Tégla
Energetikai besorolás:
Nincs megadva
Víz:
Telken belül
Gáz:
Telken belül
Villany:
Telken belül
Csatorna:
Telken belül
Lakáshitel kalkulátor – Spórolj velünk!
Kalkulálj most, és keresd pénzügyi szakértőinket, akik ingyenes tanácsadással segítenek megtalálni a számodra legjobb megoldást!

Hasonló ingatlanok

2230 Gyömrő

HZ090189 | 1 szoba | 40 m²
18 000 000 Ft

2230 Gyömrő

HZ040190 | 4 szoba | 115 m²
105 500 000 Ft

2230 Gyömrő Családi ház Gyömrői-tó Közelében

HZ045649 | 5 szoba | 170 m²
104 500 000 Ft

2230 Gyömrő Kastélydombi lakóparkban eladó emeleti lakás

LK026782 | 4 szoba | 86 m²
94 000 000 Ft

2230 Gyömrő Kastélydomb lakóparkban eladó családi ház

HZ070813 | 4 szoba | 93 m²
108 000 000 Ft

2230 Gyömrő Petőfi telep

HZ032885 | 3 szoba | 76 m²
79 900 000 Ft

2230 Gyömrő Nefelejcs -Wekerle

HZ031314 | 5 szoba | 158 m²
89 900 000 Ft

2230 Gyömrő Klotildtelep

HZ062936 | 5 szoba | 180 m²
109 900 000 Ft

2230 Gyömrő

H504659 | 3 szoba | 54 m²
64 900 000 Ft

2230 Gyömrő

H506302 | 4 szoba | 114 m²
54 000 000 Ft

2230 Gyömrő

TK048278 | 3783 m²
89 900 000 Ft

2230 Gyömrő Gyömrő Erzsébettelep

TK068849 | 1325 m²
52 000 000 Ft

2230 Gyömrő

TK069270 | 2000 m²
10 000 000 Ft

2230 Gyömrő 1653 nm-es építési telek ami akkár két küln HRSZ-ra osztható

TK029410 | 1653 m²
89 900 000 Ft

2230 Gyömrő Madárcsicsergős utca

HZ072690 | 3 szoba | 108 m²
42 000 000 Ft

2230 Gyömrő Üllői út környéki

HZ065670 | 2 szoba | 745 m²
39 000 000 Ft

2230 Gyömrő szent István 25 Gyömrő

HZ055448 | 5 szoba | 166 m²
103 900 000 Ft

2230 Gyömrő Liget lakópark szomszédságában KÉTGENERÁCIÓS családi ház!

HZ052983 | 6 szoba | 110 m²
149 000 000 Ft

2230 Gyömrő Tőzeges- tó közelében

HZ022751 | 4 szoba | 117 m²
119 000 000 Ft

2230 Gyömrő

HZ079311 | 5 szoba | 149 m²
85 900 000 Ft
Aczél Adrienn
Platina fokozatú csoportvezető
Kapcsolatfelvétel
Hívom
Kapcsolatfelvétel
Kérjen egy személyes megtekintést az ingatlanra a Duna House értékesítőjétől
Válassz egy időpontot