.
Eladó Ház 2094 Nagykovácsi
H511158
Eladó
Családi ház
Prémium
292 000 000 Ft
2094 Nagykovácsi
7 szoba
209 m²
987 m² telek
Törlesztőrészlet Ft/hó
THM %
5 megtekintés az elmúlt 7 napban
Leírás
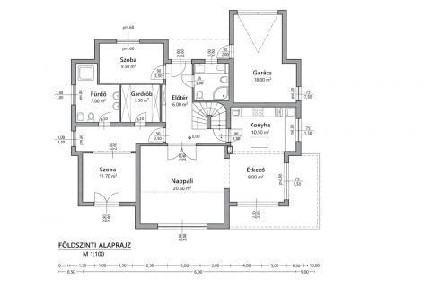
Pest vármegyében, Nagykovácsi egyik keresett, nyugodt lakóövezetében kínálunk megvételre egy 209 m² hasznos alapterületű, korszerű kialakítású családi házat, 987 m²-es, parkosított telken. Az ingatlan kiváló választás nagycsaládosok, többgenerációs együttélésben gondolkodók vagy otthoni munkavégzéshez tágas életteret igénylők számára.

Ingatlan paraméterei:
2 nappali, 5 külön nyíló hálószoba, 3 fürdőszoba, 32,2 m²-es, kertkapcsolatos terasz, 16 m²-es és 11,5 m²-es erkély, déli tájolás, tehermentes jogi státusz.

Elrendezés és belső kialakítás:
A ház átgondolt alaprajzi struktúrával rendelkezik. A két nappali elkülöníthető funkciókat tesz lehetővé: reprezentatív fogadótér, családi élettér, dolgozószoba vagy hobbihelyiség egyaránt kialakítható. Az amerikai konyhás nappali tágas, természetes fénnyel bőségesen ellátott, közvetlen kapcsolatban áll a terasszal és a kerttel. A hálószobák szeparáltan helyezkednek el, biztosítva az intimitást és a zavartalan pihenést. A három fürdőszoba kényelmes használatot garantál akár nagyobb létszámú család számára is.
A déli fekvésnek köszönhetően a lakóterek egész nap világosak, energiahatékonysági szempontból is kedvező adottságúak.

Műszaki tartalom: gáz cirkó fűtési rendszer, split klímaberendezés, jó műszaki és esztétikai állapot.

Külső terek:
A gondozott, intim kert ideális gyermekes családok számára, valamint szabadtéri pihenésre, kerti rendezvényekre. A terasz és a két erkély további használható életteret biztosít, panorámás kilátással a zöld környezetre.
Mutass többet
Általános adatok
Építés éve:
2010
Belső szintek száma:
Nincs megadva
Épület külső állapota:
4 - Jó
Épület belső állapota:
4 - Jó
Fényviszonyok:
Nincs megadva
Nézet:
Panoráma
Fűtés:
Gáz cirkó
Szerkezet:
Tégla
Energetikai besorolás:
Nincs megadva
Víz:
Telken belül
Gáz:
Telken belül
Villany:
Telken belül
Csatorna:
Telken belül
Lakáshitel kalkulátor – Spórolj velünk!
Kalkulálj most, és keresd pénzügyi szakértőinket, akik ingyenes tanácsadással segítenek megtalálni a számodra legjobb megoldást!

Hasonló ingatlanok

2094 Nagykovácsi Legszebb részén

HZ084995 | 7 szoba | 296 m²
395 000 000 Ft

2094 Nagykovácsi

HZ053923 | 5 szoba | 240 m²
279 000 000 Ft

2094 Nagykovácsi Lokáció - Természet - Minőség - Nagykovácsi legcsendesebb utcájában eladó modern családi ház.

HZ052121 | 4 szoba | 168 m²
244 900 000 Ft

2094 Nagykovácsi

HZ054056 | 7 szoba | 248 m²
219 000 000 Ft

2094 Nagykovácsi LUXUS családi ház gyönyörű környezetben

HZ030672 | 7 szoba | 243 m²
458 000 000 Ft

2094 Nagykovácsi ÚJ építésű kis lakóközösségű lakópark Nagykovácsi központjáb

HZ046354 | 6 szoba | 176 m²
255 000 000 Ft

2094 Nagykovácsi ÚJ építésű kis lakóközösségű lakópark Nagykovácsi központjában

HZ060956 | 5 szoba | 176 m²
255 000 000 Ft

2094 Nagykovácsi

HZ074805 | 2 szoba | 55 m²
68 000 000 Ft

2094 Nagykovácsi ÚJ építésű kis lakóközösségű lakópark Nagykovácsi központjáb

HZ047390 | 6 szoba | 176 m²
255 000 000 Ft

2094 Nagykovácsi ÚJ építésű kis lakóközösségű lakópark Nagykovácsi központjáb

HZ026379 | 6 szoba | 176 m²
255 000 000 Ft

2094 Nagykovácsi Nagykovácsiban eladó ház nagy telekkel

HZ526790 | 11 szoba | 470 m²
550 000 000 Ft

2094 Nagykovácsi Nagykovácsiban eladó modern, energiatakarékos családi ház

HZ072837 | 5 szoba | 200 m²
219 000 000 Ft

2094 Nagykovácsi

HZ017319 | 7 szoba | 296 m²
339 000 000 Ft

2094 Nagykovácsi ÚJ ÉPÍTÉSŰ IKERHÁZ - LINUM UDVARTÓL SÉTATÁVOLSÁGRA

HZ071358 | 5 szoba | 163 m²
250 000 000 Ft

2094 Nagykovácsi ÚJ ÉPÍTÉSŰ IKERHÁZ-LINUM UDVARTÓL SÉTA TÁVOLSÁGRA

HZ013548 | 5 szoba | 146 m²
230 000 000 Ft

2094 Nagykovácsi

HZ081321 | 3 szoba | 80 m²
189 000 000 Ft

2094 Nagykovácsi Nagykovácsi

HZ074317 | 8 szoba | 250 m²
139 000 000 Ft

2094 Nagykovácsi

HZ096789 | 5 szoba | 219 m²
156 000 000 Ft

2094 Nagykovácsi

HZ502721 | 4 szoba | 175 m²
235 410 000 Ft

2094 Nagykovácsi Nagykovácsiban, 280 nm nagyságú önálló családiház eladó!

HZ094848 | 7 szoba | 280 m²
198 000 000 Ft
Domjánné Puskás Margit
Örökös tag franchise partner
Kapcsolatfelvétel
Hívom
Kapcsolatfelvétel
Kérjen egy személyes megtekintést az ingatlanra a Duna House értékesítőjétől
Válassz egy időpontot