.
Eladó Ház 2330 Dunaharaszti
H510482
Eladó
Családi ház
Áresés
119 000 000 Ft
2330 Dunaharaszti
10 szoba
440 m²
756 m² telek
Törlesztőrészlet Ft/hó
THM %
13 megtekintés az elmúlt 7 napban
Leírás
Vállalkozásnak, irodának, orvosi rendelőnek, magán óvodának vagy bölcsődének, esetleg panziónak vagy egyszerűen csak összeköltöző nagy családnak megfelelő, impozáns, nagy méretű eladó családi ház Dunaharaszti csendesebb részén.
A ház átalakítással alkalmas két külön lakás kialakítására is.

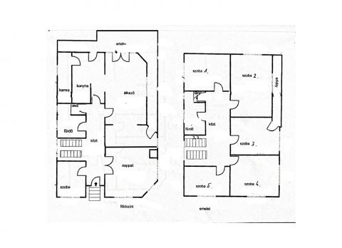
Budapesthez közel Dunaharaszti óvárosi, csendes részén eladó egy összesen nettó 440 m2 alapterületű, 3 szintes, 8 szoba plusz nappalis, egyedi tervek alapján épült, tágas terekkel rendelkező családi ház, 756 m2-es telken.
A ház a 90-es évek közepén épült, tégla építésű, betonalapon, betonfödémmel, cserépfedéssel.
A földszinten a nyílászárók új műanyagokra lettek cserélve, csakúgy, mint a belső lépcsőházban 6-8 méter magasságban, a pincétől a padlásig végigfutó szintén műanyag ablakok. A többi szinten a nyílászárók fából készültek.
A földszinten 2 hálószoba - az egyikben egy működő márvány kandallóval -, fürdőszoba, külön WC, a konyha, kamra és egy nagy nappali-étkező található, ahonnan ki tudunk jutni a medencés kertre néző L-alakú teraszra.
Az emeleten 5 szobát, amiből kettő jelen pillanatban csak tárolásra van használva, egy modern stílusban felújított zuhanyzós fürdőszobát és egy konyhának előkészített a későbbiek során befejezésre váró helyiséget alakítottak ki.
A tetőtérben újabb két szoba található.
Az egész épület alatt lett kialakítva a belső házból is a lépcsőházon keresztül és a kertből is elérhető szuterén részben 3 autó beállásához megfelelő garázs, két nagyobb tároló és a másik, a kiegészítő fűtésként használható vegyes tüzelésű kazánt és a hozzá tartozó 500 l-es puffertartályt tartalmazó helyiség. A garázsban ipari áram is van.
A ház alapfűtését egy nagy teljesítményű, Hajdú gázcirkó biztosítja, ehhez jön még hozzá kiegészítésként a vegyes-tüzelésű kazán és a márványkandalló.
A parkosított kertben medence és napozóterasz is megtalálható.
A ház, elrendezése miatt, akár két lakásra is osztható.
Az ingatlan tehermentes.
A környék csendes, rendezett, a Duna-part pár perces sétával elérhető.
Alapjában egy egyedi tervek alapján épült impozáns megjelenésű ház.
Ajánlom azoknak, akik összeköltöznének egy nagyon tágas terekkel rendelkező házba, nagycsaládosoknak, vagy vállalkozás működtetésére, irodáknak, orvosi rendelőnek, magán óvodának-bölcsődének, panziónak, illetve a kiváló ár-érték arány miatt befektetésnek is kiváló lehetőség, hiszen kisebb átalakítással akár két külön lakás is kialakítható belőle.
Ha felkeltettem érdeklődést kérem hívjon és szívesen bemutatom.
#otthon #orvosirendelő #magánóvoda #magánbölcsőde #iroda #vállalkozás #többgenerációs #csend #nyugalom #kétlakássáalakításlehetősége
Mutass többet
Általános adatok
Építés éve:
1975
Belső szintek száma:
Nincs megadva
Épület külső állapota:
3 - Lakható
Épület belső állapota:
3 - Lakható
Fényviszonyok:
Nincs megadva
Nézet:
Nincs megadva
Fűtés:
Gáz cirkó
Szerkezet:
Tégla
Energetikai besorolás:
Nincs megadva
Víz:
Telken belül
Gáz:
Telken belül
Villany:
Telken belül
Csatorna:
Telken belül
Lakáshitel kalkulátor – Spórolj velünk!
Kalkulálj most, és keresd pénzügyi szakértőinket, akik ingyenes tanácsadással segítenek megtalálni a számodra legjobb megoldást!

Hasonló ingatlanok

2330 Dunaharaszti

VL067860 | 20 szoba | 489 m²
199 900 000 Ft

2330 Dunaharaszti Több generációnak, vagy üzleti célra is kiválóan alkalmas, NAGY HÁZ, Dunaharaszti Alsó közelében

HZ084360 | 9 szoba | 400 m²
129 000 000 Ft

2330 Dunaharaszti

HZ049504 | 4 szoba | 163 m²
165 000 000 Ft

2330 Dunaharaszti

HZ035146 | 4 szoba | 163 m²
165 000 000 Ft

2330 Dunaharaszti

HZ017245 | 5 szoba | 230 m²
159 000 000 Ft

2330 Dunaharaszti Rákóczi ligethez közel

HZ019201 | 6 szoba | 80 m²
89 000 000 Ft

2330 Dunaharaszti Baktay Tér közelében

HZ098189 | 6 szoba | 260 m²
150 000 000 Ft

2330 Dunaharaszti Rákócziligeten, nagycsaládosoknak, befektetőknek, több lakássá is alakítható

HZ054856 | 6 szoba | 300 m²
109 000 000 Ft

2330 Dunaharaszti Rákócziliget

HZ086284 | 6 szoba | 300 m²
110 000 000 Ft

2330 Dunaharaszti

HZ045319 | 7 szoba | 200 m²
149 900 000 Ft

2330 Dunaharaszti Bezerédi-lakópark

HZ088962 | 4 szoba | 92 m²
137 500 000 Ft

2330 Dunaharaszti Eladó többgenerációs önálló Családi ház nagy telekkel Dunah

HZ085947 | 7 szoba | 242 m²
109 900 000 Ft

2330 Dunaharaszti Dunaharaszti Alsóvárosban, csendes utcában

HZ023187 | 4 szoba | 142 m²
106 000 000 Ft

2330 Dunaharaszti Teljeskörűen felújított 96 nm ház, 257 nm telken eladó!

HZ031928 | 4 szoba | 106 m²
77 900 000 Ft

2330 Dunaharaszti Dunaharaszti legmagasabb helyén, Felső Hév megállóhoz közel

HZ030801 | 6 szoba | 170 m²
145 000 000 Ft

2330 Dunaharaszti Dunaharasztin házrész eladó.Kiadásra is alkalmas.

HZ040255 | 2 szoba | 27 m²
23 900 000 Ft

2330 Dunaharaszti Csendes környék

HZ094217 | 4 szoba | 140 m²
109 900 000 Ft

2330 Dunaharaszti Bezerédi lakóparkban újépítésű sorházi lakások

HZ093272 | 4 szoba | 81 m²
94 900 000 Ft

2330 Dunaharaszti Bezerédi lakóparkban újépítésű sorházi lakások/4-es lakás

HZ063903 | 4 szoba | 81 m²
94 900 000 Ft

2330 Dunaharaszti

H499292 | 4 szoba | 295 m²
245 000 000 Ft
Hegedűs Tamás
Arany fokozatú csoportvezető
Kapcsolatfelvétel
Hívom
Kapcsolatfelvétel
Kérjen egy személyes megtekintést az ingatlanra a Duna House értékesítőjétől
Válassz egy időpontot