.
Eladó Ház 5350 Tiszafüred
H509790
Eladó
Családi ház
Prémium
29 900 000 Ft
5350 Tiszafüred
4 szoba
130 m²
561 m² telek
Törlesztőrészlet Ft/hó
THM %
0 megtekintés az elmúlt 7 napban
Leírás
Az ingatlan Jász-Nagykun-Szolnok vármegye egyik legdinamikusabban fejlődő városában, Tiszafüred üdülőövezetében található, közel a szabadstrandhoz, de mégis csendes környéken.
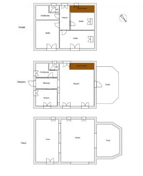
-A 130 m²-es, háromszintes épület egy 561 nm-es sarok telken helyezkedik el.
-Az ingatlan három szobát, nappalit, két fürdőszobát, két külön WC-t, konyhát tartalmaz.
-Az alagsorban gépkocsi tárolására alkalmas garázs, és bárminek kialakítható két pince helyiség kapott helyet.
-A téglaépítésű ház tető alatt, szerkezet kész állapotban van, a nyílászárók és a gépészeti elemek elhelyezésére van szükség.
- A villany és víz bevezétésre került, a csatorna és gáz csatlokása telken belül megoldható

A település turisztikai központként is egyre népszerűbb:
-Teljesen körbebiciklizhető Tisza-tó, új kerékpárút Poroszlóig
-Megújuló termálstrand, szabadvizi strand, kerékpáros központ
-Kiváló éttermek és szolgáltatások a közelben

További előnyök:
-Ingyenes, bankfüggetlen hitelközvetítés
-Hétvégén is elérhető értékesítési ügyelet!
Mutass többet
Általános adatok
Építés éve:
1999
Belső szintek száma:
Nincs megadva
Épület külső állapota:
2 - Felújítandó
Épület belső állapota:
2 - Felújítandó
Fényviszonyok:
Nincs megadva
Nézet:
Nincs megadva
Fűtés:
Egyéb
Szerkezet:
Tégla
Energetikai besorolás:
Nincs megadva
Víz:
Telken belül
Gáz:
Telken belül
Villany:
Telken belül
Csatorna:
Telken belül
Lakáshitel kalkulátor – Spórolj velünk!
Kalkulálj most, és keresd pénzügyi szakértőinket, akik ingyenes tanácsadással segítenek megtalálni a számodra legjobb megoldást!

Hasonló ingatlanok

5350 Tiszafüred

H497787 | 4 szoba | 98 m²
43 000 000 Ft

5350 Tiszafüred 5359 Tiszafüred, Csendes

M299463 | 2 szoba | 62 m²
30 000 000 Ft

5350 Tiszafüred 5359 Tiszafüred, Csendes

M299481 | 3 szoba | 109 m²
26 900 000 Ft

5350 Tiszafüred 5350 Tiszafüred, Csendes

M302873 | 1 szoba | 74 m²
17 000 000 Ft

5350 Tiszafüred

H501450 | 3 szoba | 86 m²
42 000 000 Ft

5350 Tiszafüred

H500842 | 2 szoba | 61 m²
29 500 000 Ft

5350 Tiszafüred

H502657 | 3 szoba | 88 m²
19 900 000 Ft

5350 Tiszafüred Tiszafüred, Tesco

HZ042322 | 3 szoba | 102 m²
36 600 000 Ft

5350 Tiszafüred Tiszafüred, Shell

HZ040808 | 3 szoba | 100 m²
31 400 000 Ft

5350 Tiszafüred Tiszafüred, Vasútállomás

HZ055174 | 4 szoba | 82 m²
37 000 000 Ft

5350 Tiszafüred

HZ094803 | 306 m²
34 000 000 Ft

5350 Tiszafüred Tiszafüred, Spar

HZ050951 | 3 szoba | 86 m²
56 000 000 Ft

5350 Tiszafüred

H504365 | 2 szoba | 55 m²
22 900 000 Ft

5350 Tiszafüred

H504458 | 10 szoba | 272 m²
49 900 000 Ft

5350 Tiszafüred Tiszafüred, Spar

HZ014519 | 2 szoba | 60 m²
23 500 000 Ft

5350 Tiszafüred Omv parkolo

HZ091862 | 3 szoba | 59 m²
31 500 000 Ft

5350 Tiszafüred Tiszafüred, Vasútállomás

HZ054226 | 2 szoba | 138 m²
28 000 000 Ft

5350 Tiszafüred

HZ016010 | 3 szoba | 90 m²
25 500 000 Ft

5350 Tiszafüred Piac tér

HZ086247 | 4 szoba | 120 m²
52 000 000 Ft

5358 Tiszafüred Tiszafüred_50m a part..

HZ045665 | 3 szoba | 230 m²
66 000 000 Ft
Gémesné Anikó
Ezüst fokozatú értékesítő
Kapcsolatfelvétel
Hívom
Kapcsolatfelvétel
Kérjen egy személyes megtekintést az ingatlanra a Duna House értékesítőjétől
Válassz egy időpontot