.
Eladó Lakás 1171 Budapest 17. kerület
H509035
Eladó
Lakás
Prémium
59 900 000 Ft
1171 Budapest 17. kerület
4 szoba
88 m²
Tégla
Törlesztőrészlet Ft/hó
THM %
30 megtekintés az elmúlt 7 napban
Leírás
Két egymás melletti kertes lakás Rákoscsabán eladó - összeköltözőknek is jó lehetőség
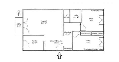
XVII. kerületben Rákoscsabán csendes mellékutcában kínálunk megvásárlásra egy földszinti, 88 nm-es lakást (jelenleg egy 40 nm-es és egy 48 nm-es külön bejáratú lakásból áll, de a két lakás könnyedén egybe nyitható) elkerített saját, összesen 290 nm-es kerttel, tárolóval. A telken egy kétszintes lakóépületben 3 lakás lett kialakítva, két földszinti és egy emeleti lakás. A kert végében még egy különálló kisebb lakóház áll, ez a negyedik lakás a telken. A hirdetés tárgya a két földszinti, összesen 88 nm-es lakás, melyek jelenleg külön bejáratokkal rendelkeznek, de akár egybe is nyithatók, és egy tágas, világos nagy lakás alakítható ki az egybenyitással. A két lakás kizárólag egyben eladó. A teljes lakóépület földszinti homlokzata dryvit hőszigetelést kapott, a teljes földszint feletti tető rész is felújításra került az ereszcsatornával együtt. A nagyobbik, 48 nm-es eladó lakásban a nyílászárók egy része cserélve lett műanyagra, itt az elektromos hálózat is megújult. A fűtést itt gázkazán biztosítja. A kisebbik szobák alatt mindkét lakásban egy-egy pince is kialakításra került. A kisebbik, 40 nm-es lakásban az elektromos hálózat új, ide a csatorna és a gáz nincs bevezetve, a másik lakásból beköthető. Ebben a lakásban jelenleg fürdőszoba és konyha nincs kialakítva, fűteni kályhával lehet. Ennek a lakásnak van egy fedett terasza, mely beépíthető. A környék rendezett, csendes, buszmegálló pár perc séta. A lakóközösség csendes, kulturált.
Mutass többet
Általános adatok
Ingatlan állapota:
3 - Lakható
Építés éve:
1948
Emelet:
Földszint
Emeletek száma:
0
Lift:
Nincs Lift
Épület külső állapota:
4 - Jó
Épület belső állapota:
4 - Jó
Fényviszonyok:
Nincs megadva
Parkolás:
Nincs
Erkély/Terasz:
Van
Nézet:
Nincs megadva
Tájolás:
DK
Fűtés:
Gáz cirkó
Energetikai besorolás:
Nincs megadva
Lakáshitel kalkulátor – Spórolj velünk!
Kalkulálj most, és keresd pénzügyi szakértőinket, akik ingyenes tanácsadással segítenek megtalálni a számodra legjobb megoldást!

Hasonló ingatlanok

1173 Budapest 17. kerület

H500892 | 3 szoba | 74 m²
82 900 000 Ft

1171 Budapest 17. kerület 137 nm-es, belső háromszintes befejezésre váró ikerházfél

HZ038959 | 5 szoba | 137 m²
69 990 000 Ft

1174 Budapest 17. kerület

LK083715 | 4 szoba | 127 m²
95 000 000 Ft

1173 Budapest 17. kerület Földszintes lakás

LK056167 | 2 szoba | 107 m²
80 000 000 Ft

1171 Budapest 17. kerület

H507038 | 4 szoba | 126 m²
74 900 000 Ft

1172 Budapest 17. kerület 1172 Budapest 17, Rákoscsaba-Újtelep

M312370 | 3 szoba | 98 m²
84 900 000 Ft

1173 Budapest 17. kerület Tetőtéri lakás kertkapcsolattal és kocsibeállóval a XVII. ke

LK039053 | 3 szoba | 76 m²
76 900 000 Ft

1173 Budapest 17. kerület

LK037270 | 4 szoba | 62 m²
72 000 000 Ft

1173 Budapest 17. kerület

H503927 | 2 szoba | 53 m²
69 800 000 Ft

1173 Budapest 17. kerület Parkra néző lakás 4 emeletes, panelprogramos házban

LK071915 | 4 szoba | 73 m²
71 000 000 Ft

1174 Budapest 17. kerület

IP012815 | 2 szoba | 1740 m²
69 500 000 Ft

1174 Budapest 17. kerület

H510049 | 2 szoba | 43 m²
54 900 000 Ft

1174 Budapest 17. kerület

H510048 | 1 szoba | 41 m²
54 900 000 Ft

1173 Budapest 17. kerület

HZ069668 | 4 szoba | 121 m²
75 000 000 Ft

1173 Budapest 17. kerület 1173 Budapest 17, Újlak utcai lakótelep

M318003 | 3 szoba | 54 m²
70 000 000 Ft

1172 Budapest 17. kerület A1 ÚJ ÉPÍTÉSŰ, 4 SZOBÁS, NAPELEMES HÁZ, GARÁZZSAL, SAJÁT KER

LK037318 | 4 szoba | 120 m²
139 000 000 Ft

1172 Budapest 17. kerület B1 ÚJ ÉPÍTÉSŰ HÁZ A NAPLÁS TÓNÁL, GARÁZZSAL, SAJÁT KERTTEL!

LK040105 | 4 szoba | 120 m²
139 000 000 Ft

1172 Budapest 17. kerület B2 NAPLÁS TÓNÁL, ÚJ ÉPÍTÉSŰ, NAPELEMES HÁZ, GARÁZZSAL, SAJÁT

LK037926 | 5 szoba | 120 m²
149 000 000 Ft

1172 Budapest 17. kerület Duplakomfort, 153m2+47m2 terasz, 6 szoba, 2 parkoló, 2tároló

LK030984 | 6 szoba | 153 m²
255 000 000 Ft

1173 Budapest 17. kerület 17. kerület 4 szobás ház dupla garázzsal!

HZ063993 | 5 szoba | 150 m²
185 000 000 Ft
Alexa Zsolt
Örökös tag franchise partner
Kapcsolatfelvétel
Hívom
Kapcsolatfelvétel
Kérjen egy személyes megtekintést az ingatlanra a Duna House értékesítőjétől
Válassz egy időpontot