.
Eladó Lakás 4800 Vásárosnamény
H504784
Eladó
Lakás
Prémium
36 000 000 Ft
4800 Vásárosnamény
3 szoba
70 m²
Tégla
Törlesztőrészlet Ft/hó
THM %
2 megtekintés az elmúlt 7 napban
Leírás
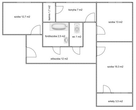
Az ingatlan, amelyet bemutatunk, Vásárosnaményban található, melynek alapterülete nettó 70 nm. A lakás 3 tágas szobával rendelkezik, amelyek ideálisak családi élethez vagy akár befektetési célokra is. A fürdőszoba modern és jó állapota azonnali kényelmet biztosít az új tulajdonos számára. A lakás erkélye, mely 3,5 nm tökéletes helyszín a reggeli kávézásra vagy a pihenésre egy hosszú nap után, miközben gyönyörködhet a környék panorámájában. A fűtés gázkonvektorral történik, amely hatékony és gazdaságos megoldást kínál a téli hónapokban, míg a klíma a nyári hőségben biztosítja a kellemes hőmérsékletet. A környék biztonságos és csendes, ideális választás családok számára, akik értékelik a nyugodt életstílust, de emellett fontos számukra a jó közlekedési lehetőség is. Vásárosnamény központja néhány percnyi sétára található. A lakás állapota jó, így azonnal költözhető, nem igényel nagyobb felújítást, ami szintén nagy előny a vásárlók számára.
A lakáshoz tartozik egy 16m2-es garázs is , de ez nincs benne a vételárban, az külön megegyezés tárgyát képezi igény szerint.
Ha bármilyen kérdése van az ingatlannal vagy a vásárlási folyamattal kapcsolatban, bizalommal forduljon hozzánk!
Mutass többet
Általános adatok
Ingatlan állapota:
4 - Jó
Építés éve:
1986
Emelet:
2
Emeletek száma:
1
Lift:
Nincs Lift
Épület külső állapota:
4 - Jó
Épület belső állapota:
4 - Jó
Fényviszonyok:
Nincs megadva
Parkolás:
Nincs
Erkély/Terasz:
Van
Nézet:
Utca
Tájolás:
D
Fűtés:
Gázkonvektor
Energetikai besorolás:
Nincs megadva
Lakáshitel kalkulátor – Spórolj velünk!
Kalkulálj most, és keresd pénzügyi szakértőinket, akik ingyenes tanácsadással segítenek megtalálni a számodra legjobb megoldást!

Hasonló ingatlanok

4800 Vásárosnamény

H503924 | 3 szoba | 70 m²
35 000 000 Ft
Kertész Bence Sándor
Értékesítő
Kapcsolatfelvétel
Hívom
Kapcsolatfelvétel
Kérjen egy személyes megtekintést az ingatlanra a Duna House értékesítőjétől
Válassz egy időpontot