.
Eladó Lakás 9021 Győr
108 900 000 Ft
9021 Győr
4 szoba
121 m²
Tégla
Törlesztőrészlet Ft/hó
THM %
2 megtekintés az elmúlt 7 napban
Leírás
A múlt század első felében jellemző építkezési stílus, a Bauhause keretein belül kevés, igazán grandiózus épület készült városban. A hirdetésben szereplő társasház, korában az egyik legmagasabb fokú kényelmet biztosította lakói számára, egzisztenciálisan magas színvonalú lakóközösséggel. Az érdekesség hogy ezen ingatlan azóta sem veszített presztízs értékéből és státusz szimbólumából, mely érvényes a közösségére is.

Van egy lakás, természetesen ebben a tömbben, amiben a négyzetméter, az elhelyezkedés, az emelet, a tájolás, az exkluzív beltartalom műszakilag és esztétikailag is egyaránt, minden igényt kielégít, nincs kérdés hogy helye van a legjobb lakások között.

Korrekt tulajdonostól, korrekt ajánlat!

* Győr belvárosában, ezen belül a Munkácsy Mihály utcában
* Folyamatosan karbantartott társasházban
* Magasföldszinten
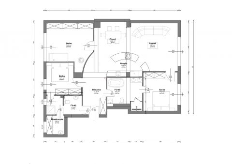
* 121nm hasznos lakóterű
* K/Ny-i tájolású
* Nappali-Konyha + 3 hálószobás
* Egyedi elrendezésű
* Tehermentes
* Saját tárolóval rendelkező
* Igény szerint gyorsan birtokba vehető LAKÁS VÁRJA ÚJ TULAJDONOSÁT!

Az ingatlan minden paraméterebén átgondolt, minőségi kivitelezés eredménye :

* 2018-ban teljesen visszabontva, majd újraépítve
* Beton födém, 25 cm XPS aljzat szigetelés, 2,5cm vastagságú márvány burkolatok, valamint tölgy, tömör faparketták
* Villamoshálózat 3x25 A, természetesen minden rézvezetékből, vízhálózat, 5 rétegű csövek felhasználásával
* Minőségi hangszigetelt nyílászárók, redőnnyel, szúnyoghálóval
* Hangszigetelt fa beltéri ajtók
* Wolf hőcserélő, szellőztető rendszer, 2 db klíma

A társasház kiemelt figyelmet fordít környezetére, esztétikai megjelenésére és műszaki állapotára. A bejárat, villamoshálózat, lift valamint a pince nemrégiben került felújításra. A közös költség tartalmazza a szemétdíjat, valamint a takarítást is. A társasház belső udvara elszeparált, intim, játszótérrel, zöldövezettel ellátva.

Az ingatlan üresen kerül birtokba adásra.

A kérdésekkel, megtekintéssel kapcsolatban keress bizalommal! Hitelre van szüksége? Tudunk segíteni!
Teljeskörű és díjmentes hitelügyintézéssel állunk rendelkezésére!
Kérje személyre szabott ajánlatunkat Kollégáinktól!
Mutass többet
Általános adatok
Ingatlan állapota:
4 - Jó
Építés éve:
1942
Emelet:
Földszint
Emeletek száma:
0
Lift:
Hívó
Épület külső állapota:
4 - Jó
Épület belső állapota:
4 - Jó
Fényviszonyok:
Nincs megadva
Parkolás:
Nincs
Erkély/Terasz:
Nincs
Nézet:
Udvar
Tájolás:
NY
Fűtés:
Távfűtés egyedi mérővel
Energetikai besorolás:
BB
Lakáshitel kalkulátor – Spórolj velünk!
Kalkulálj most, és keresd pénzügyi szakértőinket, akik ingyenes tanácsadással segítenek megtalálni a számodra legjobb megoldást!

Hasonló ingatlanok

9029 Győr Új építés Szitásdombon L01

LK041050 | 3 szoba | 70 m²
70 541 000 Ft

9029 Győr Új építés Szitásdombon L05

LK046003 | 2 szoba | 46 m²
48 479 000 Ft

9029 Győr Új építés Szitásdombon L15

LK041204 | 2 szoba | 49 m²
48 590 000 Ft

9029 Győr Új építés Szitásdobon L12

LK081830 | 3 szoba | 58 m²
57 990 000 Ft

9026 Győr Révfalu új építés L4 első emeleti lakás

LK024709 | 4 szoba | 115 m²
127 000 000 Ft

9029 Győr Szitásdomb 25

PR087430/LK/10988 | 3 szoba | 70 m²
70 541 100 Ft

9029 Győr Szitásdomb 25

PR087430/LK/10989 | 3 szoba | 60 m²
60 282 300 Ft

9029 Győr Szitásdomb 25

PR087430/LK/10990 | 2 szoba | 54 m²
55 388 300 Ft

9029 Győr Szitásdomb 25

PR087430/LK/10991 | 2 szoba | 56 m²
56 447 000 Ft

9029 Győr Szitásdomb 25

PR087430/LK/10992 | 2 szoba | 49 m²
48 749 100 Ft

9029 Győr Szitásdomb 25

PR087430/LK/10993 | 2 szoba | 55 m²
55 844 300 Ft

9029 Győr Szitásdomb 25

PR087430/LK/10995 | 3 szoba | 69 m²
70 043 500 Ft

9029 Győr Szitásdomb 25

PR087430/LK/10996 | 3 szoba | 72 m²
71 978 400 Ft

9029 Győr Szitásdomb 25

PR087430/LK/10997 | 3 szoba | 64 m²
63 790 000 Ft

9029 Győr Szitásdomb 25

PR087430/LK/11008 | 3 szoba | 58 m²
57 990 000 Ft

9029 Győr Szitásdomb 25

PR087430/LK/11009 | 2 szoba | 54 m²
54 260 000 Ft

9029 Győr Szitásdomb 25

PR087430/LK/11010 | 2 szoba | 56 m²
56 040 000 Ft

9029 Győr Szitásdomb 25

PR087430/LK/11012 | 3 szoba | 68 m²
67 590 000 Ft

9029 Győr Szitásdomb 25

PR087430/LK/11013 | 2 szoba | 57 m²
57 000 000 Ft

9029 Győr Szitásdomb 25

PR087430/LK/11016 | 3 szoba | 71 m²
71 410 000 Ft
Németh Katalin
Platina fokozatú értékesítő
Kapcsolatfelvétel
Hívom
Kapcsolatfelvétel
Kérjen egy személyes megtekintést az ingatlanra a Duna House értékesítőjétől
Válassz egy időpontot