.

Projekt részletek

Info:
Azonnal birtokba vehető Új kialakítású lakások eladók, Sopron történelmi belvárosában! 

Az épület Sopron belvárosának emblematikus helyén, az Orsolya teret a Várkerülettel összekötő Hátsókapu utca tört vonalának belső, városmag felőli részét foglalja el. A korai historizmus klasszicizáló stílusában épült kétemeletes lakóház Hasenauer Márton tervei alapján készült, ez volt Sopron első bérháza. 
Az elmúlt időszakban fejeződött be az ingatlan teljeskörű korszerűsítése a Műemlékvédelmi hivatal útmutatásai és szoros kontrollja alatt. Födémfelújítás-Teljes belső átépítés-Nyílászárók cseréje-Gépészet teljeskörű korszerűsítése (elektromos, víz, gáz és fűtésrendszer)-Homlokzatfelújítás-Burkolatok-Szaniterek-stb... Rendelkezésre áll az épület használatbavételi engedélye és a Társasház Alapító Okirat is elkészült. A teljesen újjávarázsolt épület A és B épületrészből áll, belső udvarral rendelkezik, mely a vársétány koncepció szerves része. 

A közös használatú épületrészek:
- Közlekedők (kerámia burkolattal), LED-es mozgásérzékelős világítás a lépcsőházakban és közlekedőkben.
- Hulladék- és kerékpártárolók külön helyiségekben
- Az épületgépészeti helyiség a pinceszinten kiépítve (2 db nagy teljesítményű kondenzációs gázkazán, kétkürtős SCHIEDEL kéménnyel)
- A pinceszinten különböző méretű, teljesen elszeparált és zárható privát tárolók lettek kialakítva, melyek a lakásokhoz megvásárolhatóak.

Az impozáns lakóházban összesen húsz, különböző alapterületű lakás került kialakításra, egy, kettő és három szobás elrendezéssel, földszinti, első és második emeleti valamint tetőtéri lakások választhatóak. Minden ingatlan kulcsrakész állapotban várja leendő tulajdonosát. 
A lakások vételára tartalmazza az adásvételi szerződéssel kapcsolatos ügyvédi munkadíjat, valamint a tulajdonjog bejegyzéssel kapcsolatos költségeket is!

Az ingatlanok megfelelnek a 3%-os OTTHON Start Hitel feltételeinek! További információkért keressen bizalommal! 
Ingatlanok: 10
Árak: 60 500 000 Ft - 87 770 000 Ft
Méretek: 47 - 73 m2
Emeletek: Földszint - Tetőtér
Befejezés dátuma: 2025-09-01

Eladó lakás, ház

(10)
Kérek értesítést, ha a megadott szempontoknak megfelelő új ingatlan kerül feltöltésre.

9400 Sopron Várkerület

PR068430/LK/27081 | 2 szoba | 56 m²
65 550 000 Ft

9400 Sopron Várkerület

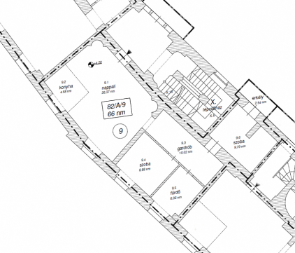
PR068430/LK/27063 | 3 szoba | 66 m²
83 325 000 Ft

9400 Sopron Várkerület

PR068430/LK/27061 | 2 szoba | 73 m²
87 770 000 Ft

9400 Sopron Várkerület

PR068430/LK/27057 | 2 szoba | 59 m²
74 235 000 Ft

9400 Sopron Várkerület

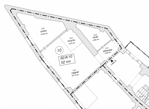
PR068430/LK/27053 | 2 szoba | 52 m²
64 135 000 Ft

9400 Sopron Várkerület

PR068430/LK/27051 | 6 szoba | 66 m²
83 325 000 Ft

9400 Sopron Várkerület

PR068430/LK/27049 | 2 szoba | 69 m²
85 750 000 Ft

9400 Sopron Várkerület

PR068430/LK/27043 | 1 szoba | 49 m²
60 500 000 Ft

9400 Sopron Várkerület

PR068430/LK/27041 | 1 szoba | 47 m²
60 500 000 Ft

9400 Sopron Várkerület

PR068430/LK/27037 | 1 szoba | 49 m²
60 500 000 Ft