.
Eladó Ház 6000 Kecskemét
PR086421/HZ/18550
Eladó
Családi ház
Újépítésű
51 600 000 Ft
6000 Kecskemét
1 szoba
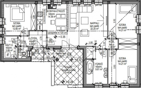
97 m²
0 m² telek
Törlesztőrészlet Ft/hó
THM %
10 megtekintés az elmúlt 7 napban
Leírás
Kecskemét 20 km-es körzetén belüli kivitelezéssel egy hőszivattyús fűtéses családi ház projektet kínálunk megrendelésre



TELEKKEL rendelkezni kell az érdeklődőnek!



A kivitelezési idő a szakági tervezést követően, az egyedi műszaki megoldásoktól függően, az építési terület átadásától számítva 12-13 hónap.



Igény esetén egyedi terv készítésében is közreműködünk!



Egyedi megállapodások részletei lehetnek az ELŐFINANSZÍROZÁS, az ÁRGARANCIA, valamint a vállalt kivitelezési időtartam KÖTBÉRREL történő szabályozása is!



A telek megvásárlását követően, és az erre irányuló finanszírozási megállapodás esetében az ügyfélnek mindig csak az elkészült, átadott ütem után kell fizetni.



A kivitelező szerződésben vállalja, hogy ÁR GARANCIÁT vállal az építményre.





Műszaki leírás:

-    30 cm-es tégla falazat

-    Szeglemezes tető

-    15 cm homlokzati szigetelés

-    Beton cseréppel

-    3 rétegű üveg, fehér műanyag ablakok Decco 82, 6 légkamrás fokozott hőszigetelésű profilból

-    szaniterek 600.000 Ft értékben választhatók

-    Fujitsu hőszivattyúval



Az ár kulcsrakész állapotban történő átadással értendő, konyhabútor és lámpatestek nélkül, továbbiakban az ÁR NEM TARTALMAZZA A TELEK ÁRÁT, A TEREPRENDEZÉST és a TERASZT sem!



Közművek elérhetősége a választott telek paraméterei szerint.



A kivitelező technológiai rugalmassága lehetővé teszi további teherhordó falazatú épület árának megismerését is!



A Duna House teljes kínálatával kapcsolatban forduljon hozzám bizalommal!



Szolgáltatásaink:

Ingyenes CSOK, babaváró és hitelügyintézés

Ingyenes ingatlan értékmeghatározás

Értékbecslés

Energetikai tanúsítvány készítés

Megbízható ügyvédi háttér biztosítása

Házépítés megbízható generálkivitelezővel

_______________________________________________________



HIRDESSE MEG ELADÓ INGATLANÁT NÁLAM!


Kecskeméti kivitelezéssel egy gázfűtéses, napelemmel felszerelt fémszerkezetes családi ház projektet kínálunk megrendelésre

A kivitelezési idő a szakági tervezést követően, az egyedi műszaki megoldásoktól függően, az építési terület átadásától számítva 12-13 hónap.

Igény esetén egyedi terv készítésében is közreműködünk!

Egyedi megállapodások részletei lehetnek az ELŐFINANSZÍROZÁS, az ÁRGARANCIA, valamint a vállalt kivitelezési időtartam KÖTBÉRREL történő szabályozása is!

A telek megvásárlását követően, és az erre irányuló finanszírozási megállapodás esetében az ügyfélnek mindig csak az elkészült, átadott ütem után kell fizetni.

A kivitelező szerződésben vállalja, hogy ÁR GARANCIÁT vállal az építményre.


Műszaki leírás:
-    15 cm széles horganyzott fémszerkezet „statika szerinti anyagvastagsággal”
-    1 sor 12 mm-es akusztik gipszkarton, fürdőben vízálló karton.
-    Rigips Habito erősített, terhelhető lemez 10 nm-en szabadon választható felületen
-    EPS H-80 homlokzati hőszigetelés 15 cm
-    Bramac Római Novo cseréppel
-    3 rétegű üveg, fehér műanyag ablakok Decco 82, 6 légkamrás fokozott hőszigetelésű profilból
-    szaniterek 300.000 Ft értékben választhatók
-    Bosch gázkazán mérethez viszonyított teljesítményben
-    2,5 kW napelemrendszer 5 kW-os inverterrel

Az ár kulcsrakész állapotban történő átadással értendő, konyhabútor és lámpatestek nélkül, továbbiakban az ÁR NEM TARTALMAZZA A TEREPRENDEZÉST és a TERASZT sem!

Közművek elérhetősége a telek paraméterei szerint

Ajánlom mindazoknak, akik egy költséghatékony technológiával épített házban szeretnének élni!

A kivitelező technológiai rugalmassága lehetővé teszi a tégla teherhordó falazatú épület árának megismerését is!

A Duna House teljes kínálatával kapcsolatban forduljon hozzám bizalommal!

Szolgáltatásaink:
– Ingyenes CSOK, babaváró és hitelügyintézés
– Ingyenes ingatlan értékmeghatározás
– Értékbecslés
– Energetikai tanúsítvány készítés
– Megbízható ügyvédi háttér biztosítása
– Házépítés megbízható generálkivitelezővel
_______________________________________________________

HIRDESSE MEG ELADÓ INGATLANÁT NÁLAM!
Mutass többet
Általános adatok
Építés éve:
2024
Belső szintek száma:
Nincs megadva
Épület külső állapota:
6 - Új. ép.
Épület belső állapota:
6 - Új. ép.
Fényviszonyok:
Nincs megadva
Nézet:
Nincs megadva
Fűtés:
Gáz cirkó
Szerkezet:
Könnyűszerkezetes
Energetikai besorolás:
Nincs megadva
Víz:
Nincs megadva
Gáz:
Nincs megadva
Villany:
Nincs megadva
Csatorna:
Nincs megadva
Lakáshitel kalkulátor – Spórolj velünk!
Kalkulálj most, és keresd pénzügyi szakértőinket, akik ingyenes tanácsadással segítenek megtalálni a számodra legjobb megoldást!

Hasonló ingatlanok

6000 Kecskemét

HZ043339 | 5 szoba | 168 m²
54 900 000 Ft

6000 Kecskemét 2 különbejáratú, jóállapotú ház, Szelei faluban

HZ091729 | 6 szoba | 110 m²
45 000 000 Ft

6000 Kecskemét Matkópusztán 140 nm-es felújított tanya, 6647 nm telken

HZ057959 | 4 szoba | 145 m²
69 000 000 Ft

6000 Kecskemét

PR074321/HZ/18546 | 1 szoba | 106 m²
56 400 000 Ft

6000 Kecskemét

PR080394/HZ/18547 | 1 szoba | 95 m²
50 300 000 Ft

6000 Kecskemét

PR068181/HZ/18548 | 1 szoba | 91 m²
48 400 000 Ft

6000 Kecskemét

PR059327/HZ/18549 | 1 szoba | 156 m²
85 400 000 Ft

6000 Kecskemét

PR074195/HZ/18551 | 1 szoba | 71 m²
39 000 000 Ft

6000 Kecskemét

PR047093/HZ/18553 | 1 szoba | 99 m²
52 500 000 Ft

6000 Kecskemét

PR064946/HZ/18554 | 1 szoba | 95 m²
50 400 000 Ft

6000 Kecskemét 1 HEKTÁR 3 %-BAN BEÉPÍTHETŐ ERDŐS TERÜLET ELADÓ

TK013862 | 10309 m²
10 500 000 Ft

6000 Kecskemét Főút mellett - AKÁR VÁLLALKOZÁSRA!

HZ051912 | 5 szoba | 200 m²
24 000 000 Ft

6000 Kecskemét

PR085286/HZ/18555 | 1 szoba | 54 m²
33 000 000 Ft

6000 Kecskemét

PR050447/HZ/18556 | 1 szoba | 71 m²
42 600 000 Ft

6000 Kecskemét

PR027406/HZ/18557 | 1 szoba | 99 m²
52 700 000 Ft

6000 Kecskemét

PR046119/HZ/18558 | 1 szoba | 86 m²
48 000 000 Ft

6000 Kecskemét Kecskeméten Auchanhoz közel telek eladó

TK087499 | 615 m²
5 990 000 Ft

6044 Kecskemét Hétvégi ház eladó Úrihegyben

HZ098844 | 3 szoba | 43 m²
22 500 000 Ft

6000 Kecskemét Kecskemét Úrihegy

HZ040011 | 4 szoba | 180 m²
42 000 000 Ft

6000 Kecskemét Ipoly utca

HZ038465 | 2 szoba | 78 m²
69 900 000 Ft
Kocsis István
Platina fokozatú értékesítő
Kapcsolatfelvétel
Hívom
Kapcsolatfelvétel
Kérjen egy személyes megtekintést az ingatlanra a Duna House értékesítőjétől
Válassz egy időpontot